
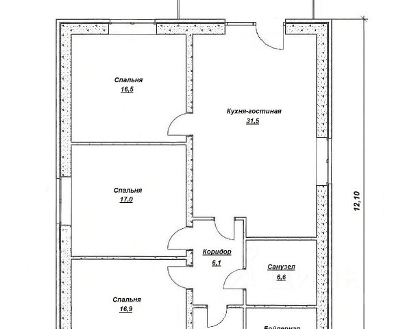
Свердловская область, п. Рассоха, Зеленые кварталы Поселок благоустроен! Асфальт, детская и спортивная площадка. Ограждение, охрана, видео наблюдение по всему периметру поселка. Пропускной режим. До города 15 мин. В поселке электричество подземное, тянут газ! Коммуникации в доме: Электричество 15 кВт, 380 В. Водоснабжение скважина 90м. Водоотведение септик 2,5 куба АСО-1, рассчитан на семью из 5 человек. Фундамент: Плита с двойным слоем армирования 12 мм. Глубина бурки 2 м., диаметр бурки 300мм. Расстояние между бурками 2 м. Арматура 12мм. Высота плиты 33 см. Засыпка щебень песок. Бетон 250 марки. Терассы сделаны по принципу фундамента дома. Фундамент обработан гидроизоляцией и утеплен. Стены: Твин блок Рефтинский плотность 500. Стены 300 мм, перегородки 200мм. Армопояс. Кровля: Конверт, 4 ската. Стропила 50мм на 150мм, обрешетка 150 мм на 30мм. Черный потолок доска 150мм на 50мм. Утеплитель ТехноТерм TS 037 Aquastatik 1250*610*50 уложен в четыре слоя в шахматном порядке на 200мм. Пароизоляция с низу обрешетки ИЗОСПАН, Гидроизоляция под черепицей ИЗОСПАН, ветрозащита по верх утеплителя ИЗОСПАН. Черепица Монтерей 0,45. Водосточная система. Снегозадержание. Фасад: Плита минераловатная ТЕХНОФАКС КОТТЕДЖ 50 мм (одна из самых дорогих позиций в Технониколе). Штукатурка нижний слой Церезит Thermo Universal, верхний слой Церезит СТ 190. Штукатурка фасадная силикатно-силиконовая ЦЕРАЗИТ СТ 174 камешковая 1,5. Окна дверь: VEKA SK70 200, стеклопакет с рамкой MultiTech, стекло энергосберегающие, утепленный подрамник. По периметру окно обработанно пароизоляционным и гидроизоляционным герметиком. Фарнитура ROTO NX с улучшенным прижимом. Ручки Roto Swing.


























































































