Мечтаете о своем доме с видом на березовый лес? У нас есть для вас уникальное предложение. Современный, качественный и тёплый дом в живописном месте, с удобной транспортной доступностью и всей инфраструктурой рядом, в охраняемом коттеджном поселке.
Расположен в закрытом коттеджном поселке "Яснолетово", рядом с селом "Новоалексеевское", всего в 30-35 минутах езды от центра Екатеринбурга, что делает его подходящим местом для загородной жизни, имея рядом всю необходимую инфраструктуру.
Участок правильной формы, позволит организовать сад, место для отдыха где можно проводить время вместе с семьей, друзьями, наслаждаясь свежим воздухом и тишиной. При желании место позволяет разбить сад, установить баню, организовать детскую площадку и реализовать ваши задумки по обустройству придомовой территории.
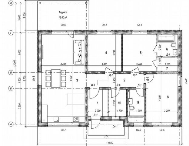
Дом построен из качественных материалов, на утеплённом монолитном бетонном фундаменте. Обустроена наружная водосточная система. Крыльцо располагается под общей крышей дома и оборудовано ступенями. Входная группа декорирована планкеном. Современный и практичный фасад отделан фактурной штукатуркой "Короед" серого цвета со вставками из древесного планкена в сочетании с оконными рамами чёрного цвета. Крыша дома покрыта кровлей из мягкой черепицы — всё это вместе придает дому стильный и современный внешний вид. Оборудована система приточной-вытяжной вентиляции. Установлены энергосберегающие стеклопакеты с нанонапылением оксидов серебра в летнее время они отражают избыточный ультрафиолет, что позволяет помещениям не нагреваться изнутри и сохранять комфортную температуру, а в холодный период препятствуют выходу тепла от отопительных приборов. Установлены морозостойкие входные двери.
Продуманная и эргономичная планировка. На входе расположен просторный холл, в котором можно установить большой шкаф и прихожую. В доме три спальни, в каждой из которых смогут комфортно расположиться все домочадцы. Большая ванная комната позволяет установить душевую кабину и стиральную машину, а также другие аксессуары. Предусмотрен гостевой сан. узел. Имеется вместительная кладовая. Просторная кухня-гостиная, разделенная на зону для отдыха и кухню с обеденной зоной, с выходом на крытую террасу - идеально подойдет для тёплых семейных обедов, утренней чашки кофе, с видом на берёзовый лес.
Внутри выполнена отделка "под чистовую" - это значит, что есть отличная возможность воплотить свои задумки по интерьеру и дизайн-проект.
Поселок газифицирован, что позволит существенно снижать затраты на отопление в холодное время года. Все коммуникации проложены подземным способом, проведен кабельный интернет.
Для вашего комфорта как главная дорога, так и подъездная до участка имеет асфальтовое покрытие, а на въезде обустроено КПП со шлагбаумом и видеонаблюдением. На въезде рядом с административным зданием обустроена гостевая парковка. На территории КП имеется большая детская площадка, спортивный корт и площадка со снарядами для занятий спортом. Планируется строительство общих зон отдыха и искусственный водоём. В проекте обустройство тропы здоровья по близлежащим природным окрестностям.
Обслуживанием поселка занимается управляющая компания.
На въезде в Яснолетово открылся супермаркет Пятёрочка.
В 5 минутах езды от коттеджного поселка в селе Новоалексеевское находится вся необходимая соц. инфраструктура сетевые продуктовые магазины, предприятия общепита, мед. пункт, дворец культуры, пункты выдачи заказов, банкоматы, школа, детский садик, салон красоты.
В 5 минутах езды располагаются термы "Релакс-аква" где вы сможете отдохнуть, поплавать в бассейне, погреться в бане и снять напряжение после рабочей недели. В 8 минутах езды от Яснолетово находится конный клуб "Алькор- Хорс".
В 15 минутах езды на машине в окружении векового леса находится Волчихинское водохранилище где можно устроить пикник, арендовать домик на местной базе отдыха, отдохнуть и позагорать на пляже в летнее время года.
Также недалеко от поселка находится ГЛК "Гора Волчиха", в зимний сезон здесь можно покататься на горных лыжах и сноуборде, взять на прокат тюбинги, а в тёплое время года прогуляться и насладиться природными пейзажами.
Добраться от Екатеринбурга до коттеджного поселка можно как на автомобиле, так и на автобусе. Расстояние от ТРЦ МЕГА 25 км, время в пути на автомобиле около 22 минут. От площади 1905г. - 31 км, время в пути около 35 минут.
Добраться от Первоуральска до поселка можно за 15-20 минут, расстояние от ТРЦ "Строитель" 14 км, от мкр. "Талица" 9 км.
В 7-10 минутах ходьбы от поселка имеется ж.д. станция, что позволяет добираться до дома и без автомобиля на комфортном электропоезде. Ежедневно курсирует автобус.
Успевайте приобрести дом - мечты в этом прекрасном месте и по доступной цене, пусть он станет частью вашей новой жизни, в которой каждый день будет приносить радость и вдохновение. Звоните.