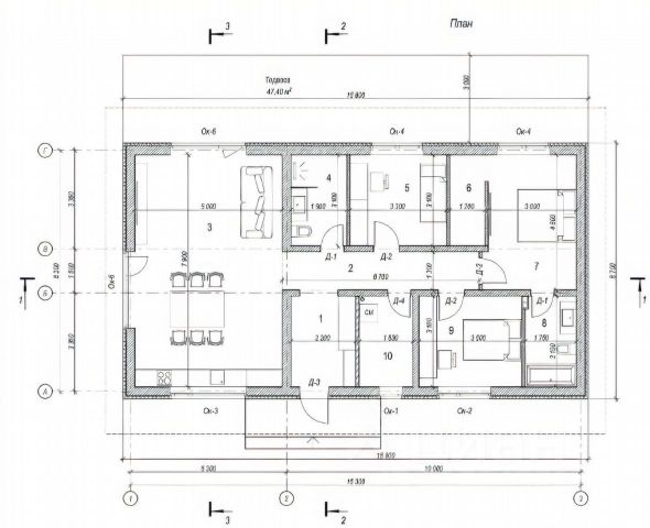
ПРОДАЖА ДОМА ОТ ИП Площадь дома 130 кв.м , терраса 23,2 м2, с функциональной планировкой Возможны все виды ипотек -Семейная; -Комбо ипотека; - Наличные; В первоначальный взнос возможно использовать различные сертификаты. ЮРИДИЧЕСКАЯ ЧИСТОТА: Дом без обременений, залогов, арестов. Собственник один, совершеннолетний, не имеет исполнительных листов, банкротом не является, паспорт действителен ИНФРАСТРУКТУРА: РАЙОН: Свердловская обл., Сысертский район, коттеджный пос. Кадниково 7 прудов, расположен в 30 км от Екатеринбурга, на машине примерно 20-30 мин езды. Поселок готов к проживанию, заселен. Рядом с посёлком расположен конноспортивный комплекс "Белая лошадь", база отдыха "Иволга", детские лагеря и школы развития, аптека, магазины, школа, детские сады, больница - 10 мин УЧАСТОК: 6,92 соток, правильной формы ДОМ: 2024 г. постройки. ОПИСАНИЕ ДОМА: Фундамент - свайно ленточный, плита 140 мм. Материал стен - газоблок 300 + утепление 100. Фасад - Декоративная штукатурка "Короед" Кровля- металлочерепица, утепление 150 мм Все коммуникации проведены и заведены в дом (электричество 380В 15 кВт, собственная скважина, канализация с дренажным колодцем). Отопление: теплый пол ПЛАНИРОВКА Просторная кухня - гостиная 41,1 кв.м. с панорамным остеклением и выходом на террасу (23,2 кв.м) Удобная планировка 3 изолированные комнаты: -1 комната 11 кв.м -2 комната 12,5 кв.м -3 комната 12,7 кв.м. Большой санузел Оборудованная котельная. ID объекта в нашей базе: 283



















































































