


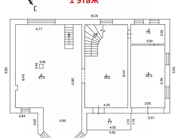
Капитальный кирпичный дом 360 м² на 20 сотках в Истоке — идеальная база для дома вашей мечты Продаётся просторный двухэтажный дом площадью 360 м² на земельном участке 20 соток в посёлке Исток. Отличное предложение для тех, кто ищет большой, надёжный дом и хочет реализовать интерьер полностью под себя. Дом находится в черновой стадии готовности, а это значит, что у вас есть возможность сделать планировку, дизайн и отделку именно так, как удобно вашей семье, без затрат на демонтаж и переделку. О доме: Площадь 360 м² — комфортный формат для большой семьи Надёжное капитальное строительство из кирпича 2 полноценных этажа Просторные комнаты и функциональная планировка Высокие потолки и большие оконные проёмы Возможность организовать кухню-гостиную, 46 спален, кабинет, гардеробные, игровую, спортзал, домашний кинотеатр Каминный дымоход — возможность обустроить уютную гостиную с камином Навес/гаражная зона для автомобилей Участок 20 соток — серьёзное преимущество: — Большая территория для комфортной жизни — Можно разместить баню, бассейн, террасу, беседку, гостевой дом — Пространство для сада, ландшафтного дизайна и зоны отдыха — Полностью огороженная территория Коммуникации: Газ заведён на участок Вода на участке Электричество подключено Преимущества локации: — Тихий, активно развивающийся район — Хорошие подъездные пути — Широкие улицы — Солидное соседство — Удобная транспортная доступность Этот объект — отличный вариант для тех, кто понимает ценность качественной коробки и большого земельного участка. Основное уже сделано: крепкий дом, коммуникации, территория. Осталось создать пространство под свой стиль жизни. Редкое сочетание: большой кирпичный дом + 20 соток земли + коммуникации + перспективная локация. Звоните, чтобы посмотреть объект и оценить масштаб лично.

































































































