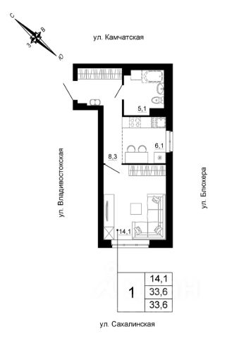
Продается 1-комн. студия от застройщика с предчистовой отделкой в ЖК "Квартал Траектория" на 7 этаже. Общая площадь: 30.6 кв.м., площадь гостиной 19.3 кв.м., из которых 5 кв.м. выделено под кухонную зону. Все окна выходят на одну сторону. В квартире один балкон, один совмещенный санузел. Высота потолков 2.82 м.
Дом монолитный, многоподъездный, переменной этажности, от 7 до 25 этажей. Квартира находится в 5-й секции высотой 9 этажей в корпусе 1-1. На этаже 9 квартир. В подъезде 1 пассажирский и 1 грузовой лифт. Начало строительства - 4 квартал 2025 года. Окончание строительства - 4 квартал 2027 года. Оформление сделки по договору долевого участия.
Студия в квартале "Траектория". Особенности планировки: балкон, предчистовая отделка.
квартиры в нашей базе: МНВ01-Ж5.7.3.
Квартал "Траектория" строится в границах улиц Билимбаевской, Расточной, Монтажников и Маневровой
Раньше здесь находился оборонный завод 5-ЦАРЗ, основанный в 1945 году. После войны он ремонтировал военную и грузовую технику — от "Виллисов" и "Студебекеров" до советских ЗИС-5 и ГАЗ-67.
Сортировка — район с развитой инфраструктурой, обжитыми жилыми кварталами разных эпох и большим количеством парков. До центра Екатеринбурга — 20 минут на машине. Туда же можно отправиться на автобусе: ближайшая остановка общественного транспорта — в 4 минутах от "Траектории".
Рядом с "Траекторией" расположены магазины, торговый центр, детские сады, школы, поликлиники и полезные сервисы, а также другой проект Брусники — квартал "Депо". Если хочется развлечений, можно отправиться в ТРЦ "Карнавал" и парк с аттракционами "Таганская слобода" — дорога туда займёт не более 10 минут на машине.
Квартал "Траектория" — первый этап комплексного развития территории, которую раньше занимали производственные здания. На месте бывших цехов Брусника создаст дружелюбную среду и комфортное пешеходное пространство для всего района.
Для озеленения квартала мы подобрали больше 60 видов растений: ольху, липу, клён, иву, грушу, вишню, сирень, барбарис, гортензию, смородину, ирис, декоративные травы. Они цветут в разное время года и постоянно меняют настроение двора.
В "Траектории" мы предусмотрели несколько общественных пространств, открытых для всех горожан: встречающий сквер, лесопарк у храма и событийный сквер между домами. Когда захочется тишины и уединения, можно устроить прогулку во внутренних дворах: в них нет машин и посторонних, зато много зелени, света и мест для отдыха.
Каждый двор в квартале "Траектория" — продолжение квартиры, только под открытым небом. Здесь можно прогуляться босиком по траве, устроить утреннюю йогу, почитать книгу в гамаке или отправить детей поиграть, не переживая за их безопасность.
Мы закроем дворы от машин, чтобы создать безопасную среду для отдыха. Применим натуральные материалы в отделке малых архитектурных форм — дерево, камень, металл без лишней обработки. Внутри каждого двора — детские площадки, перголы с тенистыми зонами, мягкие газоны и места для общения с сосе