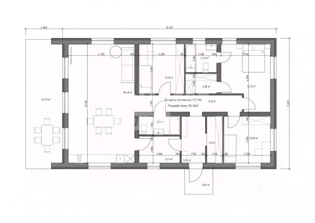
Продается уютный коттедж в Сысертском районе п. Каменка. Кирпичный дом 160 кв.м на участке 12,5 соток (ИЖС). Расположен в одном из лучших мест Сысертского района с прекрасной экологией. Современная коттеджная застройка, тупиковая улица, место высокое, сухое. На участке вековые сосны, из окон красивые виды. Площадь участка позволяет свободно разместить баню, веранду, зону барбекю, спортивную площадку. Рельеф участка дает возможность реализовать интересные идеи ландшафтного дизайна: альпийскую горку, сухой ручей, подпорные стенки, лесенки, и др. Дом изготовлен с высоким уровнем качества и очень теплый. Стены из кирпича с утеплителем, качественные окна, входные сейф-двери. Водяной теплый пол полностью на первом этаже и в санузле второго. В коридорах переключатели, датчики движения. Низкие коммунальные платежи. Внутри выполнена отделка с использованием экологически чистых материалов. На полу кварцвиниловая плитка, межкомнатные двери из натурального массива, обшитая деревом лестница с разворотными площадками из лиственницы. На первом этаже расположены большая кухня-гостиная, санузел, котельная и кладовая. На втором этаже - 3 просторные комнаты, санузел и балкон. Установлено качественное бытовое и сантехническое оборудование. Технические характеристики: фундамент ростверк на сваях, стены кирпич, кровля металлочерепица, электричество 380В 15кВт, скважина 50м, емкость для канализации 10 куб.м, отопление - двухконтурный газовый котел, радиаторы, теплый пол, забор по периметру участка, кованые ворота. До Екатеринбурга 50 минут, дорога асфальтирована. Напротив дома площадка для парковки нескольких автомобилей. В коттеджной застройке проживают спокойные состоятельные люди. Улицы освещены, зимой дороги регулярно чистят. Вокруг поселка прекрасный чистый лес, в шаговой доступности живописный пруд, недалеко магазины, дом культуры, спортивная площадка, хорошая церковь. При желании можно заниматься многочисленными активностями. Зимой лыжи, коньки, бублики. Летом купание, велосипеды, конные прогулки. В лесу есть грибы, ягоды. Документы готовы, обременения отсутствуют. Рассмотрим вариант обмена на квартиру в Москве или в других городах РФ. Будем рады показать или предоставить дополнительную информацию. Просьба к риэлторам не беспокоить, если нет потенциального покупателя. На буднях звонить желательно после 18 часов.













































































