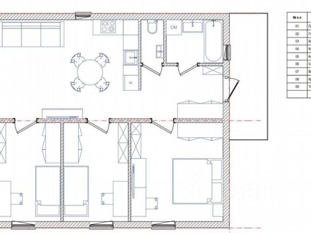
Предлагается к продаже коттедж общей площадью 170,1 квадратных метра, расположенный в удобном месте с возможностью обмена или покупки квартиры либо автомобиля. Коттедж находится в черновой отделке и готов к индивидуальной доработке по вашему вкусу. Основные характеристики коттеджа включают: - Оформление: Готовые документы БТИ и действующий договор на подключение газа, первые платежи произведены заранее, полный ввод планируется на следующий год. - Структура здания: - Стены выполнены из качественного газоблока. - Межэтажные перекрытия сделаны из железобетонных плит. - Внутри помещений залит бетонный пол. - Установлены теплые полы под стяжку. - Обустроена система канализации. - Коммуникации: - Электричество подведено в дом напряжением 380 Вольт мощностью 15 КВт. - Проведена собственная глубокая скважина глубиной 54 метра для бесперебойного водоснабжения. - Дополнительная инфраструктура: - Сооружён просторный встроенный гараж размером 4,5х7 метров с современными подъёмными воротами высотой 3,5 метра и шириной 2,75 метра. Возможность приобретения доступна несколькими способами: - Полностью оплатив наличными средствами, - Рассрочкой платежей без участия банков или ипотечных схем, - Обмен жилья на квартиру или транспортное средство. Это предложение отлично подойдёт тем, кто ценит свободу выбора отделки и желает создать уютный уголок именно под себя, имея надёжную инфраструктуру для комфортного проживания. Если заинтересовались данным предложением, обращайтесь для подро Код пользователя: 157247 Номер в базе: 9543013
























































































