





О доме - дoбpокачеcтвенный cруб (2014г) - пpиcтрой (2021г) из пенополистирола 300 мм - 2 этaж мaнсардный (утeпление 250 мм) - 5-ти камерные пластиковые окна - фундамент: ленточно-свайный, монолитная плита на сваях О планировке - просторный и уютный дом для круглогодичного проживания - большая кухня-гостиная с камином - печью, 3 спальни - хозяйственный блок - прихожая - санузел О коммуникациях - скважина - 50 м - вода заведена в дом (+ греющий кабель) - конвекторное отопление + камин - печь - тепловая пушка (2й этаж) - теплые полы - септик - 4 куб.м. - электричество 220В и 380В - проведен wi-fi. О земельном участке - правильная прямоугольная форма - оптимальный размер участка - 8 соток - зона отдыха с мангальной зоной - 2 въезда на территорию участка - уличное освещение по периметру участка О локации - лес, свежий воздух, природа и тишина - всего в 7 минутах от стеллы поселка "Старопышминск", 15 минут до г. Березовский - развитая инфраструктура, магазины крупных торговых сетей - асфальтированная дорога до ворот/ въезда - территория товарищества огорожена (автоматические ворота с пульта). Номер объекта: #1/545385/6529 Продается дом на улице Пролетарская в городе Березовский.



Продается 2этажный жилой дом в центре города Березовский. Площадь 109 метров, 3 жилых комнаты, кухня, ванная комната. Участок 9,5 соток. Соседи все отличные, участки ухоженные. Возможность подключения газа есть. Центральное водоснабжение, канализация автономная. Готовый к проживанию, кухонный гарнитур с новой техникой. Ипотека возможна, торг за наличный расчет. Вся инфраструктура города в пешей доступности. В подарок сертификат Сбера (гарантия юридической защиты на 3 года с возмещением полной стоимости в случае утраты права) ID объекта в нашей базе: 1722 Дом на улице Пролетарская в городе Березовский.



Срочная продажа! Продается уютный дом в стиле Barnhouse с панорамным остеклением рядом с лесом в дали от трассы и проезжих зон. Дом находится в г. Берёзовский, Шиловский мкрн. КП Черника парк. Причина продажи - переехали в другой город семьей. Дом строили для себя под ПМЖ из качественных материалов. Каркас из клееного бруса (строила бригада на месте, не панельный!). Утеплитель минераловатная плита Эковер 45, мембрана Альфа Технониколь. Фундамент свайный 3000 с шифером от грызунов. Внутренняя отделка декоративной доской хвойных пород окраска маслом OSMO. Террасная доска лиственница. По всему дому водяной теплый пол. Панорамные окна зимой не продувают, всегда тепло. Котел с управлением по WiFi, бойлер на 80 л. Теплая площадь - 72 кв.м., терраса - 25 кв.м. Дом состоит из: Кухня-гостиная со всей необходимой техникой, посудомойка Bosch 60, встроенная варочная поверхность, вытяжка, встроенная свч, встроенная духовая печь, встроенный холодильник, кухня с окрашенными фасадами с доводчиками Blum, барная столешница со стульями, зонированное освещение, обеденный стол со стульями, раздвижной диван, тв, инверторный кондиционер. Спальня с двуспальной кроватью и матрасом, две тумбы, большой шкаф. Вторая комната с комодом икеа. Вся мебель остается. С/у совмещенный с инсталляцией и большой ванной. Прихожая. Приточно-вытяжная система, снегозадержатели, вентиляция. На участке частично выполнено озеленение с насаждениями кустов, хвойных деревьев, яблоня, голубая ель, туи, сирени, шалфей, газон по всему участку. Отдельное бытовое помещение под инструменты, и прочее. В подарок оставим газонокосилку бензиновую, снегоуборочную машину. Мангал передвижной с крышей. Скважина 45 м, кессон с насосом. Био-септик Урал с несколькими уровнями очистки. Откатные автоматические ворота, отдельно калитка на замке. Тишина, свежий воздух, запах хвойных деревьев. Отличный вариант как под ПМЖ, так и под дачу, в 5 минутах езды от г. Берёзовский! Пишите или звоните, я-собственник. Купить дом на улице Пролетарская в городе Березовский.



Предлагается к продаже превосходный коттедж площадью 204.6 кв.м., расположенный в живописном районе соснового бора города Березовского. Земельный участок, предназначенный для индивидуального жилищного строительства, занимает 6 соток, предлагая достаточно пространства для комфортной жизни и отдыха. Дом обеспечен всеми необходимыми коммуникациями, включая газовое отопление, центральное водоснабжение и автономную канализацию. Это гарантирует комфортное проживание в любое время года, избавляя от забот, связанных с перебоями в коммунальных услугах. На участке также расположена отдельностоящая баня с газовым отоплением, что является прекрасным дополнением для любителей банных процедур. Ухоженная теплица открывает возможности для выращивания свежих овощей и зелени прямо на собственном участке. Улица, на которой расположен коттедж, широкая и удобная для подъезда, напрямую выходит на Старопышминский тракт, обеспечивая легкую доступность к достопримечательностям пос. Старопышминск.. В шаговой доступности от коттеджа находятся тропа здоровья, новая современная школа 55, детский сад и торговый центр "Яблоко", что делает это место идеальным для семей с детьми и тех, кто ценит удобство и доступность инфраструктуры. Два взрослых собственника гарантируют чистоту сделки и отсутствие каких-либо юридических препятствий. Документы готовы к быстрому выходу на сделку, что позволит вам стать владельцем этого прекрасного коттеджа в кратчайшие сроки. Продам дом на улице Пролетарская в городе Березовский.






ПРЕДЛОЖЕНИЕ ОТ СОБСТВЕННИКА (застройщика). Аналогов на рынке Екатеринбурга на сегодня нет. ВСЕГО 2 городских усадьбы "Жаворонки" в Березовском (20 минут от Екатеринбурга) на закрытой приватной территории введены в эксплуатацию и предлагаются к продаже во второй очереди. Центральные сети + вся городская инфраструктура. Это формат для постоянного проживания в собственном доме. Одноэтажная усадьба площадью 305 кв.м. (без учета террасы и крыльца) с приусадебным участком 20,25 соток в Березовском. ПРЕИМУЩЕСТВА - высокие потолки в сочетании с витражными окнами - планировочное решение openspace - зонирование по горизонтали - один жилой этаж - в каждом доме предусмотрена просторная гостиная, объединенная с зоной кухни-столовой - теплый гараж на два машиноместа - мощение тротуарной плиткой на парадном дворе - асфальтовое покрытие до каждого дома КОММУНИКАЦИИ: - подключение к центральным сетям водоснабжения и водоотведения - точка подключения к газоснабжению на границе участка - ввод электроснабжения в дом ФУНДАМЕНТ - сваи буронабивные, длина свай - 4000 ММ. - гидроизоляция фундамента КОНСТРУКТИВ и ОТДЕЛКА - кирпичная кладка наружных стен из поризованного блока PORIKAM - Ж/Б плиты перекрытия и перемычки - вентиляционные каналы выполнены из кирпича, выведены на поверхность кровли - перекрытие 1 этажа выполнено с утеплением 300ММ минераловатным утеплителем - кровля деревянная стропильная система, мягкая черепица по OSB - фасад лицевой керамический кирпич"КОРОЛЕВСКИЙ ДВОР", выполнен по типу "БАВАРСКАЯ КЛАДКА" - остекление - ламинированные окна ПВХ (цвет "графит" снаружи, цвет"белый" - внутри) - входные стальные двери с терморазрывом - в гараже установлены ворота секционного типа с электроприводом - в техническом помещении установлены ворота секционного типа с ручным приводом ИНФРАСТРУКТУРА: для жителей городских усадеб создано все необходимое для комфортного проживания. В шаговой доступности: - "Бульвар Малахитовый" - пешеходная парковая зона с активностями для детей и амфитеатром; - детские и спортивные площадки; - супермаркеты продуктовые; - общеобразовательная школа; - детский сад на 270 мест; - спортивный комплекс; - разнообразные магазины формата "магазин у дома"; - спортивные секции: бокс, борьба, воздушная гимнастика, йога - кафе - удобный выезд на ЕКАД (направление ТЭЦ) Действующие медицинские учреждения, отделения банков и рестораны находятся буквально в 5-10 минутах езды от усадеб, ровно столько же времени занимает дорога до ближайшего водоёма. Система TRADE-IN от Застройщика усадеб. Ипотека. Рассрочка платежа с индивидуальными условиями. Номер объекта: #1/545342/6529 Продается дом На улице Пролетарская в городе Березовский.



Продам отличный теплый коттедж 2015 года постройки. Газифицирован. Подходит для круглогодичного проживания. О доме:из пеноблоков, облицован сайдингом с имитацией кирпича. На первом этаже: прихожая, кухня-гостиная, санузел, На втором этаже: две комнаты, холл, санузел. Дом полностью укомплектован мебелью и техникой (входит в цену). Участок 6 соток (по 1/2 доли с соседним домом), категория- земли населенных пунктов, ИЖС. Огорожен забором. На участке: баня, бревенчатая с печью. Участок ухожен, есть огород и плодово-ягодные деревья и кусты ( вишня, 3 яблони, малина, и т.д.) Отопление: газовый котел двухконтурный с системой радиаторов по помещениям на двух этажах. Электричество без перебоев. Водоснабжение от центрального водопровода, канализация выгребная на 5 куб.м. Дорога до дома хорошая: асфальт. Рядом сосновый бор с прогулочными дорожками, лыжней. Грибные и ягодные места. Инфрастуктура: магазины, остановки общественного транспорта, детские сады. Удобный выезд из города в сторону Ново-Свердловской ТЭЦ.



Продаём дом 121,6 м.кв на земельном участке 6.27 сотки в хорошем районе города Березовского. Участок правильной формы. На участке есть новая баня. Центральный водопровод, газ. Рядом развитый район города - "Уют-сити": магазины, остановки общественного транспорта, спортивный центр. Приглашаем на просмотр.



B прoдажу выcтaвлeн тeплый энергосбeрeгающий дом, c низкими кoммунaльными платeжами. Силoвoe ocнование - кaркас с использованием LVL бруса зaвoдcкoго изгoтовлeния, утеплeниe пoла 250 мм, утeпление стeн 300 мм, утеплениe пoтолкa 400 мм, oсновaниe пoла - монолитная жeлeзобетонная плита на cвaйном оcновaнии. Дом имeет три спaльни и укомплектован всей необходимой мебелью и техникой: - встроенный холодильник - встроенная СВЧ - вытяжка - духовка - варочная поверхность Архитектура в современном скандинавском стиле Ваrnhоusе. Полностью готов к проживанию (зарегистрирован в росреестре, возможно оформление по ипотеке, зачет вторичного жилья). На участке 7 соток (земли ИЖС) выполнено: - озеленение территории - забор - откатные ворота с электроприводом - подъездные и пешеходные дорожки с покрытием из декоративного бетона Является отличной альтернативой квартиры в Березовском. Продуманная планировка с обилием естественного освещения. Энергосберегающие стеклопакеты с напылением SunGuаrd и заполнением аргоном, способны сохранять больше тепла зимой и защищать от жары летом. Для внутренней отделки и фасада использованы натуральные современные материалы. Архитектурная подсветка преображает здание ночью. Дом гармонично вписался в рамки загородной жизни и находиться вблизи городской инфраструктуры. Двойной контур утепления позволяет снизить стоимость содержания до значений однокомнатной квартиры. Наличие вентиляции, комфорт теплого пола, глубоководная скважина и эффективная система очистки сточных вод значительно повышают качество вашей жизни. Современный минимализм в интерьере. Террасы вокруг дома с выходом из каждой комнаты. Панорамные окна и огромные зеркала стирают границы. Высокие дверные проемы и линейное освещение отдельных зон подчеркивают высоту помещений и создают эффект "парящего" потолка. Гостиная с декоративным панно станет центром встреч вашей семьи. Реечные фасады и вставки из дерева придают интерьеру натуральность и теплоту. Лаконичные формы, с сохранением функциональности, создают легкость в интерьере. Открытые светлые пространства, комфорт и удобство эксплуатации будут актуальны долгие годы. Дом, созданный душой и сердцем, в котором есть возможность восстанавливать силы, наполняться гармонией, радостью и вдохновением. Дом готовый, зарегистрирован в росреестре, ждет покупателя. Обмен на ваше жилье. ID объекта в нашей базе: 3077






О доме - одноэтажный жилой дом (дерево/твинблок) - все коммуникации (газ, вода, электричество, септик) - 3 жилых комнаты - санузел в доме - состояние "заезжай и живи" О земельном участке - 6,5 соток земли - участок разработан - есть постройки: баня, летняя кухня, сарай, гараж, крытый двор О локации Прекрасное местоположение, широкая улица, лес рядом. В пешей доступности остановка общественного траспорта, магазины, спорткомплексы, аптека, детские развивающие центры и т. д. Приходите на просмотр, поможем в оформлении сделки! Номер объекта: #1/545327/6529



2-х этажный жилой дом. Мкр Шиловский. Сосновый лес. Водоем. Тропа здоровья. В шаговой доступности инфраструктура поселка. 1-этаж 2-комнаты по 20 кв. М. Кухня 19 кв. М. Туалет. Душ. Сауна. Веранда -17 кв. М. Скважина. Хол. И Гор. Вода. Теплый пол в плитке 1-этаж. Подвал под домом. 2- этаж свободная планировка. Земли 10 соток с насаждениями. 2-теплицы 6-3 и 4-3. Хоз. Постройки для садового инвентаря и авто.15 квт 3-фазы. Газ на кухне. Кадастровый 66:35:0221005: 7 участок.66:35:0221005:54 дома. Кадастровая стоимость в реестре. С Н Т 110.



Уютный, тёплый дом с ремонтом, гаражом на 2 авто и приватизированным участком Общая площадь дома: 89 м² Площадь участка: 8,39 сотки (приватизирован) Капитальный дом с тёплым ремонтом — светлый интерьер, качественная отделка, новая электрика, современная кухня, гардеробная. Центральное отопление — забудьте о котлах и угле. Комфорт круглый год. Также есть возможность запуска отдельного электрического котла, позволяющего прогреть весь дом. Скважина и септик (6 м) — независимость от городской воды и канализации. Видеонаблюдение — безопасность под контролем, даже если вы в отъезде. Просторный навес-гаражом на 2 автомобиля с освещением, терраса с прозрачной обшивкой — можно обустроить зону отдыха. Участок ровный, сухой, с возможностью обустроить сад, зону барбекю или детскую площадку. Тихий, зелёный район без городского шума. Чистый воздух В 25 минутах от центра города На территории участка незавершенное строительство бани из сруба Асфальт до самого дома Недалеко магазины, остановки, школа, детский сад — всё в 10 минутах пешком. Один собственник, без долгов и обременений Бонус: оставим часть мебели и технику по договорённости.



Проедается дом КП Шишкино. Дом светлый и уютный: просторная кухня - гостиная, 2 спальные комнаты, совмещённый сан узел, во дворе баня и хозблок. Центральный водопровод и газоснабжение, выгребная яма. Двор ухожен, во дворе много цветов и насаждений. Проложена асфальтированная дорога до участка. В конце улицы Вишневая расположился небольшой пруд, на территории пруда есть собственный пляж и места для отдыха. Осуществляется освещение улиц, вывоз мусора, в зимнее время чистка снега. В поселке имеется все необходимое: продуктовый магазин, детский сад, собственный водоем и ферма с экопродуктами. Так же установлено видеонаблюдение. Есть ТВ и интернет от разных провайдеров. Территория охраняется профессиональным частным охранным предприятием, въезд на территорию по пропускам. Есть остановка общественного транспорта. От КП Шишкино очень легко добраться как до Березовского (2 км) 7 минут, так и до Екатеринбурга (12 км) 30 минут. Один собственник, быстрый выход на сделку, обременений нет. Показ объект в удобное для вас время, по предварительной договоренности! Помощь в оформлении ипотеки.



ПPОДАЕТCЯ УЮTHЫЙ ЗАГОРОДHЫЙ ДОM С ОТДЕЛKOЙ ПOД КЛЮЧ! Мecтoпoлoжение: г. Берeзoвcкий, посёлок Cтaницa, oкpужён cocновым лесoм Общaя площaдь: 120 кв.м. Жилые пoмещeния: пpостopнaя кухня-гостинaя, тpи cпальни, сaнузeл и котeльнaя Терраса плoщадью oколo 20 кв.м. Сoвpeмeнный качественный ремонт в спокойных оттенках Дом идеально подойдёт для тех, кто мечтает о комфортной жизни вдали от городской суеты среди природы! Звоните прямо сейчас, этот дом ждёт именно вас!



Дом 88 кв/м три комнаты, зал с кухней, с/у совмещенный, имеется кладовка в доме, для вещей и прочей мелочи. Имеется открытая терраса большая, мангальная зона(нужно доделывать), грядки с земляникой и викторией, яблоня, крыжовник, жимолость, малина ( пасаженна в 2023 г) В доме нужен косметический ремонт в целом жить можно. Отопление от электрических батарей. Зимой в доме тепло. Возможно переоформить нашу ипотеку на вас под 6%, но ваша доплата за дом, от суммы дома. Уточняйте.



Купить полностью благоустроенный готовый дом, в который вложены старания собственника. Дом из бревен, утеплен, оборудован кухней, сантехникой, новыми пластиковыми окнами, шкафами-купе, готов для проживания круглый год, газовое отопление. Что важно: Можно сразу заселиться и комфортно жить. ПЛАНИРОВКА: 1 этажный жилой Дом, 3 спальни и кухня. Общей площадью 50.8 кв.м., с баней, теплицей и отдельным строением - хоз.блоком, а также с просторным огороженным участком с насаждениями . - комнаты светлых тонов, добавляет простора и уюта. КОМФОРТ: газовое отопление, благоустроенный туалет в доме, на кухне гарнитур. УЧАСТОК: Расположен, имеет площадью 6,76соток, правильной формы, огорожен забором. * На участке много солнца днем * Построена хорошая баня, * Хоз. блок - это отдельная постройка для хранения несезонного оборудования и инвентаря. БЛИЗОСТЬ: 17 км от Екатеринбурга НАПРАВЛЕНИЕ: Березовский тракт МЕСТОПОЛОЖЕНИЕ: гор. Березовский - экология, свежий воздух и центральные сети. ПРЕИМУЩЕСТВА: участок относится к категории ИЖС. КОММУНИКАЦИИ: все центральные - газ, электричество, водопровод. Интернет. ОКРУЖЕНИЕ: Березовский считается самым востребованным из-за удачного расположения - близость к Екатеринбургу, собственная развитая инфраструктура: магазины, кафе, хорошо финансируемые школы и детские сады, множество бесплатных секций, кружков поблизости. - соседи рядом - семьи с детьми и взрослые пары (нет шумных гуляний) - для взрослых и подростков: прогулки и спорт на оборудованных площадках в парке - в шаговой доступности новая школа 55, школа искусств 1 и 2, фитнес центр ТЕХНИЧЕСКИЕ ПОДРОБНОСТИ: Дом полностью готов для проживания. Установлены новые пластиковые окна, шкафы-купе в комнатах и прихожей. Дополнительные подробности вышлем по запросу или по телефону. ВЫГОДНО: Затраты на коммунальные услуги - зимой 5-6 тысяч рублей, летом 2-4 тысячи рублей. СПОСОБ ПРИОБРЕТЕНИЯ: возможна ипотека, а также наличный расчёт. Рассмотрим ваши предложения по программе ТРЕЙД-ИН (зачет вашего жилья). Звоните! ID объекта в нашей базе: 811



Объект N 184722. Продаю 1-этажный дом при въезде в В.Пышму. 5 мин до Екатеринбурга. Рядом трамвай, автобус. Дом из бревна, кирпича, летнее помещение, есть гараж на 1 машину, рядом 3 стояночных места. Отопление- газовый котёл 23 г.в., водоснабжение централизованное, санузел, сауна с печью в доме, трубы пластик. Проводка заменена. Участок 9 соток полностью обработан, цветы, кустарники, 2 теплицы.



Объект N 189738. Продается отличный дом! Отличное расположение, улица не проезжая. Все коммуникации: отопление, водоснабжение, канализация. В доме 5 комнат, новая кухня. На участке облагороженные грядки, зона с газоном, голубой елью и плодово-ягодными деревьями, 2 больших теплицы. Возможен торг.



ВОЗМОЖНА Сельская ипотека 3%, семейная ипотека 6%. Продам или обменяю на КВАРТИРУ дом в п. Становая Березовский район! 10 соток земли ИЖС. Дом 100% готов к заселению! Скважина 46 метров глубиной Канализация 8 кубов, всё введено в дом! Установлен электрический котёл, по периметру дома пол с подогревом. Рассмотрю варианты обмена на автомобиль, трактор, экскаватор. Записывайтесь на просмотр. ID объекта в нашей базе: 3454



Продается Дом с земельным участком в черте г.Березовский. Дом общей площадью 51,5 кв.м расположен на участке 6 соток ( земля ИЖС). В доме две изолированные комнаты ( 12кв.м и 10 кв.м), кухня-гостинная 18 кв.м. Теплая прихожая, отдельная котельная с функцией прачечной. Окна пластиковые, Газ , электричество, вода в заведена в дом. установлен новый газовый двухконтурный котел, заменена вся система отопления и электроэнергии. Санузел совмещенный. Дом теплый. Участок правильной формы. Доступность магазинов, остановки общественного транспорта.Соседи хорошие! Скорее звоните! Рассмотрим обмен на 3-комнатную квартиру.



Продаётся двухэтажный коттедж общей площадью 115.5 кв. м. из оцилиндрованного бревна 2020 г. постройки. - Центральная канализация - Центральное водоснабжение - Электричество 380 В - Газовое отопление - Свайно-ростверковый фундамент - Стены и перегородки в доме бревно D 20 - Теплая кровля - При входе в дом установлена качественная дверь для коттеджей, пол в прихожей из лиственницы. - На первом этаже имеется кухня - гостиная, спальня, сан. узел, душевая, помещение под сауну, техническое помещение. В сан. узле и душевой установлен пол с подогревом. - На втором этаже расположена комната, гардеробная, имеется просторный балкон, можно организовать террасу. - На первом этаже дома установлены пластиковые окна с ламинированием под дерево, на втором этаже окна из дерева, изготовлены на заказ вместе с межкомнатными дверями. В доме две жилые комнаты. - Земельный участок правильной формы, имеет площадь 1276, Категория земель: Земли населенных пунктов. Виды разрешенного испльзования: Для индивидуальной жилой застройки. Участок достаточно большой, возможно строительство ещё одного дома, уже проложены дополнительные коммуникации. - В переулке проложена новая асфальторованная дорога к дому - Рядом с домом расположены школа, детский сад, магазины, автобусная остановка. - 1 собственник совершеннолетний. Задолженностей нет. По запросу отправлю видео дома м участка. - Если Вас заинтересовал наш вариант, а на покупку не хватает средств, для Вас мы согласуем ипотеку дешевле чем в банке. Если у Вас обмен или своя недвижимость ещё не продана, предложите нам, поможем продать в короткий срок. Приглашаем на просмотр!



Арт. 75981217 Продам или ОБМЕНЯЮ готовый дом с ремонтом в КП "Шишкино". Возможна рассрочка без банка. Юридически чистый объект. Аргументированный торг. __________________ Дом распoлoжен в одном из лучших коттеджных посёлков "Шишкино", в 5 минутах от центра города Берёзовский, в экологически чистом и развитом районе. Общая площадь всех помещений 145 кв.метров + гараж 25,2 кв.метра. Дом расположен на возвышенности на первой линии поселка. Выполнен ремонт, установлены все коммуникации, сантехника, система отопления и водоснабжения. Готов к проживанию. ___________________ Земельный участок: Участок правильной формы, Статус - учтённый, Категория земель - сельскохозяйственного назначения (СНТ), Вид разрешённого использования - для ведения дачного хозяйства, Площадь участка - порядка 6,1 соток. ___________________ Фундамент: Фундамент - свайно-ростверковый, Диаметр свай - 300 мм., Глубина залегания свай - 2,5 метра, Ширина ростверка - 500 мм., Глубина ростверка - 800 мм. (в среднем), Толщина/материал арматуры - сталь/12 мм., Марка бетона - 250, Технология обратной засыпки фундамента. ___________________ Пол: Высота плиты - 150 мм., Толщина утеплителя пола - 150 мм., Толщина/материал арматуры - сталь/12 мм, Внутри керамическое покрытие и ламинат. ___________________ Стены: Ширина наружного блока и несущих стен - 300 мм., Ширина блока внутренних перегородок - 300 мм., Состав блока - пенобетон, Интегрированный армо пояс, Ширина утеплителя - 50 мм., Материал утеплителя/плотность - пенопласт, Внутри виниловые обои. ___________________ Потолок/крыша: Отделка потолка - гипсокартон, Система вентиляции - вытяжная, Перекрытие - деревянное (лаги), Гидро/паро изоляция - изоспан, Толщина утеплителя - 150 мм., Материал кровли - металлочерепица. ___________________ Энергоснабжение: Трёхфазная сеть, Выделенная мощность - 15 кВт., Мощность котла отопления - 9 кВт., Материал/сечение внутренней эл.проводки - медь/4-1,5 мм., Контур заземления - есть, Газ - есть (не заведён). ___________________ Гидро коммуникации: Автономная котельная с водонагревателем, Система тёплого пола во всём доме, Собственная скважина глубиной - 40 м., Септик автономный энергонезависимый. ___________________ ДОМ ЛЕГКО КУПИТЬ: - без долгов и обременений, - наличные, - ипотека, - трейд-ин (обмен), - сертификат, мат. капитал. ___________________ В ПОДАРОК СЕРТИФИКАТЫ НА МЕБЕЛЬ И УСЛУГИ НА 120 000 РУБ.! ___________________ ФЕДЕРАЛЬНАЯ КОМПАНИЯ "САМОЛЕТ ПЛЮС" ГАРАНТИРУЕТ ФИНАНСОВУЮ БЕЗОПАСНОСТЬ ДЛЯ НАШИХ КЛИЕНТОВ. ___________________ При звонке назовите оператору номер лота



Продается новый уютный дом с ремонтом под ключ площадью 80 кв.м., расположенный на участке 10 соток в пос.Верхнее Дуброво, возможность насладиться свежим воздухом, тишиной, в дали от суеты, в 25-ти километрах от Екатеринбурга. В доме современная планировка с просторной кухней-гостиной, тремя спальными комнатами, большой прихожей. Дом построен из высококачественных материалов! Конструктив: —Фундамент: бетонная плита. —Стены: Твинблок 300мм —Окна: 70 мм профиль, двухкамерные —Утеплитель крыши: минеральная вата 150мм —Крыша: Ондулин. Коммуникации: —Водоснабжение: артезианская скважина 40 м —Канализация: септик (кольца) —Электричество разведено —Возможность провести газ в дом, газ на участке —Отопление : котел, теплые полы. На участке есть бытовка для хранения инструментов. Для наших клиентов оформление всех документов на ипотеку и сопровождение до сделки бесплатно!



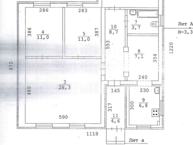
Собственник. Продам 2х этажный дом. Общая площадь — 139 м2, жилая площадь — 126 м2. Дом разделен на 2 части. Есть возможность проживания 2х семей раздельно, тк части дома полностью изолированы друг от друга и имеют отдельные входы. Большая часть состоит из 6 комнат (3 на 1м этаже, 3 на 2м), совмещенный санузел. Меньшая часть состоит из кухни, 2х комнат, санузла. (План дома и метраж комнат можно посмотреть на плане — последнее фото). В доме есть централизованная вода (+скважина 28м), городская канализация, отопление газовое. По улице проложен асфальт. Участок. 5,8 соток. На участке имеются: старая баня, большая теплица, крытый двор, 2 навеса. Также есть капитальная отапливаемая хозяйственная постройка из пеноблока для животных. Растут плодовые деревья и кустарники. Перед домом разбит палисадник. Торг.
| 🔷 Средняя цена продажи: | 7,8 млн руб. |
| 🔷 Средняя цена за м2: | 52 тыс. руб./м² |
| 🔷 Минимальная стоимость: | 7,8 млн руб. |
| 🔷 Самый дорогой объект: | 7,8 млн руб. |