


136 319 ₽/м²
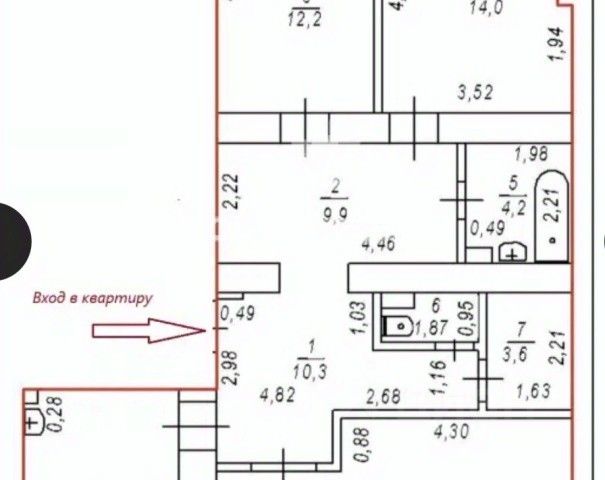
Жилой квартал "Янтарная долина" расположен в районе Новый Виз, вблизи Верх-Исетского пруда. Предлагаем вам квартиры в пятой очереди строительства — секциях 4.1-4.4. Это дом переменной этажности от 9 до 21 этажа по адресу улица Крауля, 170а. Дом сдан. Продажа от застройщика по договору купли-продажи. Район В Новом Визе городской комфорт сочетается с зелёной природой. Это одно из самых перспективных направлений в Екатеринбурге. 5 минут пешком до остановки транспорта 5 школ и 4 детсада поблизости 10 минут хода до набережной Верх-Исетского пруда 15 минут на машине до центра города 16 минут на машине до "МЕГИ" Двор В центре жилого квартала — двор для насыщенной жизни, игр и отдыха. Концепция "Двор без машин", когда можно заехать только для разгрузки и погрузки Детские площадки для разного возраста, футбол и уличный баскетбол Закрытая территория с пропускной системой и без посторонних Круглосуточное видеонаблюдение и освещение территории Подъезды Подъезд в "Янтарной долине" — яркое и светлое пространство, от которого становится приятно. Доступ в подъезды на уровне земли — без барьеров Домофоны в тёплых остеклённых тамбурах Вместительные грузопассажирские лифты во всех секциях Помещения для колясок и самокатов на 1 этаже Удобная навигация с номерами этажей и квартир Планировки Наш подход к проектированию квартир называется "Разумные метры". Это значит не только исходить из площади, но и учитывать число жильцов и их потребности. Объединённые кухни-гостиные для простора и общения В зависимости от вашего стиля жизни — по несколько вариантов планировок, от студий до 3-комнатных Отказ от бесполезных "мёртвых" зон 52 вида уникальных планировок Отделка В каждой квартире "Янтарной долины" мы позаботились о чистовой отделке, чтобы ваш переезд прошёл быстро и не вызвал лишних хлопот. Прочный водостойкий ламинат на полу в комнатах, прихожих и кухнях, плитка в санузлах, на стенах виниловые обои на флизелиновой основе, белые натяжные потолки Межкомнатные двери светлых тонов и сейф-дверь на входе в квартиру В санузлах установлены раковины и унитазы, а во всей квартире — розетки и выключатели Радиаторы с терморегуляторами и горизонтальной разводкой, двухкамерные стеклопакеты с приточными клапанами вентиляции Телеметрические счётчики на свет, тепло и воду Продается квартира квартир в Янтарная Долина в Екатеринбурге.











































































































