


101 215 ₽/м²
Предлагаем к приобретению студию в кирпичном доме на 7м этаже. Отличное сочетание комфорта, надёжности и доступной цены! Основные характеристики: Расположение: Верхняя Пышма. Тип недвижимости: апартаменты (студия). Этаж: 7. Материал дома: кирпич (обеспечивает отличную звуко и теплоизоляцию, долговечность постройки). Планировка: студия — функциональное пространство, которое легко адаптировать под любые нужды: проживание, работу или сдачу в аренду. Преимущества объекта: Лоджия: дополнительное пространство для отдыха, хранения или озеленения. Пластиковые окна: современные стеклопакеты гарантируют тишину и комфортный микроклимат в помещении. Сейф-дверь: повышенная безопасность и защита от несанкционированного доступа. Совмещённый санузел: эргономичное решение, экономящее пространство. Дополнительные возможности: Ипотека: приобретение возможно в ипотеку — поможем с оформлением! Гибкость использования: апартаменты подходят как для личного проживания, так и для инвестиций (сдачи в аренду). Идеальный вариант для тех, кто ценит комфорт, безопасность и выгодное расположение. Звоните, чтобы узнать подробности и записаться на просмотр!



133 603 ₽/м²
Новая цена действительна только до конца апреля! Далее будет повышение! Успевайте! Продается квартира-студия (апартаменты). Сделан хороший ремонт: натяжные потолки, моющиеся обои, в санузле и коридоре - плитка, пластиковые окна. Оборудована кухня (гарнитур, плита, мойка, вытяжка). Рядом с домом есть школы и детские сады. Хорошая транспортная развязка. В шаговой доступности сосновый бор. Воздух в этой части города чистый, без "ароматов" химических выбросов. На этаже всегда тихо-спокойно. Круглосуточно работает консьерж. После продажи остаётся кухонный гарнитур, диван, мебель для ванной комнаты. Обоснованный торг уместен.

150 612 ₽/м²
ЖК Гранд Успенский, 1 очередь, 3 секция, Квартира 176

118 239 ₽/м²
ЖК Гранд Успенский, 2 очередь, 4 секция, Квартира 337

142 963 ₽/м²
ЖК Гранд Успенский, 1 очередь, 3 секция, Квартира 183



130 000 ₽/м²
Продается отличная квартира - студия в тихом и спокойном районе с развитой инфраструктурой города Верхняя Пышма. Чистая продажа, прописанных нет, один взрослый собственник. Квартира свободна, быстрый выход на сделку, ключи в день сделки готовы передать. Показ в удобное для Вас время! На все интересующие вопросы готов ответить по телефону.



99 246 ₽/м²
Продается просторная однокомнатная квартира площадью 39,8 кв. метров в центральном районе Верхней Пышмы, отличающаяся продуманной и узаконенной перепланировкой. Ключевым преимуществом является объединение кухни и жилой зоны, что создает современное светлое пространство, визуально увеличивающее площадь. В помещении выполнен качественный современный ремонт с совмещенным санузлом, отделанным кафелем, установлены пластиковые окна и надежная входная дверь. Подъезд чистый и отремонтированный, соседи спокойные и дружелюбные. Локация объекта является еще одним существенным достоинством: в пешей доступности сосредоточена вся необходимая повседневная инфраструктура, включая супермаркеты, детские сады, школу и остановку общественного транспорта, что обеспечивает максимальное удобство для жизни. Код пользователя: 1681 Номер в базе: 10942218



166 667 ₽/м²
Предлагается к продаже светлая, комфортная, уютная, чистая студия, общей площадью 24,2 кв.м. в центре г. Верхняя Пышма по адресу: проспект Успенский, дом 18. Удобное расположение: в шаговой доступности вся социальная инфраструктура: -торговый центр, - самый большой фитнес-центр города РоsitivеStylе, - дворец игровых видов спорта со множеством спортивных секций, - бассейн, стадион, -театр, кинотеатр, музеи, городской парк, несколько скверов, - студии красоты, кафе, - детские сады, школы, в том числе современное четырехэтажное здание Школы 1, - трамвайная линия до Екатеринбурга. Благоустроенная дворовая территория. Дом в хорошем состоянии, чистый подъезд. Безопасность: видеонаблюдение, пост охраны, закрытый двор без машин. Дополнительная информация: из мебели остается кухонный гарнитур, в коридоре - шкаф-купе. Показ в заранее согласованное время. Подробности по телефону! ID объекта в нашей базе: 1037



150 943 ₽/м²
Продаётся светлая студия на 13-м этаже в современном жилом комплексе с закрытой территорией. Продуманная планировка с двумя окнами и панорамным остеклением балкона наполняет пространство естественным светом и открывает впечатляющие виды на лес. В квартире выполнен ремонт от застройщика, установлена новая бытовая техника и мебель — всё остаётся новому владельцу. Отдельного внимания заслуживает низкая стоимость коммунальных платежей благодаря автономной котельной: горячая вода и отопление стабильны круглый год, независимо от сезона. Расположение максимально удобное: в шаговой доступности супермаркеты, аптеки, детские сады и школа 3; отличная транспортная доступность позволяет быстро добраться до любой точки города. Юридическая чистота сделки подтверждена — в квартире никто не зарегистрирован, документы готовы к продаже, возможен быстрый выход на сделку. Организуем просмотр в любое удобное для вас время, поможем с одобрением ипотеки. Код пользователя: 31951 Номер в базе: 12600360



135 314 ₽/м²
Продам уютную, просторную квартиру в жилом комплексе ЖК Успенский , в центре города Верхняя Пышма, отделка под чистовую. Квартира очень светлая, окна выходят во двор. В квартире хорошая звуко и тепло изоляция. Установлены индивидуальные счетчики. Балкон застеклен. Закрытый двор оборудованный детской и спортивной площадкой. В шаговой доступности автобусная остановка, больница, детский сад 3,48,1, школа 2, магазины, торговые центры, автостоянка, администрация, современный банный комплекс.

143 403 ₽/м²
ЖК Гранд Успенский, 1 очередь, 1 секция, Квартира 52



140 728 ₽/м²
Предлагаем светлую, теплую, уютную квартиру в хорошей локации. Окна во двор. Двор закрытый. Квартира без обременений, ипотеки, без несовершеннолетних собственников, в свободной продаже. Можно быстро заехать и жить. Благополучные соседи, пешая доступность транспорта, магазинов (в доме), зон отдыха делают проживание в этом доме комфортным. Школа и детский сад рядом. Во дворе отличная детская площадка.



127 596 ₽/м²
СОВРЕМЕННАЯ КВАРТИРА-СТУДИЯ С РЕМОНТОМ Отличный вариант для жизни или инвестиций Продаётся светлая и аккуратная квартира-студия с ремонтом — идеальное решение для первого жилья или стабильного дохода от аренды. О квартире Свежий современный ремонт в светлых нейтральных тонах Удобная планировка — легко зонировать пространство Квартира с кухней, местами хранения Чистая, аккуратная и полностью готова к заселению Локация и инфраструктура Дом расположен в районе с развитой инфраструктурой: Магазины, ТЦ, аптеки, супермаркеты Школы и детские сады Остановки общественного транспорта Почему стоит купить Отличный вариант для первого жилья Подходит студентам и молодым специалистам Высокий спрос на аренду Ликвидный объект в хорошем районе Звоните!



129 794 ₽/м²
Объект N 191992. Продам просторную квартиру, расположенную в городе Верхняя Пышма. Развитая инфраструктура, рядом детские сады, новая 25 школа, магазины, автосервисы, торговый центр. Недалеко от дома прекрасный Манин парк. До Екатеринбурга 5 минут на машине. Рядом автобусная остановка. В подарок от агентства недвижимости сертификат- Защита права собственности.



136 364 ₽/м²
Продам квартиру-студию от собственника по переуступке прав. Квартира расположена в развивающемся районе города Верхняя Пышма. В шаговой доступности школа 1, детские сады, трамвайное кольцо до города Екатеринбурга, завод УГМК, Манин парк. Застройщиком планируется закрытая дворовая территория, возможно дополнительно приобрести паркинг. СДАЧА ДОМА УЖЕ В СЕНТЯБРЕ 2026 года! ЦЕНА НИЖЕ, ЧЕМ У ЗАСТРОЙЩИКА Один взрослый собственник, без обременений.



140 187 ₽/м²
Продается просторная Студия, 32,1 кв.м, в Жилом квартале Юность". Преимущества: Удобное расположение: в шаговой доступности вся социальная инфраструктура, детские сады 34, 22; СОШ 1 с углубленным изучением отдельных предметов им. Б.С. Суворова, СОШ 22 с углубленным изучением отдельных предметов; остановка общественного транспорта; ледовая арена; парк УГМК; дворец спорта, пункты выдачи интернет-заказов Отличная планировка: просторная кухня и выделенная жилая зона с панорамным угловым окном, откуда открывается красивый вид. Благоустроенная дворовая территория. Дом в хорошем состоянии, чистый подъезд. Безопасность: видеонаблюдение, пост охраны, закрытый двор без машин. Доп. информация: из мебели остается кухонный гарнитур со встроенной техникой, вместительный шкаф-купе в прихожей, остальное по договоренности. Один взрослый собственник. Звоните, записывайтесь на просмотр. ID объекта в нашей базе: 6633



151 613 ₽/м²
Продается уютная студия в Верхней Пышме по адресу: Юбилейная улица, 26А, один взрослый собственник. Квартира расположена на 12-м этаже 12-этажного кирпичного дома, построенного в 2012 году. Общая площадь составляет 31 кв. м. Высота потолков — 2.5 метра. Окна выходят во двор, что гарантирует тишину и комфорт. Территория дома огорожена забором, в подъезде круглосуточная охрана. Квартира с ремонтом, на балконе, в кухне и коридоре установлены тёплые полы, вам не придется тратить время и деньги на обновление интерьера. В студии есть все необходимое для комфортного проживания: современная мебель и техника-холодильник, посудомоечная машина, духовой шкаф, водонагреватель. Санузел совмещенный, в отличном состоянии. Просторный утеплённый балкон позволяет наслаждаться свежим воздухом и видом на город. Дом в хорошем состоянии, оборудован пассажирским и грузовым лифтами, а также пандусом для удобства передвижения. На территории дома есть наземная парковка, поэтому вы всегда найдете место для вашего автомобиля. Район с развитой инфраструктурой: рядом расположены школы, детские сады, клиники и магазины. Все, что нужно для комфортной жизни, находится в шаговой доступности. Удобная транспортная развязка позволяет быстро добраться до центра города. Продажа от собственника, без посредников. Возможна покупка в ипотеку. Документы готовы к сделке, обременений нет. Приглашаем вас на просмотр квартиры в удобное для вас время. Звоните и записывайтесь на встречу, чтобы лично оценить все преимущества этого предложения.



176 493 ₽/м²
Продаётся студия в строящемся доме (Дом 1.2), срок сдачи: III-кв. 2027, общей площадью 26.8 кв.м., на 5 этаже. Новый жилой комплекс "Brick House" от застройщика "ГК Интег Девелопмент" расположен по адресу: г. Верхняя Пышма, Успенский проспект.



165 989 ₽/м²
Продаётся студия в строящемся доме (Дом 1.2), срок сдачи: III-кв. 2027, общей площадью 29.52 кв.м., на 2 этаже. Новый жилой комплекс "Brick House" от застройщика "ГК Интег Девелопмент" расположен по адресу: г. Верхняя Пышма, Успенский проспект.



186 792 ₽/м²
Продаётся светлая уютная студия в новом доме ЖК Тихий центр (Верхняя Пышма). Общая площадь 26,5 м², 14 этаж — отличный вид из окна и с балкона. В квартире никто не жил, выполнен стильный ремонт, установлена новая бытовая техника: холодильник, варочная панель, микроволновая печь, стиральная машина, телевизор, фильтр для воды. Мебель: удобный диван, вместительный шкаф. Комфорт и технологии: В студии реализованы различные сценарии освещения — можно создавать уютную или рабочую атмосферу. Установлены умные выключатели, интегрированные с Алисой (умная колонка в комплекте). Управляйте светом голосом, не вставая с дивана. В санузле — ванна и теплый пол для дополнительного уюта. Дом с закрытой территорией, во дворе школа. На первых этажах — всё необходимое для жизни: супермаркет Магнит, ЖизньМарт, ПВЗ Ozon, WB, пекарня, цветы, гончарная мастерская, косметологический кабинет. В пешей доступности — культурные и спортивные объекты: музей и парк УГМК, Манин парк, Дворец самбо и единоборств, Кванториум, Ледовая арена, Технический университет УГМК, театр. Рядом много кафе и ресторанов Два деда, Книги, кофе и другие измерения. Остановки трамвая, автобусов и электрички в шаговой доступности — удобно добираться до Екатеринбурга. Идеальный вариант для комфортного проживания в развитом районе с отличной инфраструктурой. Никто не прописан. Один взрослый собственник. Подойдёт для сдачи в аренду



172 437 ₽/м²
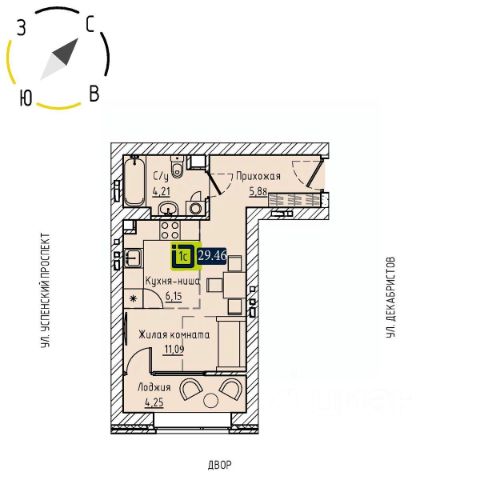
Продаётся студия в строящемся доме (Дом 1.2), срок сдачи: III-кв. 2027, общей площадью 29.46 кв.м., на 5 этаже. Новый жилой комплекс "Brick House" от застройщика "ГК Интег Девелопмент" расположен по адресу: г. Верхняя Пышма, Успенский проспект.



145 714 ₽/м²
родажа студии с мебелью и техникой! Полностью готово для жизни мебель и техника остаются новым владельцам Продается уютная и светлая студия, в которой можно жить прямо сейчас — не нужно докупать даже шторы. Ремонт свежий, сделан качественно и аккуратно. Один взрослый собственник, полная юридическая чистота. Общая площадь: 35 кв.м. Полностью оборудована (ОСТАЕТСЯ в квартире): Кухонная зона: Современный кухонный гарнитур в отличном состоянии. Встроенная варочная поверхность и вместительный холодильник — ваши. Можно готовить хоть в день переезда. Жилая зона: Удобная кровать с качественным матрасом (спальное место готово!). Вместительный шкаф для одежды, прихожая, обеденный стол и стулья. Ванная комната: Здесь сделан качественный ремонт. Установлен удобный душевой уголок (не кабина, выполнен душевой трап, выложен плиткой). Стиральная машина остается. Ремонт и отделка: Стены: Полностью выровнены, поклеены современные обои в нейтральном тоне. Пол: Практичный кварцвинил — не боится воды, теплый, не скрипит и отлично выглядит. Санузел: Выложен плиткой, аккуратные швы, новая сантехника. Дом новый, ЖК "Петровский премиум". Оборудована территория, есть детские и спортивные площадки. В подьезде есть закрытое помещение для колясок и велосипедов. Из окон открывается вид на частный сектор, нет соседей окна в окна. Звоните и приезжайте смотреть! Квартира чистая, светлая, полностью готова к вашему новоселью. Переезжайте с чемоданом личных вещей, всё остальное мы оставляем.



169 216 ₽/м²
Продаётся студия в строящемся доме (Дом 1.2), срок сдачи: III-кв. 2027, общей площадью 32.03 кв.м., на 4 этаже. Новый жилой комплекс "Brick House" от застройщика "ГК Интег Девелопмент" расположен по адресу: г. Верхняя Пышма, Успенский проспект.
| 🔷 Средняя цена продажи: | 4,1 млн ₽ |
| 🔷 Средняя цена за м2: | 154,2 тыс. ₽/м² |
| 🔷 Минимальная стоимость: | 2,5 млн ₽ |
| 🔷 Самый дорогой объект: | 5,4 млн ₽ |