


232 279 ₽/м²
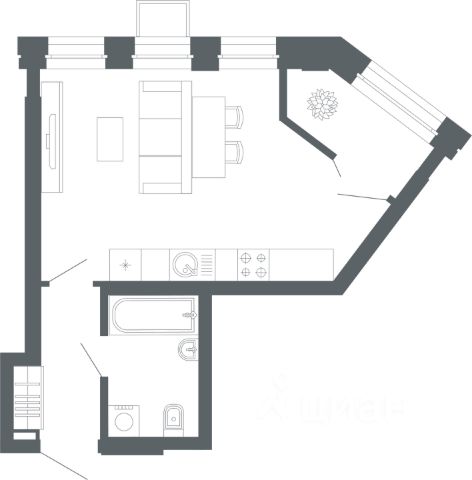
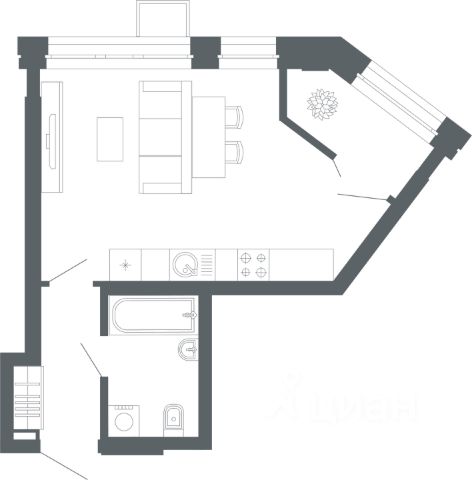
Компаунд "Проспект Мира" — уникальный проект бизнес-класса рядом с УрФУ с выразительной архитектурой, который гармонично вписался в локацию и придал ей новое звучание. Локация Кировский район, Втузгородок. Тихий зелёный район с развитой инфраструктурой — в шаговой доступности есть всё необходимое для комфортной жизни. О доме 47/6 — 2 секции переменной этажности (5 и 30 этажей) — Двухуровневый подземный паркинг — Кладовые — Просторные холлы с зонами ожидания и колясочные — Класс энергоэффективности А Комьюнити — Закрытый двор с зонами отдыха, фонтаном и ручьем — настоящее место притяжения жителей — Детские площадки зонированы по возрастам — интересно и безопасно — Спортивная площадка и воркаут зона — для занятий на свежем воздухе — Соседский центр — если хочется встретиться с друзьями на нейтральной территории — Лобби с мягкой зоной — для ожидания такси — Фитнес-клуб с бассейном 24 м, СПА, ресторан, бильярд — можно попасть, не выходя на улицу Безопасность — Закрытая территория без машин — Контроль доступа и видеодомофония — Видеонаблюдение и патрулирование территории — Мониторинговый центр и группа быстрого реагирования Инженерные технологии — Система приточно-вытяжной вентиляции с рекуперацией — Собственная автономная газовая котельная — Многоступенчатая очистка воды Другие квартиры в доме 47/6 — Площадь: от 34,7 до 74,4 м² — Потолки: от 2,7 до 3 м — Отделка: предчистовая или эксклюзивная (с мебелью и техникой) Как купить? — Поможем продать вашу квартиру, чтобы вы переехали в новую — Доступны рассрочка и индивидуальные условия — Скидки при полной оплате Оставьте заявку, мы подберём для вас квартиру мечты и инструменты покупки. Купить квартиру-студию квартир-студий в Проспект Мира. Компаунд в Екатеринбурге.
































































































































