107 604 ₽/м²
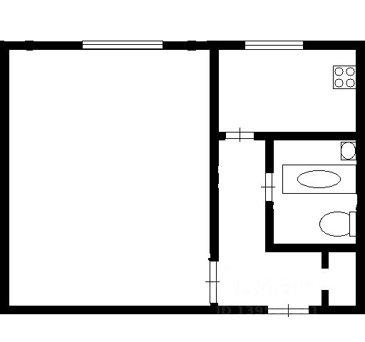
Продаётся уютная квартира площадью 28.8 кв.м. на 8 этаже 12-эт. монолитного дома, расположенного по адресу: город Среднеуральск, Советская улица, 28. Дом построен в 2016 году и оснащён кодовой дверью, что обеспечивает дополнительное спокойствие жителям. Из окон вашего будущего жилья открывается приятный вид на двор, где расположены детская и спортивная площадки идеальное место для отдыха и развлечений всей семьи. Для автовладельцев предусмотрена парковка во дворе. Внутри квартиры выполнен косметический ремонт, создающий приятную атмосферу и готовую для комфортного проживания сразу после покупки. Совмещённый санузел добавляет удобства в повседневное использование пространства. Для жителей и их детей особенно актуально будет наличие школы, детского сада, торгового центра, фитнес-клуба и парка неподалёку от дома, что делает расположение ещё более привлекательным. Хотя расстояние до центральных улиц и станций города может показаться значительным при пешем передвижении, развитая инфраструктура района позволяет наслаждаться комфортом жизни без необходимости частых дальних поездок. Приглашаем вас оценить все преимущества данной квартиры лично! Она ждёт своих новых владельцев, готовых наполнить её теплом и счастьем. Квартира-студия вторичка в Среднеуральске.









































































