Первичная продажа



Ипотека по сниженной ставке
ещё 5 акций
С отделкой
Онлайн-бронирование
сдача ГК: 4 кв. 2023 года
Геологическая
8 минут на транспорте
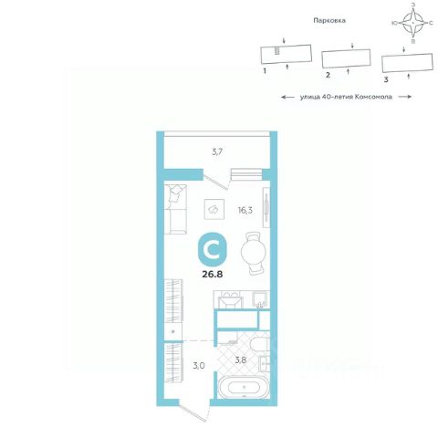
7 789 760 ₽
254 567 ₽/м²
Компаунд 'Проспект Мира' — уникальный проект бизнес-класса рядом с УрФУ с выразительной архитектурой, который гармонично вписался в локацию и придал ей новое звучание.
Локация Кировский район, Втузгородок. Тихий зелёный район с развитой инфраструктурой — в шаговой доступности есть всё необходимое для комфортной жизни.
О доме 47/7 — 2 секции, развернутые внутрь дворового пространства — Двухуровневый подземный паркинг — Кладовые — Просторные холлы с зонами ожидания и колясочные — Класс энергоэффективности А
Комьюнити — Закрытый двор с зонами отдыха, фонтаном и ручьем — настоящее место притяжения жителей — Детские площадки зонированы по возрастам — интересно и безопасно — Спортивная площадка и воркаут зона — для занятий на свежем воздухе — Соседский центр — если хочется встретиться с друзьями на нейтральной территории — Лобби с мягкой зоной — для ожидания такси — Фитнес-клуб с бассейном 24 м, СПА, ресторан, бильярд — можно попасть, не выходя на улицу
Безопасность — Закрытая территория без машин — Контроль доступа и видеодомофония — Видеонаблюдение и патрулирование территории — Мониторинговый центр и группа быстрого реагирования
Инженерные технологии — Система приточно-вытяжной вентиляции с рекуперацией — Собственная автономная газовая котельная — Многоступенчатая очистка воды
Другие квартиры в доме 47/7 — Площадь: от 30,6 до 110 м² — Потолки: от 2,75 до 3,5 м — Отделка: предчистовая или эксклюзивная (с мебелью и техникой)
Как купить? — Поможем продать вашу квартиру, чтобы вы переехали в новую — Доступны рассрочка и индивидуальные условия — Скидки при полной оплате
Оставьте заявку, мы подберём для вас квартиру мечты и инструменты покупки.
Стоимость указана при условии 100% оплаты.


























































































































