Хорошая цена
Только на Циан
Геологическая
4 минуты на транспорте
5 000 000 ₽
111 111 ₽/м²
Продается двухкомнатная квартира на ВИЗе
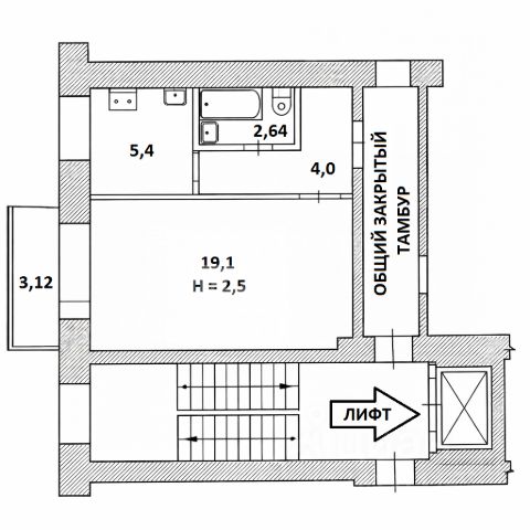
Общие параметры
Общая площадь: 45 м2
Кухня: 6м2
Этаж 5 из 5
Санузел: совместный
Балкон: есть; остеклен
Квартира после ремонта, полностью готова для проживания:
Кухня: Кухонный гарнитур с большой рабочей зоной и место для хранения, система газоснабжения.
Окна- установлены качественные стеклопакеты в деревянных рамах.
Комнаты изолированные на две стороны.
Пол ламинат, потолок натяжной, стены: обои.
В комнатах установлен кондиционер, работают, заправлены, пульты в комплекте.
В комнате с балконом остается встроен шкаф для хранения вещей.
Санузел: совмещен, установлена душевая кабина и место для стиральной машины под раковиной. Дверь - купе, кафель.
В коридоре остается большой вместительный шкаф.
Ремонт крыши был сделан в 2022 году, ремонт в подъезде весной 2026 году.
Дом находится в развитом и зеленом районе с отличной инфраструктурой.
В пешей доступности находятся школы:
- школа 79
- школа 168
- школа 63 с углубленным изучением предметов
Для семей с детьми рядом расположены детские сады: 462, 413, 444, 559, 24, 67
Очень удобная транспортная доступность:
- остановки "Посадская" и "Дворец спорта" находятся в нескольких минутах пешком.
- быстрый выезд как в центр города, так и в сторону объездной,
- до метро можно добраться за 10-15 минут.
Рядом расположены крупные торговые и развлекательные центры:
- ТРЦ "Фан Фан" - кинотеатр, фуд-корт, супермаркет, магазины одежды, детские зоны и фитнес-клуб;
- ТРЦ "Гринвич" - крупнейший торгово-развлекательный центр города с кинотеатром, ресторанами, брендовыми магазинами и семейными развлечениями;
- ТЦ "Универбыт" - рядом с домом, удобно для ежедневных покупок;
- ТРЦ "Мегаполис" - магазины, кафе, развлечения и услуги;
- ТЦ "МЕГА" - IKEA-зона, гипермаркеты, семейный досуг и крупные федеральные магазины;
- "Радуга Парк" - популярный семейный торгово-развлекательный центр с парком отдыха, колесом обозрения и кинотеатром.
Для прогулок и отдыха рядом:
- Зеленая роща,
- парк имени XXII Партсъезда,
- Дворец спорта и спортивные комплексы,
- фитнес-клубы Bright Fit и Port Fitness.
Тихий зелёный двор, развитый район, удобная инфраструктура и готовое состояние квартиры делают этот вариант действительно комфортным для жизни. Продам квартиру-студию на улице Рюмина в городе Краснотурьинск.
























































