Первичная продажа



Скидка 10% на квартиры!
ещё 4 акции
С отделкой
Геологическая
5 минут на транспорте
6 139 800 ₽
-10%6 822 000 ₽
215 130 ₽/м²
Выгодное предложение от застройщика:
- Скидка до 10% на старте продаж
- Рассрочка от 50 000 ₽ / месяц
- Семейная ипотека от 6%
- Льготная ИТ-ипотека от 6%
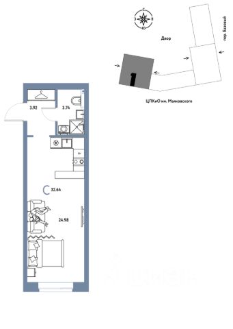
Открыты продажи квартиры-студии в Жилом квартале Вэйвер от Девелоперской компании Люди, общей площадью 28.54 кв.м., на 9 этаже, по адресу: г. Екатеринбург, улица Восточная. Срок сдачи: IV квартал 2027 года.
Жилой квартал Вэйвер это проект класса комфорт-плюс, расположенный в развитой локации на улице Восточная в Октябрьском районе в Екатеринбурге.
В этом жилом квартале вы сможете жить в соответствии со своей индивидуальностью: прогрессивно, смело, свободно. Здесь современный комфорт встречается с живой городской историей — и это создаёт совершенно особую атмосферу места.
Пересечение улиц Восточная и Тверитина это уже сформированная, удобная локация в пределах центра города с удобным въездом и выездом. Главное преимущество расположения квартала находится всего в 8 минутах прогулки 60 гектаров живого леса парка Маяковского для променадов, пробежек и семейных выходных на свежем воздухе.
Объекты социальной инфраструктуры находятся в пешей доступности от проекта: за 5-8 минут неспешным шагом можно добраться до детского сада, школы, 2 гимназий и поликлиники
На территории девелопер спроектировал закрытый двор с площадками для отдыха и террасой для резидентов дома на 2 этаже. Для занятий спортом будут организованы зоны для воркаута и настольного тенниса. Для детей несколько игровых пространств.
Внутренний интерьер лобби продуман до мелочей: консьерж-сервис, переговорная, колясочная с поручнями для крепления самокатов и душевым поддоном для мойки. Гости могут разместиться в комфортной зоне ожидания с кофе и биокамином.
В доме представлено 272 квартиры, от 2 до 9 на этаже, с предчистовой отделкой. Девелопер предлагает более 30 вариантов планировок с гардеробными, просторными санузлами и окнами на 2 стороны.
- студии от 26 до 31 кв.м.
- однокомнатные квартиры от 35 до 46 кв.м.
- двухкомнатные квартиры от 52 до 69 кв.м.
- трехкомнатные квартиры от 72 до 93 кв.м.
В проекте представлены также уникальные квартиры площадью более 100 кв.м., с видовыми террасами, местом под камин, панорамными остеклением и потолками до 3,6 метров.









































































