Первичная продажа



Только на Циан
Онлайн-бронирование
сдача ГК: 4 кв. 2027 года
Площадь 1905 года
9 минут на транспорте
5 340 000 ₽
244 954 ₽/м²
Эргономичная квартира-студия с лоджией и перспективой роста в цене — отличный выбор для тех, кто делает первые шаги к самостоятельной жизни. Общая площадь квартиры 21,8 кв.м., и ее умная планировка позволяет создать атмосферу, полностью отражающую ваши стиль и предпочтения.
Квартира располагается в ЖК "Комсомольский" — жилом комплексе комфорт-класса. Здесь вы будете наслаждаться беззаботной жизнью, ведь ваш дом — воплощение практичности, безопасности и надежности. Для удобства предусмотрены колясочные на первых этажах домов, где можно оставить велосипеды и коляски в тепле. За безопасность отвечают система электронных ключей и видеонаблюдение. Еще здесь собственная котельная, поэтому в доме всегда будут горячая вода и оплата счетов только за фактически потребленное тепло.
ПРЕИМУЩЕСТВА ЖК
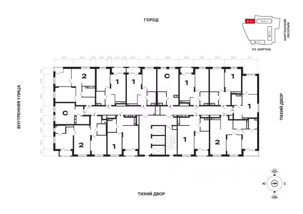
На этаже 15 квартир
Красивые и функциональные парадные с мягкой и стильной зоной для отдыха, книгообменником, встроенными почтовыми ящиками и нишами для сумок
Колясочные с доступом по ключу
IP-домофоны
Тихие лифты с плавным ходом
О ПРОЕКТЕ
ЖК "Комсомольский" строится в спокойном Кировском районе Екатеринбурга в границах улиц Сыромолотова — Рассветная — 40-лет Комсомола. Комплекс состоит из трех домов переменной этажности, которые выделяются динамичными линиями, выразительными фасадами и стильными лоджиями.
ЛОКАЦИЯ
Всё, что необходимо для повседневной жизни, находится недалеко от дома: школы, детские сады, продуктовые магазины, фитнес-клубы. Дорога до центра города на машине займет всего 10 минут — достаточно повернуть с улицы 40-летия Комсомола на улицу Владимира Высоцкого. Рядом с этим перекрестком начинается "Тропа здоровья" — большой терренкур вдоль "Каменных палаток".
10 мин до центра
3-4 минуты до школы No 82, гимназии No 176
4-5 минут до детских садов No 208, No 583, 266
20 мин до Свердловского областного медицинского колледжа и Центральной городской больницы No 7
В рамках стратегического развития района на первых этажах домов появятся коммерческие помещения, в которых откроются магазины и кафе.
Следует учесть, что к 2030 году в Кировском районе планируется формирование регионального рекреационно-оздоровительного кластера, строительство ветки метро, расширение и модернизация старых промышленных зон социальной и бизнес-инфраструктуры, что приведет к созданию комфортной среды для жизни.
Кроме того, в стратегию входит развитие Шарташского лесного парка как центра регионального и международного туризма.
СПОСОБЫ ПОКУПКИ
Ипотека: подберем выгодные условия в нескольких банках, чтобы вы могли выбрать лучшее
Материнской капитал: можно использовать в качестве первоначального взноса
Рассрочка: платите частями без %
Сертификаты: позволяют оплатить часть стоимости квартиры
О КОМПАНИИ
"Паритет Девелопмент" — это современный и ответственный подход к реализации проектов в сфере жилищного строительства. Компания формирует среду, способную создать новое качество жизни для клиентов, поэтому каждый проект имеет свою философию — не просто квадрат




























































































