


178 140 ₽/м²
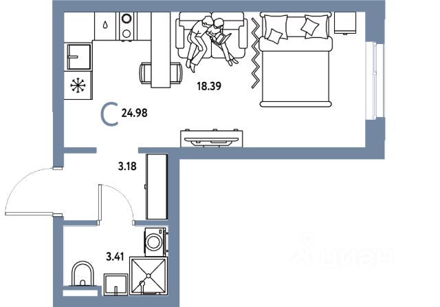
Новая квартира в ЖК "Уральский сад" напрямую от федерального застройщика "Страна Девелопмент". Продается 2комнатная квартира на 15 этаже от застройщика Страна Девелопмент. Площадь квартиры 36,8 кв. м. ЖК "Уральский сад" Жилой комплекс "Уральский сад" — это новый проект ревитализации территории в Екатеринбурге. Основная идея проекта создать комьюнити людей, которые наполняют свою жизнь необходимыми ресурсами и энергией, стремятся созидать, вдохновлять и развивать. 17 жилых домов переменной этажности — это "место силы" для жителей, соединенное с комфортом и умными технологиями. Преимущества • Территория проекта будет условно разделена на 3 зоны: внешнее окружение, общественный бульвар и закрытые дворы. Чтобы создать дополнительный зелёный буффер на общественных пространствах мы высадим полноразмерные деревья. • Особое внимание мы уделили входным зонам с парадными — каждая из них имеет свой уникальный дизайн, гармонирующий с внутридворовым пространством. • Разноуровневые террасы, французские балконы и панорамное угловое остекление — особенность проекта. Архитектурная подсветка акцентно выделяет квартал в локации. Отделка Квартиры сдаются с предчистовой отделкой: произведена разводка электричества и отопления, выполнена стяжка пола, стены выровнены "под маяк", установлены радиаторы. Дизайнерская отделка При покупке квартиры в ЖК "Уральский сад" можно включить стоимость ремонта в ипотеку. 4 стиля отделки ванной и 5 стилей отделки комнат на выбор. Кухня от застройщика Одна из удобных опций от Страны — приобретение кухни в ипотеку при покупке опции "Ремонт". Доступно 4 стиля на выбор: дерево, керамика, мрамор, бетон. Умный дом Система "Умный дом" создаст новый уровень комфорта. Управление светом с помощью голоса, получение последней информации о ситуации в квартире во время отпуска или рабочего дня — и другие преимущества включены в пакет. Способы покупки Сотрудники "Страна Девелопмент" будут сопровождать вас на каждом этапе сделки, помогут получить одобрение по ипотеке или снизить ежемесячный платеж. - ипотека - рассрочка - с использованием материнского капитала -100% оплата наличными






















































































































