


130 000 ₽/м²
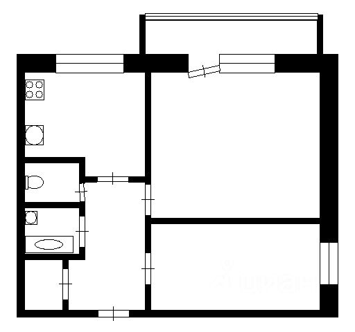
1-комн. квартира, сдается в предчистовой отделке в жилом комплексе Александровский. Александровский семейный жилой комплекс, в экологичном районе Нижнего Тагила, который соединяет в себе спокойствие природы и активность городской жизни. Дом переменной этажности где каждая квартира будет наполнена светом, а из окна открывается завораживающий вид на Корабельный мыс. Архитектура Современная архитектура проекта основана на простых геометрических формах с выверенными пропорциями. Фасады выполнены в спокойных природных тонах. Подсветка фасада до третьего этажа создает уютную атмосферу во время вечернего променада. За счет переменной этажности фасады дома приобретают особую динамику. Благоустройство Благоустройство выполнено по ландшафтному дизайну. В проекте предусмотрены: коммерческие помещения, закрытая дворовая территория под видеонаблюдением, спортивные и детские площадки, зоны отдыха для взрослых, кладовые, 2 грузопассажирских лифта, колясочные. Безбарьерный вход в дизайнерские парадные, с теплым тамбуром и мягкими зонами ожидания, дизайнерское освещение.














































































































