9 788 ₽/м²
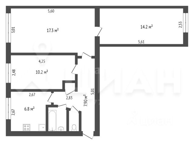
ПАО Совкомбанк предлагает к продаже 3-х комнатную квартиру площадью 61,3 м² (кадастровый номер: 66:60:0901011:1079), расположенную на 5-м этаже 5-ти этажного панельного дома 1981 года постройки. Квартира находится в районе с развитой инфраструктурой: в шаговой доступности расположены магазины, школа, музеи, торговый центр, почта, спортивный комплекс и Субровский парк. Остановки общественного транспорта находятся в непосредственной близости. В квартире имеются зарегистрированные лица, требуется снятие с регистрационного учета. Текущее состояние объекта неизвестно, возможность осмотра временно недоступна. Продажа осуществляется напрямую от банка-собственника с возможностью проведения электронной регистрации сделки. Покупателям гарантируется: - Юридическая чистота сделки - Полное юридическое сопровождение Консультации по вопросам приобретения доступны по будним дням с 7:00 до 18:00 по московскому времени. Продам квартиру до 2,5 млн. рублей в Североуральске.
































































