


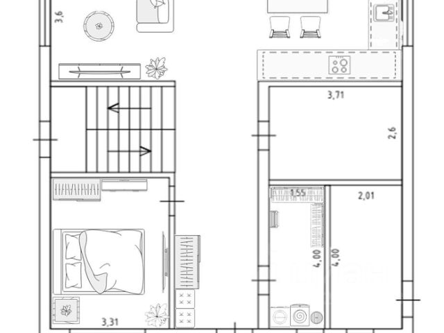
Коттедж, строился по индивидуальному проекту, по лицензии, профессиональными строителями. Строили для себя - надёжно и качественно, дом стоит твердым монолитом, что можно увидеть при осмотре. Тёплый контур дома обеспечен. Элитная деревня "Koптяки", находится в экологически чистой зоне Свердловской области, в окружении Уральских лесов. До Исетского водохранилища 15 минут пешком. Два этажа, + цокольный этаж и + мансарда. Цокольный этаж: тренажёрный зал, сауна, комната отдыха, холл, кладовая, + холодная кладовая. Первый этаж: кухня-столовая 21,5 кв.м., гостиная 23 кв.м., прихожая, гардеробная, входной тамбур, котельная, санузел, гараж со входом из дома. Второй этаж: комната 21,5 кв.м., комната 19,7 кв.м. - с балконом, комната 13 кв.м, санузел, гардеробная и холл. Мансардный этаж: две комнаты по 16 кв.м. и холл. Участок правильной формы, на возвышенности и без перепадов в высоте, огорожен со всех сторон, на участке есть скважина, и строительные материалы. В дом заведено электричество 3 фазы, 15 кВт. Газ доведён до участка. Крыша: гибкая черепица. Фундамент: железобетонные блоки. Перекрытия: железобетонные плиты. Стены и перегородки: керамзитобетон блок 400 мм., утеплитель 100 мм., облицовка 0,5 кирпича, оштукатурен. Рядом соседи все статусные, дома построены, и живут на постоянной основе. Рядом три школы: в шаговой доступности частная 215, и муниципальные 5, 6 (школьный автобус), игровые площадки. В соседнем п.Кирпичный есть детский сад. Магазины ("Пятерочка", "Магнит", "К&Б"), пункты выдачи Оzоn/WВ/Яндекс Маркет. Бассейн "Энергетик". В единоличной собственности, без арестов и обременений, рассмотрим любые виды оплаты и обмена и поможем их реализовать. Чистая продажа. Возможен быстрый выход на сделку и передача объекта. Звоните, записывайтесь на просмотр и выбирайте.













































































