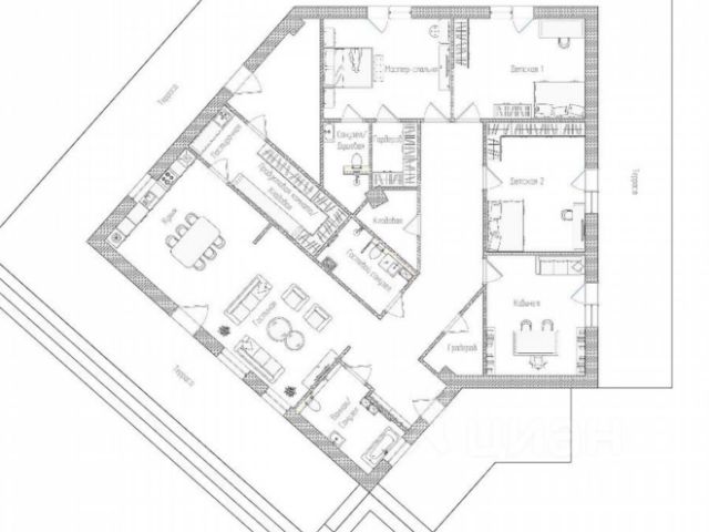
Арт. 89832033. Дом мечты из экологичных материалов уже построен и ждет своего нового хозяина! Кухня-гостинная со вторым светом высота 5,5 м с выходом на терассу, с панорамными окнами во всю стену видом на закат. Пять отдельных жилых комнат, гардеробная, постирочная, два санузла, баня, душевая, кладовка. Есть капитальный бетонный оборудованный погреб. Площадь первого этажа 186 м2 + дополнительно мансарда 46 м2 участок 11,7 соток Наружные и внутренние стены из строганной доски камерной сушки 146х46/96х46мм, все стыки каркаса прогерметизированы полиуретановым герметиком. Каркас собран по канадской технологии с ориентиром на североамериканские строительные стандарты качества. Утеплитель Knauf 150+50 мм. Кровельное покрытие крыши и стен по скату - Профнастил - 0,45 мм. Гидроизоляция - мембрана DELTA-NEO-VENT Окна ПВХ "GEALAN" 74/6 S 8000" двухкамерные стклопакеты, шестикамерный профиль 74 мм Вентиляция "VILPE" Внутренняя отделка: стены и потолки - Гипсокартонный лист (ГКЛ) Gyproc Стронг 2500х1200х15мм (в сан. узлах влагостойкие листы) на полу керамогранит. Установлены межкрмнатные двери. Усиленный фундамент под печь/камин в кухне-гостиной Отопление - теплый пол Горячее водоснабжение - Бойлер объемом 200 л Холодное водоснабжение - скважина 48 м Центральная канализация (никаких откачек!!!) Котел Электрический, предусмотрено место для установки газового котла (есть возможность подключить газ) В настоящий момент расходы на электроэнергию составляют до 10 000 зимой и до 3-4000 летом (при том, что в доме живут дети, и топим до температуры 23-25 гр. Вся инфраструктура п Исток в шаговой доступности . черта Екатеринбурга (Октябрьский район Екатеринбурга) Участок правильной формы соседи только с 2 сторон, проживают постоянно. Строили для себя, продумывали до мелочей



















































































