


287 905 ₽/м²
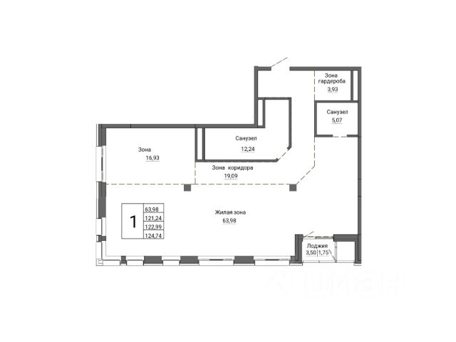
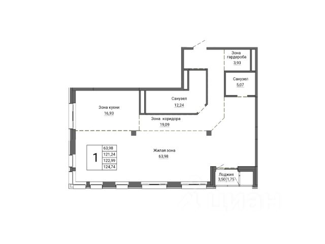
Продаётся 3-комнатная квартира в строящемся доме (4 очередь), срок сдачи: IV-кв. 2026, общей площадью 120.75 кв.м., на 3 этаже. Жилой комплекс "Александровский сад" находится в глубине квартала, в удалении от больших магистралей. Во дворе комплекса будет создан уникальный ландшафтный дизайн и декларирована зона, свободная от автомобилей. В ЖК "Александровский сад" представлена широкая размерная линейка квартир. В каждой квартире своя фишка": от архитектурно-планировочных деталей (угловые окна, ванная с окном, прачечная), до эффективного баланса между продуманной функциональной планировки и стоимостью квадратного метра. В "Александровском саду" эффективная система видеонаблюдения, с контролем за внутренним и внешним периметром комплекса.




































































































