Только на Циан
Онлайн-бронирование
сдача ГК: 4 кв. 2027 года
Проспект Космонавтов
4 минуты на транспорте
5 676 000 ₽
167 879 ₽/м²
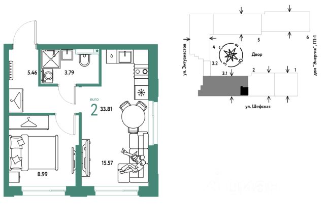
Продаётся 2-комнатная квартира в строящемся доме (Потенциал), срок сдачи: IV-кв. 2027, общей площадью 33.81 кв.м., на 7 этаже. Новый жилой комплекс "Страна.Энтузиастов" от группы компаний "Страна Девелопмент" расположен по адресу: г. Екатеринбург, по ул. Шефская.






































