153 382 ₽/м²
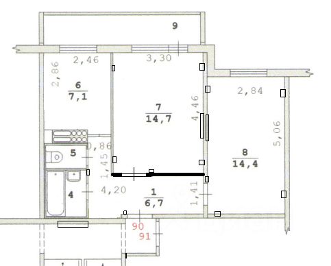
Продам просторную однокомнатную квартиру с кухней-гостиной (евродвушку) в одном из лучших ЖК комфорт-класса "Изумрудный Бор". Отделка White Box - предчистовая от застройщика. Дом сдан. Аналогичные квартиры от застройщика в данном ЖК стартуют от 7.3 млн. и сроком сдачи в 1-м квартале 2028 года. Я собственник, чистая продажа. Дом выполнен по монолитной технологии с кирпичными стенами, высота потолков 2,7 м, окна квартиры выходят на солнечную сторону и в закрытый двор комплекса, в котором расположены спортивные и детские площадки, а также зоны для прогулок и отдыха. Стены покрыты улучшенной штукатуркой с выравниванием гипсовыми смесями. Полы выполнены из цементно-песчаной стяжки с повышенной звукоизоляцией. В санузлах установлено необходимое сантехническое оборудование. Звоните, всё расскажу, покажу. Видео могу выслать по запросу. Редко смотрю сообщения, поэтому лучше звоните. ВАЖНО. Уважаемые риэлторы и агенты по недвижимости, убедительная просьба писать и звонить исключительно при наличии реального покупателя. Спасибо за понимание.


















































































