Мы используем куки-файлы. Соглашение об использовании
Только на Циан
Общая площадь145 м²
Участок10,29 сот.
Материал домаГазобетонный блок
Этажей в доме1
Год постройки2025
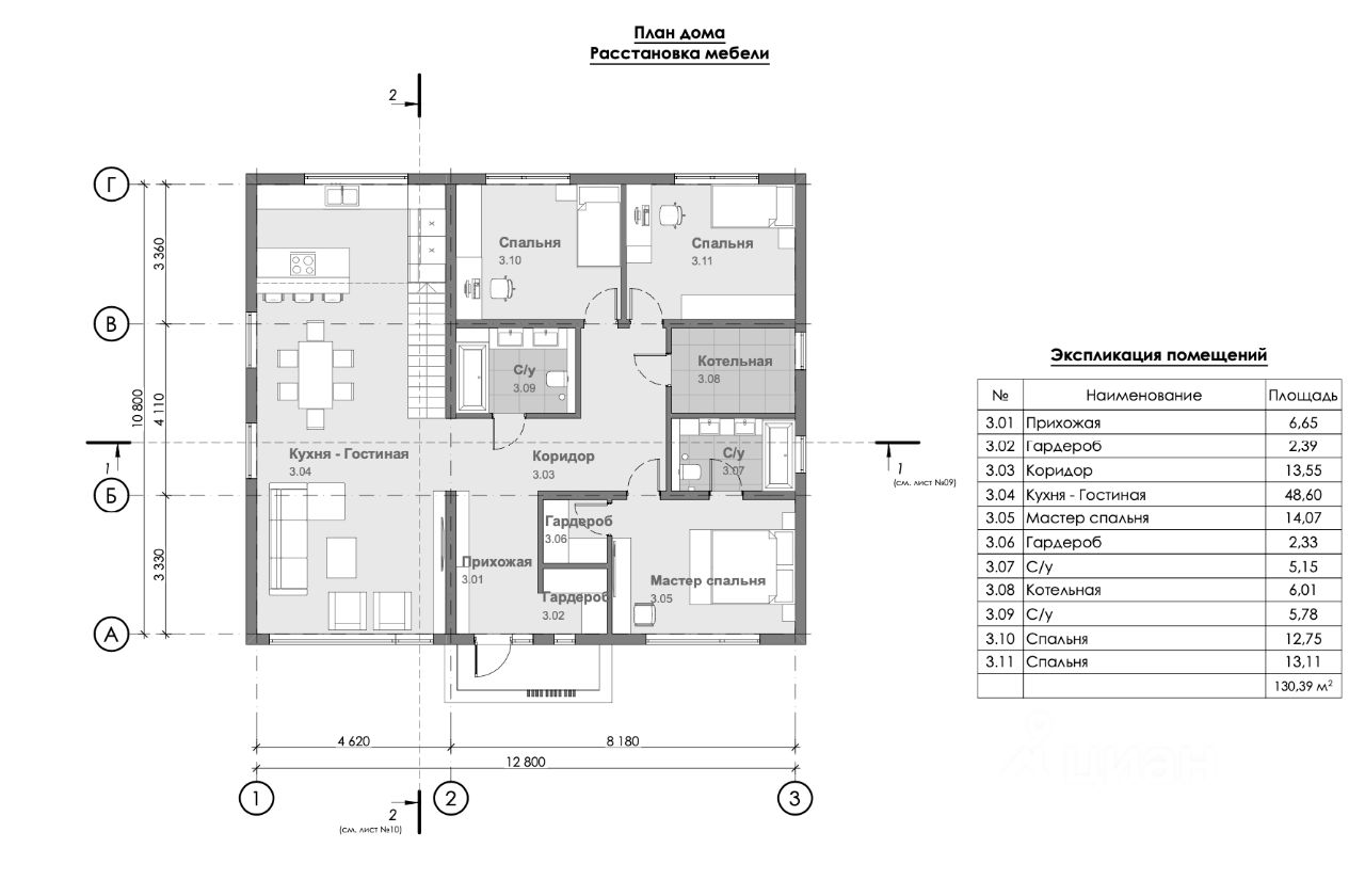
Дом располагается в деревне Ключи, КП "Лесные ключи". Участок граничит с лесом с вековыми соснами, есть прямой выход в лес с участка. Дом выполнен по индивидуальному проекту компании 100 м2. Разделен на две части - зона кухни-гостиной: имеет высоту потолков от 5 до 6 метров, панорамное остекление, и антресоль из монолитного железобетона с монолитной лестницей. Жилая зона: потолки от 2,4 до 4 метров, 3 спальни, одна спальня (мастер спальня) имеет собственный санузел с панорамным окном и собственную гардеробную. Есть отдельная котельная, отдельный санузел, прихожая и гардеробная, просторный коридор с высоким потолком. В доме: система водных теплых полов во всех помещениях, электрокотел, электроводонагреватель, выполнена разводка электрики, ХГВС и Канализации. Дом продается в комплектации "под чистовую", будет выполнена машинная штукатурка внутренних стен, полусухая стяжка пола. Вентиляция - Установлена многоканальная вытяжная установка VAKIO, с забором воздуха из всех помещений, в жилые помещения предусмотрена подача свежего воздуха через стендовые плиточные клапаны. Канализация - установлен энергонезависимый септик Элемент Стандарт 4. Продажа от застройщика, возможна льготная ипотека.
Позвоните автору
Вам ответят на все вопросы

О доме

Площадь

145 м²

Материал дома

Газобетонный блок

Состояние дома

Нужен ремонт

Количество этажей

1

Количество спален

3

Год постройки

2025

Об участке

Площадь

10,29 сот.

Статус участка

Индивидуальное жилищное строительство

Коммуникации и удобства

Санузел

2 в доме

Канализация

Выгребная яма

Водоснабжение

Скважина

Отопление

Электрическое

Электричество

Есть

Газ

Нет

Дополнительно

Терраса

Спросите умного помощника
Получите экспертное мнение о жилье

Расположение

Подпишитесь на объявления в этой локации
Мы сообщим, как только поблизости появится что‑нибудь новенькое
Ипотечный калькулятор
  • Базовая
  • Семейная
  • ИТ-ипотека
  • 20%
  • 30%
  • 40%
  • 50%
лет
  • 10 лет
  • 20 лет
  • 30 лет
Загружаем предложения от застройщика и банков
Агентство недвижимости
Документы проверены
Хотите продать недвижимость?Разместите объявление на ЦианРазместить
11 000 000 ₽
Цена за метр
75 862 ₽/м²
Условия сделки
свободная продажа
Ипотека
возможна
Агентство недвижимости
Документы проверены
На Циан
1 год
Объектов в работе
6