Мы используем куки-файлы. Соглашение об использовании
Онлайн-бронирование
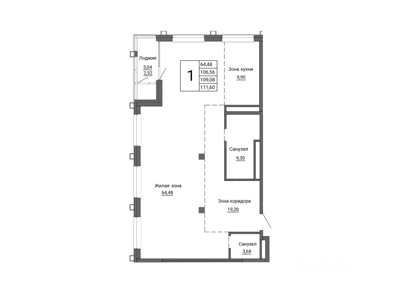
Общая площадь107,68 м²
Жилая площадь64,5 м²
Этаж2 из 16
Год сдачи2026
ДомНе сдан
ОтделкаПредчистовая
Продаётся 3-комнатная квартира в строящемся доме (4 очередь), срок сдачи: IV-кв. 2026, общей площадью 107.68 кв.м., на 2 этаже. Жилой комплекс "Александровский сад" находится в глубине квартала, в удалении от больших магистралей. Во дворе комплекса будет создан уникальный ландшафтный дизайн и декларирована зона, свободная от автомобилей. В ЖК "Александровский сад" представлена широкая размерная линейка квартир. В каждой квартире своя фишка": от архитектурно-планировочных деталей (угловые окна, ванная с окном, прачечная), до эффективного баланса между продуманной функциональной планировки и стоимостью квадратного метра. В "Александровском саду" эффективная система видеонаблюдения, с контролем за внутренним и внешним периметром комплекса.

О квартире

Тип жилья

Новостройка

Общая площадь

107,68 м²

Жилая площадь

64,5 м²

Отделка

Предчистовая

О доме

Количество лифтов

4 пассажирских, 3 грузовых

Тип дома

Монолитно-кирпичный

Понравилась квартира — узнайте о ней больше

Застройщик ответит на все вопросы

Отделка квартиры

Предчистовая — остаётся установить сантехнику, розетки, двери и навести красоту: поклеить обои и уложить на пол покрытие

О ЖК «Александровский сад»

  • Сдача комплекса
    Сдача в 4 кв. 2026, есть сданные
  • Застройщик
    Форум-групп
  • Класс
    Бизнес
  • Тип дома
    Монолитно-кирпичный
  • Парковка
    Подземная
  • Отделка
    Предчистовая
  • Тип комплекса
    Жилой комплекс
Похоже на то, что вы ищете?

Особенности жилого комплекса

  • Парковка

  • Внутренний двор

  • Архитектура

  • Входная группа

Подробнее о жилом комплексе

Акции в ЖК «Александровский сад»

Узнайте про персональные условия и дополнительные скидки при покупке квартиры у застройщика
logo

Скидка до 20%

Рассрочка 0%

Материнский капитал

Ипотечный калькулятор
  • Базовая
  • Семейная
  • ИТ-ипотека
  • 20%
  • 30%
  • 40%
  • 50%
лет
  • 10 лет
  • 20 лет
  • 30 лет
Загружаем предложения от застройщика и банков
Корпус проверен наш.дом.рф
Обновлено 14 апреля 2026
  • Нет в реестре проблемных объектов
  • Застройщик не банкрот
  • Есть эскроу счёт
  • Актуальные фото стройки

Ещё квартиры в жилом комплексе

17 квартир в продаже · Сдача в 4 кв. 2026, есть сданные
Автор объявления

Застройщик «Форум-групп»

«Форум-групп» — компания полного цикла и организует все процессы девелопмента: подбор земельного участка, финансирование проекта, разработка концепции, организация проектирования и строительства, комплексное управление недвижимостью холдинга. Приоритетом ...
30 246 306 ₽
Цена за метр
280 891 ₽/м²
Условия сделки
долевое участие (214-ФЗ)
В топ-30 ЦианВ общем рейтинге застройщиков
14 000 семейЖивут в построенных домах
10 наградПолучено с 2014 года на российских и международных конкурсах