Мы используем куки-файлы. Соглашение об использовании
Онлайн-бронирование
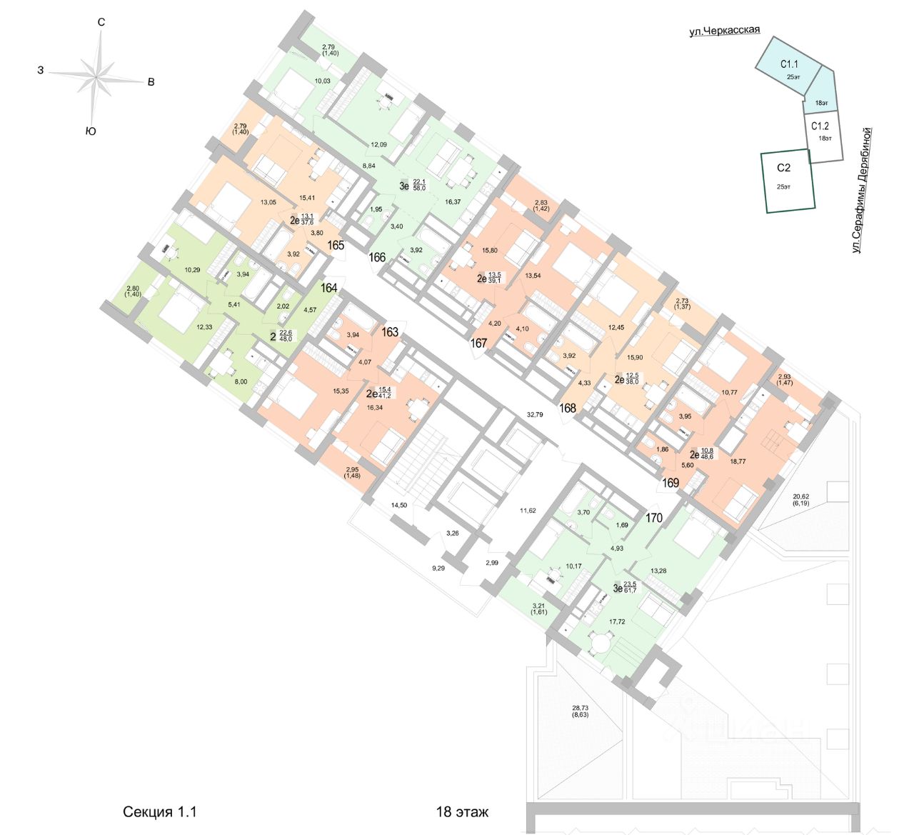
Общая площадь48,1 м²
Жилая площадь10,8 м²
Площадь кухни18,8 м²
Этаж18 из 24
Год сдачи2025
ОтделкаЧистовая
Описание "Философия Идеалистов на Черкасской": новый уровень городской жизни Квартал в сердце Верх-Исетского района. Расположение и архитектура. "Философия Идеалистов на Черкасской" строится в Верх-Исетском районе Екатеринбурга в границах улиц — Черкасская и Серафимы Дерябиной. Квартал включает три жилых корпуса переменной этажности, выполненные в единой архитектурной концепции — от 16 до 25 этажей и 6-уровневый наземный паркинг, которые объединяет закрытая дворовая территория. Философия комфорта. Концепция жизни. Проект создан для тех, кто ценит качество жизни и безопасность. Каждый элемент инфраструктуры направлен на создание комфортной среды для жителей: Собственная социальная инфраструктура: детский сад и современный соседский центр. Открытая терраса для приятного времяпрепровождения на свежем воздухе, динамичных тренировок и умиротворяющих занятий йогой. Эксклюзивные форматы жилья жилого комплекса: двухуровневые квартиры и планировки с террасами. Премиальный сервис: консьерж-служба на первых этажах. Энергоэффективность: автономная газовая котельная для оптимизации коммунальных платежей. Комфорт в деталях. Продуманная инфраструктура: Современные колясочные и велосипедные помещения. Удобные комнаты гигиены. Система контроля доступа. Пост охраны. Уникальные преимущества: Разнообразие планировок. В секции 2.1 представлены квартиры с чистовой отделкой: готовое решение для быстрого переезда. В жилом комплексе предусмотрен соседский центр, который станет пространством для развития и общения. Здесь могут проводиться: образовательные курсы и лекции, творческие мастер-классы, деловые встречи и развлекательные мероприятия. "Философия Идеалистов на Черкасской" — это больше, чем просто жилье. Это сообщество людей, разделяющих общие ценности и стремление к качественной жизни. Каждое мгновение здесь наполняется новым смыслом, а каждая секунда приносит радость и удовлетворение.

О квартире

Тип жилья

Новостройка

Общая площадь

48,1 м²

Жилая площадь

10,8 м²

Площадь кухни

18,8 м²

Высота потолков

2,7 м

Балкон/лоджия

1 лоджия

Вид из окон

На улицу

Отделка

Чистовая

О доме

Количество лифтов

1 пассажирский, 2 грузовых

Тип дома

Монолитно-кирпичный

Понравилась квартира — узнайте о ней больше

Застройщик ответит на все вопросы

Отделка квартиры

Чистовая: ремонт сделан, остаётся расставить мебель и заселиться

Варианты отделки в ЖК

  • Чистовая
  • Предчистовая

О ЖК «Философия Идеалистов на Черкасской»

  • Сдача комплекса
    Сдача в 2026—2027, есть сданные
  • Застройщик
    СЗ Философия Идеалистов
  • Класс
    Комфорт
  • Тип дома
    Монолитно-кирпичный
  • Парковка
    Отдельная многоуровневая
  • Отделка
    Предчистовая, чистовая
  • Тип комплекса
    Жилой комплекс
Похоже на то, что вы ищете?

Особенности жилого комплекса

  • Отделка

  • Парковка

  • Внутренний двор

  • Архитектура

  • Входная группа

  • Лифт

Подробнее о жилом комплексе

Акции в ЖК «Философия Идеалистов на Черкасской»

Узнайте про персональные условия и дополнительные скидки при покупке квартиры у застройщика
Ипотечный калькулятор
  • Базовая
  • Семейная
  • ИТ-ипотека
  • 20%
  • 30%
  • 40%
  • 50%
лет
  • 10 лет
  • 20 лет
  • 30 лет
Загружаем предложения от застройщика и банков
Корпус проверен наш.дом.рф
Обновлено 5 февраля 2026
  • Нет в реестре проблемных объектов
  • Застройщик не банкрот

Ещё квартиры в жилом комплексе

179 квартир в продаже · Сдача в 2026—2027, есть сданные
ЗастройщикСЗ Философия Идеалистов
Год основания: 2009
Строится: 4 дома в 3 ЖК
10 144 750 ₽
Цена за метр
210 910 ₽/м²
Условия сделки
свободная продажа