Мы используем куки-файлы. Соглашение об использовании
С мебелью

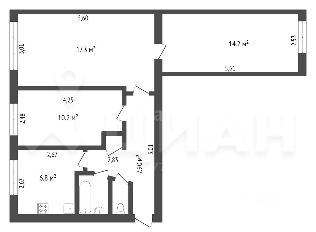
Продается 3-комн. квартира, 60 м²

Общая площадь60 м²
Жилая площадь40 м²
Площадь кухни6 м²
Этаж5 из 5
Год постройки1978
Уютная трехкомнатная квартира, расположена в зеленом микрорайоне вблизи большого количества продуктовых магазинов, аптек, поликлиники, лучшей школы Верхней Пышмы. Кроме того, в шаговой доступности 4 детских сада, Центр досуга для детей и взрослых, прекрасный парк для прогулок и другие заведения социальной инфраструктуры. Зеленый двор, детская площадка создают атмосферу тишины и уединения от городской суеты. Квартира теплая со свежим косметическим ремонтом. Чистый подъезд, приличные соседи. В квартире остается кухонный гарнитур, стиральная машина, встроенные шкафы, диван, кресла, мебельная стенка со шкафом для одежды. Остальная мебель по договоренности. Квартира идеально подходит для семейной пары с детьми. Один собственник. Чистая продажа. Обременений и несовершеннолетних детей нет. Документы готовы к быстрой сделке. Торг уместен.
Позвоните автору
Вам ответят на все вопросы

О квартире

Тип жилья

Вторичка

Общая площадь

60 м²

Жилая площадь

40 м²

Площадь кухни

6 м²

Высота потолков

2,48 м

Санузел

1 раздельный

Балкон/лоджия

1 балкон

Ремонт

Косметический

Продаётся с мебелью

Да

О доме

Год постройки

1978

Строительная серия

1-439

Тип дома

Блочный

Тип перекрытий

Железобетонные

Подъезды

4

Парковка

Наземная

Отопление

Центральное

Аварийность

Нет

Газоснабжение

Центральное

Доступная среда

Вход в подъезд без порога
Входная дверь 65-70 см
Двери в ванной и санузле 62-65 см
Двери в кухне и комнатах 62-65 см
Спросите умного помощника
Получите экспертное мнение о жилье
Планировка этой квартирыПо данным Циан
Планировка этой квартиры по данным Циан

Расположение

Ипотечный калькулятор
  • Базовая
  • Семейная
  • ИТ-ипотека
  • 20%
  • 30%
  • 40%
  • 50%
лет
  • 10 лет
  • 20 лет
  • 30 лет
Загружаем предложения от застройщика и банков
Зимой будет очень тепло
Дома такой же серии обычно очень хорошо сохраняют тепло
9
Помощь риелтора
Проверенный риелтор поможет купить или продать квартиру
3 990 000 ₽
Цена за метр
66 500 ₽/м²
Условия сделки
свободная продажа
Ипотека
возможна
Агентство недвижимости
Документы проверены