Мы используем куки-файлы. Соглашение об использовании
С мебелью
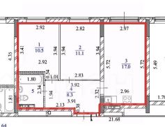
Общая площадь50,6 м²
Жилая площадь21,6 м²
Площадь кухни17 м²
Этаж5 из 14
Год постройки2021
квартира с мебелью и техникой . Общая площадь: 50.9 кв.м. Жилая площадь: 21.6 кв.м. (раздельные изолированные комнаты 10.5+11.1 кв.м.) Кухня-гостиная: 17 кв.м. Этаж: 5. Очень уютная светлая двухкомнатная квартира С МЕБЕЛЬЮ И КУХОННЫМ ГАРНИТУРОМ (включая варочную поверхность с вытяжкой, духовой шкаф и посудомойку) в прицентровой локации Академического района. Дом расположен в тихом, благоустроенном дворе без сквозного проезда, в шаговой доступности от всего необходимого. Во дворе организованы спортивные зоны, зоны для отдыха и и игровые для разных возрастов детей. Все окна выходят во двор, что гарантирует Вам отсутствие пыли и дорожного шума. Планировка: Популярная, удачная планировка с двумя изолированными комнатами равной площади и вместительной кухни-гостинной. Это идеальный вариант как для семьи с ребёнком, так и для тех, кто ценит личное пространство. Обе комнаты и кухня-гостиная выходят на одну, солнечную сторону (ЮГ) - квартира очень светлая в течение всего дня. Увеличенный оконный проем в кухне-гостиной и радиатор в полу, кусочек Франции в нашем любимом мегаполисе. Ремонт: Ремонт от застройщика, в нейтральных тонах. В комнатах пол - ламинат 32 класса, в санузле - плитка на полу и на стенах в мокрой зоне. Установлены пластиковые окна с энергосберегающими стеклопакетами. Состояние и коммуникации: Все инженерные системы в отличном состоянии. Санузел совмещенный, просторный. Установлены новые радиаторы отопления, счётчики на воду, тепло и электричество. Инфраструктура района: Транспорт: Остановки общественного транспорта в 3 минутах ходьбы, удобный выезд на объездную дорогу (ЕКАД) и в центр города. Образование и развитие: В пешей доступности несколько детских садов, школы, лицеи, детские центры. Администрация Академического района в 10 минутах ходьбы, рядом совершенно новая огромная поликлиника, через квартал вход в Преображенский парк - место притяжения жителей всего района. Торговля и услуги: Рядом супермаркеты "Пятёрочка", "Магнит", "Перекрёсток", торговые центры "Академический" и "Green House". Отдых и спорт: В соседнем квартале начинается Преображенский парк, прогулочная набережная вдоль реки, храм Святых Божиих строителей. В квартире остается кухонный гарнитур со встроенной посудомоечной машиной, варочной поверхностью и духовым шкафом, вытяжка, В гостиной диван, шкаф в прихожей и шкаф в комнате, большая двуспальная кровать. Дом ухоженный, в общих холлах хороший чистый ремонт, почтовые ящики упорядочены. Во дворе оборудованы современные детские и спортивные площадки. Квартира идеально подходит для комфортного постоянного проживания в одном из самых быстро развивающихся и экологичных районов города. Прозрачная история квартиры- один собственник с момента постройки дома. Сделки застрахованы. Звоните. ID объекта в нашей базе: 184
Позвоните автору
Вам ответят на все вопросы

О квартире

Тип жилья

Вторичка

Общая площадь

50,6 м²

Жилая площадь

21,6 м²

Площадь кухни

17 м²

Высота потолков

2,7 м

Санузел

1 совмещенный

Балкон/лоджия

1 балкон

Ремонт

Косметический

Продаётся с мебелью

Да

О доме

Год постройки

2021

Количество лифтов

3 пассажирских, 1 грузовой

Тип перекрытий

Железобетонные

Подъезды

2

Отопление

Центральное

Аварийность

Нет

Спросите умного помощника
Получите экспертное мнение о жилье

Расположение

Ипотечный калькулятор
  • Базовая
  • Семейная
  • ИТ-ипотека
  • 20%
  • 30%
  • 40%
  • 50%
лет
  • 10 лет
  • 20 лет
  • 30 лет
Загружаем предложения от застройщика и банков
Помощь риелтора
Проверенный риелтор поможет купить или продать квартиру
7 150 000 ₽
Цена за метр
141 304 ₽/м²
Условия сделки
свободная продажа
Ипотека
возможна
Агентство недвижимости
На Циан
8 лет
Объектов в работе
18