Агентство недвижимости
Документы проверены
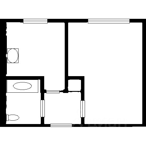
Тип жилья
Вторичка
Общая площадь
29,8 м²
Жилая площадь
16,7 м²
Площадь кухни
6 м²
Высота потолков
2,55 м
Санузел
1 совмещенный
Балкон/лоджия
1 балкон
Вид из окон
Во двор
Ремонт
Косметический
Продаётся с мебелью
Да
Год постройки
1973
Строительная серия
1-447
Тип дома
Кирпичный
Тип перекрытий
Железобетонные
Подъезды
8
Отопление
Центральное
Аварийность
Нет
Газоснабжение
Центральное
