Мы используем куки-файлы. Соглашение об использовании
Онлайн-бронирование
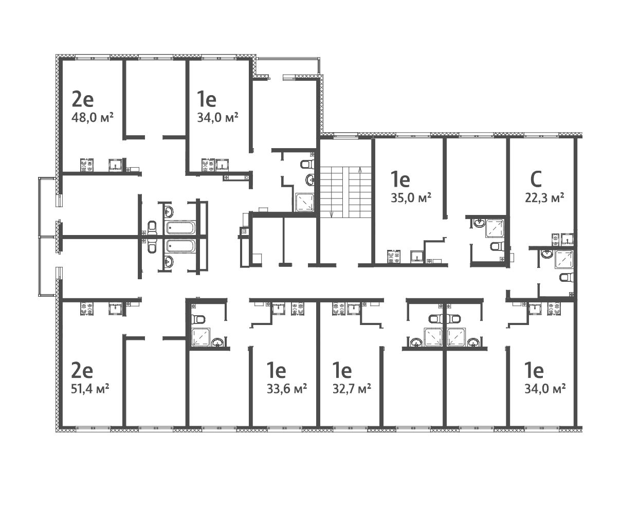
Общая площадь35 м²
Жилая площадь23,3 м²
Площадь кухни5,1 м²
Этаж2 из 8
Год сдачи2026
ДомНе сдан
ОтделкаЧистовая
Продается 1-комн. квартира с европланировкой, площадью 35 м2 в панельной новостройке. Возможен вариант покупки с использованием ипотечных средств, есть рассрочка. Жилая площадь 23.3 м2, кухня 5.1 м2, чистовая отделка. Раздельных санузлов - нет, балконов - нет, лоджий - нет. Квартира располагается на 2 этаже 8-этажного дома в ЖК Мичуринский. Застройщик - ЛСР. Недвижимость-Урал, сдача дома - IV квартал 2026 года, высота потолков 2.5 м. Парковка автомобилей - наземная. Инфраструктура: школа, детский сад, детские площадки, спортивные площадки, места для отдыха, супермаркет. Жилой комплекс "Мичуринский" - это уникальный проект для города Екатеринбурга, который соединил в себе городской комфорт проживания с преимуществами загородной жизни. Малоэтажные дома, закрытые дворы, лес, где можно гулять и устраивать пикники, озеро Половинное, большой благоустроенный парк в центре квартала, площадки для занятий спортом, паркинг, много зелени. И все это в одном из самых экологически чистых мест в городе. Жилой комплекс "Мичуринский" это малоэтажный квартал, в состав которого входит более 70 трех-четырехэтажных панельных домов эконом-класса, а также инфраструктурные объекты. Квартал располагается недалеко от ЕКАД и района "Академический", на юго-западной окраине Екатеринбурга, на территории микрорайона Широкая речка, входящего в состав Верх-Исетского района. Позвоните и узнайте условия покупки прямо сейчас!

О квартире

Тип жилья

Новостройка

Общая площадь

35 м²

Жилая площадь

23,3 м²

Площадь кухни

5,1 м²

Высота потолков

2,5 м

Отделка

Чистовая

О доме

Количество лифтов

3 пассажирских

Тип дома

Панельный

Парковка

Наземная

Понравилась квартира — узнайте о ней больше

Застройщик ответит на все вопросы

Отделка квартиры

Чистовая: ремонт сделан, остаётся расставить мебель и заселиться

О ЖК «Мичуринский»

  • Сдача комплекса
    Сдача в 4 кв. 2026, есть сданные
  • Застройщик
    СЗ ЛСР. Недвижимость-Урал
  • Класс
    Эконом
  • Тип дома
    Панельный
  • Парковка
    Гостевая
  • Отделка
    Чистовая
  • Тип комплекса
    Жилой комплекс
Похоже на то, что вы ищете?

Особенности жилого комплекса

  • Парковка

  • Внутренний двор

  • Архитектура

Подробнее о жилом комплексе

Акции в ЖК «Мичуринский»

Узнайте про персональные условия и дополнительные скидки при покупке квартиры у застройщика

Субсидирование ипотеки

logo

Скидка от 7 до 20%

Рассрочка 70/30

Рассрочка 50/50

Рассрочка 20/80

logo

Дополнительные скидки

Материнский капитал

Военная ипотека

Ипотечный калькулятор
  • Базовая
  • Семейная
  • ИТ-ипотека
  • 20%
  • 30%
  • 40%
  • 50%
лет
  • 10 лет
  • 20 лет
  • 30 лет
Загружаем предложения от застройщика и банков
Корпус проверен наш.дом.рф
Обновлено 24 марта 2026
  • Нет в реестре проблемных объектов
  • Застройщик не банкрот
  • Есть эскроу счёт
  • Актуальные фото стройки

Ещё квартиры в жилом комплексе

160 квартир в продаже · Сдача в 4 кв. 2026, есть сданные
ЗастройщикСЗ ЛСР. Недвижимость-Урал
Год основания: 2002
Строится: 7 домов в 5 ЖК
5 466 300 ₽
100% оплата
Цена за метр
156 180 ₽/м²
Условия сделки
долевое участие (214-ФЗ)