Мы используем куки-файлы. Соглашение об использовании
Онлайн-бронирование
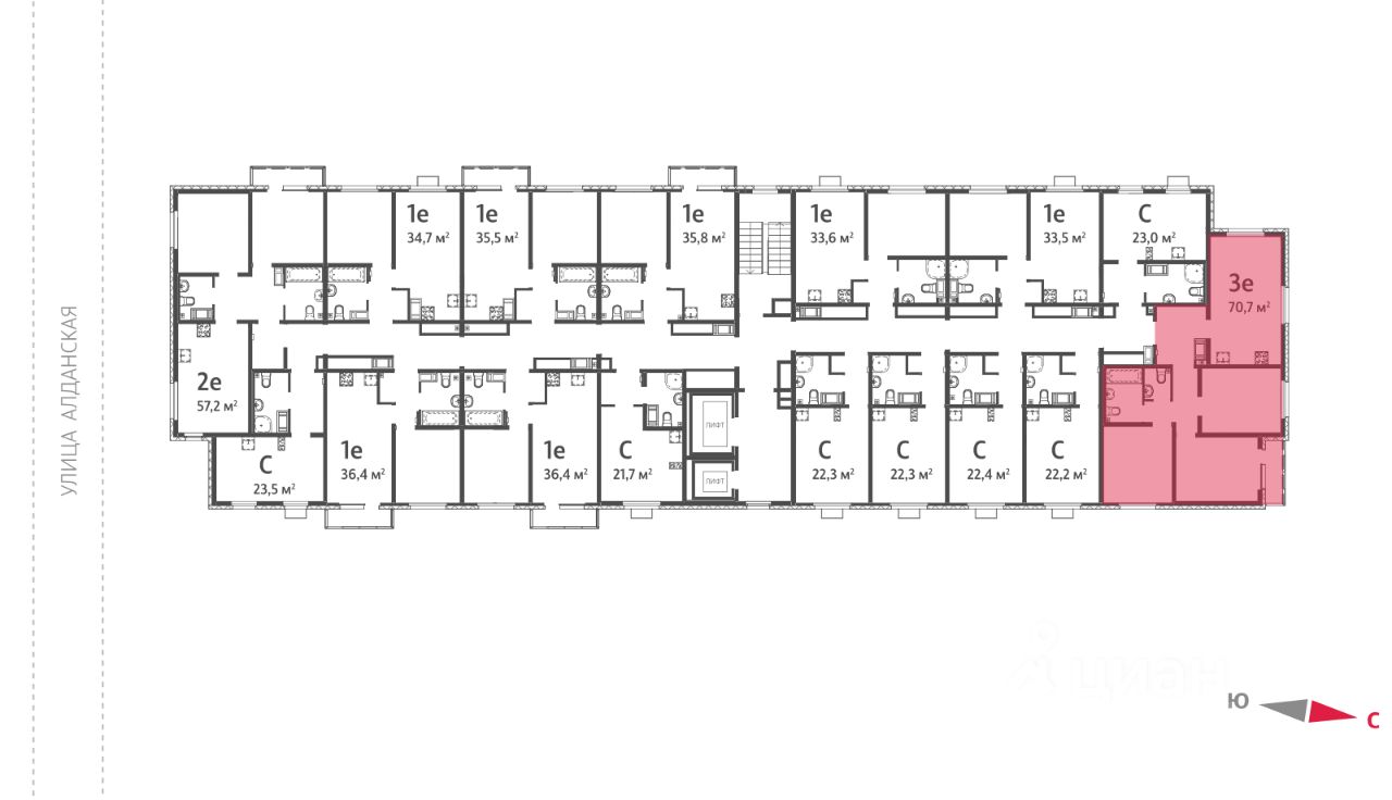
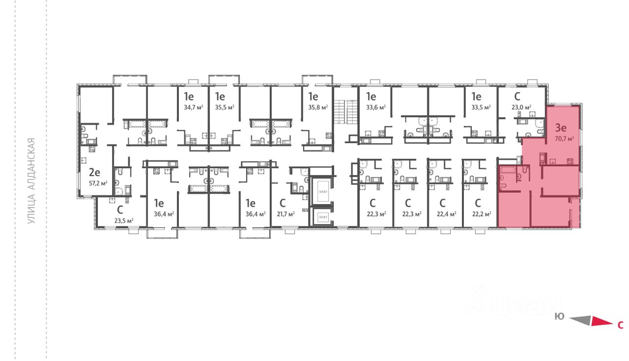
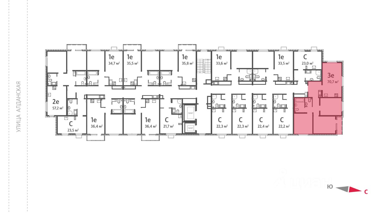
Общая площадь70,7 м²
Жилая площадь33,4 м²
Площадь кухни19,2 м²
Этаж14 из 15
Год сдачи2026
ДомНе сдан
ОтделкаПод ключ
Продается 3-комн. квартира с европланировкой, площадью 70.7 м2 в монолитно-кирпичной новостройке. Возможен вариант покупки с использованием ипотечных средств, есть рассрочка. Жилая площадь 33.4 м2, кухня 19.2 м2, отделка под ключ. Раздельных санузлов - нет, балконов - нет, лоджий - 1. Квартира располагается на 14 этаже 15-этажного дома в ЖК Малахит. Застройщик - ЛСР, сдача дома - III квартал 2026 года, высота потолков 2.5 м. Парковка автомобилей - наземная. Инфраструктура: школа, детский сад, детские площадки, спортивные площадки, места для отдыха, супермаркет, коммерческие объекты. Жилой комплекс "Малахит" - новый квартал площадью 25 га в микрорайоне ЖБИ Кировского района Екатеринбурга высотностью 10-26 этажей. Высотность 10-26 этажей Жилой комплекс "Малахит" - находится в микрорайоне ЖБИ Кировского района Екатеринбурга Позвоните и узнайте условия покупки прямо сейчас!

О квартире

Тип жилья

Новостройка

Общая площадь

70,7 м²

Жилая площадь

33,4 м²

Площадь кухни

19,2 м²

Высота потолков

2,5 м

Балкон/лоджия

1 лоджия

Отделка

Под ключ

О доме

Количество лифтов

1 пассажирский

Тип дома

Монолитно-кирпичный

Парковка

Наземная

Понравилась квартира — узнайте о ней больше

Застройщик ответит на все вопросы

Отделка квартиры

Отделка под ключ — можно заезжать сразу, как получите ключи

Варианты отделки в ЖК

  • Чистовая
  • Под ключ
Похоже на то, что вы ищете?

Акции в ЖК «Малахит»

Узнайте про персональные условия и дополнительные скидки при покупке квартиры у застройщика
logo

Скидка от 7 до 20%

Рассрочка 75/25

logo

Дополнительные скидки

Материнский капитал

Субсидирование ипотеки

Ипотечный калькулятор
  • Базовая
  • Семейная
  • ИТ-ипотека
  • 20%
  • 30%
  • 40%
  • 50%
лет
  • 10 лет
  • 20 лет
  • 30 лет
Загружаем предложения от застройщика и банков
Корпус проверен наш.дом.рф
Обновлено 22 апреля 2026
  • Нет в реестре проблемных объектов
  • Застройщик не банкрот
  • Есть эскроу счёт
  • Актуальные фото стройки

Ещё квартиры в жилом комплексе

75 квартир в продаже · Сдача в 2026—2027, есть сданные
ЗастройщикСЗ ЛСР. Недвижимость-Урал
Год основания: 2002
Строится: 8 домов в 6 ЖК
11 424 766 ₽
100% оплата
Цена за метр
161 595 ₽/м²
Условия сделки
долевое участие (214-ФЗ)