Мы используем куки-файлы. Соглашение об использовании
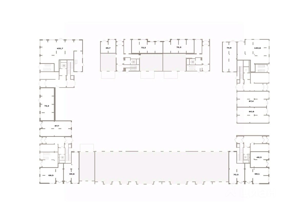
Помещение свободного назначения, 74,9 м²
Площадь74,9 м²
Этаж1 из 9
ПомещениеСвободно
Отчёт о привлекательности объектаУзнайте, насколько помещение и район подходят для вашего бизнеса
Что входит в отчёт
  • Охват населения
  • Пешеходный трафик
  • Автомобильный трафик
  • Средний бюджет семьи по району
  • Арендные ставки рядом
  • Точки притяжения
  • Конкуренты в радиусе 1 км
  • Рекомендации по выбору места для бизнеса
Помещение свободного назначения на 1 этаже, общая площадь 74.9 кв.м., без отделки. Стоимость помещения 15,720,000 руб., цена за кв.м 209,879 руб. СРОК СДАЧИ - 2 КВАРТАЛ 2024 Продается коммерческое помещение в Квартале "Депо" 2 660 человек Перспективное количество жителей жилого района 20 000 человек Количество жителей в шаговой доступности 6,05 Га Площадь застройки 161 039 м² Площадь жилья Квартал "Депо" состоит из семи жилых домов и детского сада на 300 мест. Здания разделяет чёткая сетка улиц. С севера на юг квартал пронизывает бульвар с центральной площадью, с запада на восток проходят тихие соседские переулки. С центром территорию связывают две основные магистральные улицы — Халтурина и Бебеля. Технические параметры: Цементно-песчаная стяжка пола Высота потолков от 3 до 3,9 метров Отдельный вход в каждое помещение Предусмотрено место для информационно-рекламной вывески Витражное остекление Инженерные коммуникации: водоотведение, канализация, электричество, радиаторы Приборы учета Возможна аренда данного помещения на индивидуальных условиях. Подробности в уточняйте в отделе продаж.
lock

Войдите или зарегистрируйтесь
для просмотра информации

Просматривайте условия сделки и всю информацию об объекте
Сохраняйте фильтры в поиске и не вводите заново
Доступ к избранному с любого устройства
Неограниченное добавление в избранное
Позвоните автору
Вам ответят на все вопросы
Остались вопросы по объявлению?
Позвоните владельцу объявления и уточните необходимую информацию.
  • Инфраструктура
  • Похожие рядом
  • ДевелоперБрусника
  • Общая площадь74,9 м²
Помощь надёжных риелторов
Риелтор партнёр Циан поможет купить или продать любую недвижимость
15 720 000 ₽
206 697 $
175 397
Цена за метр
209 880 ₽
Налог
НДС включен: 2 834 754 ₽
Агентство недвижимости
Документы проверены