Мы используем куки-файлы. Соглашение об использовании
Площадь1 318,9 м²
Этажность3
КлассB
Отчёт о привлекательности объектаУзнайте, насколько помещение и район подходят для вашего бизнеса
Что входит в отчёт
  • Охват населения
  • Пешеходный трафик
  • Автомобильный трафик
  • Средний бюджет семьи по району
  • Арендные ставки рядом
  • Точки притяжения
  • Конкуренты в радиусе 1 км
  • Рекомендации по выбору места для бизнеса
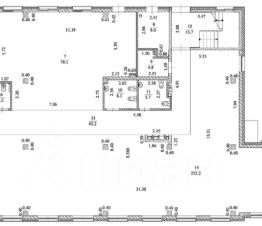
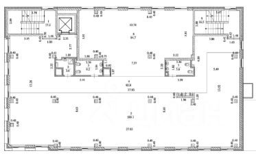
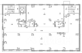
Продается пристроенное 3-этажное здание с эксплуатируемой кровлей в Академическом районе Екатеринбурга Расположение: Екатеринбург, Академический район, ул. Очеретина 16 Общая площадь: 1 319 м² Конструкция: капитальное, пристроенное здание Этажность: 3 этажа + подготовленная эксплуатируемая кровля Парковка: придомовая территория, возможность приобрести машиноместа в подземном паркинге жилого комплекса Ключевые преимущества: - Полностью автономное здание без смежных стен и ограничений по режиму работы - Свободная внутренняя планировка: возможность зонирования под офисы, клиники, образовательные центры, шоурумы, фитнес-студию или апартаменты - Эксплуатируемая кровля с усиленным основанием, качественной гидроизоляцией. Идеально для лаунж-зоны, open-air кафе, зоны отдыха или размещения инженерного оборудования - Все городские коммуникации в наличии и подключены (электричество, водоснабжение, канализация, отопление, интернет) - удобный подъезд, доступ для маломобильных групп, входная группа с уровня земли - Высокий пешеходный и автомобильный трафик благодаря плотной жилой застройке вокруг. ВОЗМОЖНО ПРИОБРЕТЕНИЕ ОТДЕЛЬНО ЭТАЖА.
lock

Войдите или зарегистрируйтесь
для просмотра информации

Просматривайте условия сделки и всю информацию об объекте
Сохраняйте фильтры в поиске и не вводите заново
Доступ к избранному с любого устройства
Неограниченное добавление в избранное
Позвоните автору
Вам ответят на все вопросы
Остались вопросы по объявлению?
Позвоните владельцу объявления и уточните необходимую информацию.
  • Инфраструктура
  • Похожие рядом
Центральное отопление
Спринклерная система пожаротушения
Помощь надёжных риелторов
Риелтор партнёр Циан поможет купить или продать любую недвижимость
Автор объявления
ID 107015773
  • 2 года 7 месяцев на Циане
  • 330 000 000 ₽
    4 339 051 $
    3 681 984
    Цена за метр
    250 209 ₽
    Налог
    НДС включен: 59 508 196 ₽
    Автор объявления
    ID 107015773