Мы используем куки-файлы. Соглашение об использовании
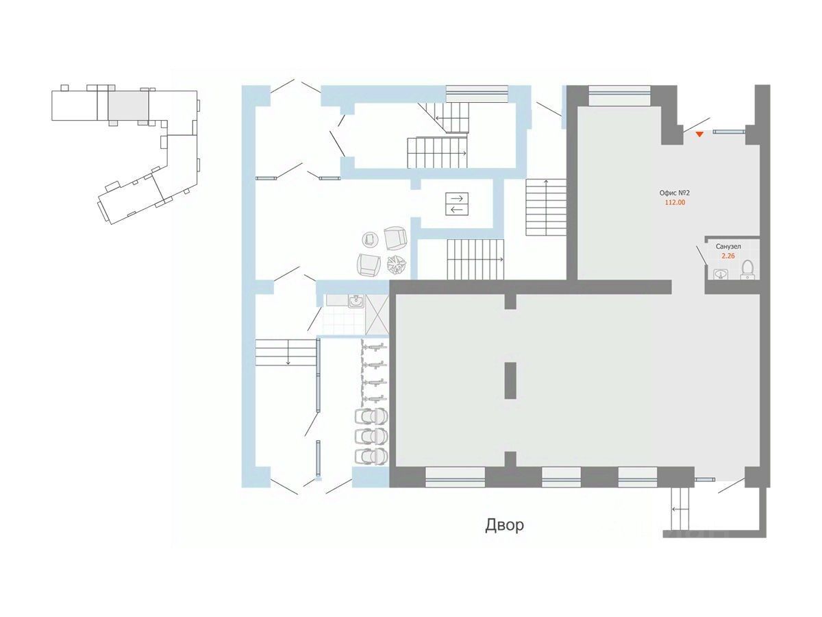
Помещение свободного назначения, 114 м²
Площадь114 м²
Этаж1 из 8
ПомещениеСвободно
Отчёт о привлекательности объектаУзнайте, насколько помещение и район подходят для вашего бизнеса
Что входит в отчёт
  • Охват населения
  • Пешеходный трафик
  • Автомобильный трафик
  • Средний бюджет семьи по району
  • Арендные ставки рядом
  • Точки притяжения
  • Конкуренты в радиусе 1 км
  • Рекомендации по выбору места для бизнеса
Продается коммерческое помещение свободного назначения напрямую от федерального застройщика "Желeзнo". Площадь помещения 114.00 м2. Высота потолков 2.70 м. Помещение находится на 1 этаже дома 4/3 ЖК "ЛЕС". Запишитесь на просмотр помещения и экскурсию по ЖК. Помещение продается в базовой отделке Объект коммерческой недвижимости продаётся в жилом комплексе "ЛЕС", расположенном в живописном районе Широкая Речка, всего в 10 км от центра Екатеринбурга. Здесь природа не фоном, а главным героем — а ваш бизнес может стать частью этой новой истории. Идеальное пространство для вашего бизнеса: • Формирующееся активное сообщество жильцов • Высокий пешеходный трафик и постоянный спрос на повседневные и семейные сервисы • Уникальные дворы, свободные от машин, наполненные зеленью и местами для отдыха • Уютная и безопасная среда, где хочется задержаться ЖК "ЛЕС" — квартал, где природа и комфорт живут в согласии: • Расположение в сосновом бору — свежий воздух и живая тишина каждый день • Этажность домов не превышает кроны деревьев — уют и приватность без суеты • Уникальный парк 6,3 Га с экотропами, веломаршрутами, зонами отдыха и творчества • Умный дом и сервис "Мажордом": все функции умного дома — в мобильном приложении Ваш бизнес — это тоже часть живой экосистемы. Здесь он будет развиваться в гармонии с природой. "Железно" — федеральный девелопер со смыслом, создающий умные мини-города с развитой инфраструктурой. За 14 лет компания реализовала 21 проект в 5 регионах, формируя комфортную среду для десятков тысяч семей. Проекты "Железно" сочетают функциональность и эмоции, формируя среду будущего. Застройщик — 6-кратный победитель премии Urban и входит в ТОП-5 по качеству жилья. С 2016 года ежегодно подтверждает статус "Надёжный застройщик России".
lock

Войдите или зарегистрируйтесь
для просмотра информации

Просматривайте условия сделки и всю информацию об объекте
Сохраняйте фильтры в поиске и не вводите заново
Доступ к избранному с любого устройства
Неограниченное добавление в избранное
Позвоните автору
Вам ответят на все вопросы
Остались вопросы по объявлению?
Позвоните владельцу объявления и уточните необходимую информацию.
  • Инфраструктура
  • Похожие рядом

ЖК «ЛЕС»

  • ДевелоперГК Железно
  • Тип зданияЖилой комплекс
  • Общая площадь114 м²
Помощь надёжных риелторов
Риелтор партнёр Циан поможет купить или продать любую недвижимость
19 824 110 ₽
262 477 $
224 553
Цена за метр
173 896 ₽
Налог
НДС включен: 3 574 839 ₽
Агентство недвижимости
Суперагент