Мы используем куки-файлы. Соглашение об использовании
Помещение свободного назначения, 500 м²

Продается помещение свободного назначения, 500 м²

Площадь500 м²
Этаж1 из 1
Отчёт о привлекательности объектаУзнайте, насколько помещение и район подходят для вашего бизнеса
Что входит в отчёт
  • Охват населения
  • Пешеходный трафик
  • Автомобильный трафик
  • Средний бюджет семьи по району
  • Арендные ставки рядом
  • Точки притяжения
  • Конкуренты в радиусе 1 км
  • Рекомендации по выбору места для бизнеса
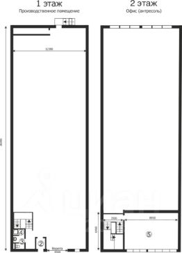
Продается современное производственно-складское помещение формата Light Industrial площадью 500 м² в составе комплекса ЕКАД Южный. Готовое решение для вашего бизнеса с продуманной инфраструктурой и коммуникациями под ключ. Ключевые преимущества и характеристики: Отличная локация: всего 30 минут до центра Екатеринбурга. Удобный подъезд с ул. Профессионалов. Гибкие площади: помещения с возможностью объединения секций. Высота до низа ферм: 7.2 м идеально для высоких стеллажей и свободной организации пространства. Антресоль под офисы: готовая антресоль с отметкой пола +4.05м (ж/б перекрытие) в каждой секции. Вы можете сразу разместить администрацию или офис. Коммуникации полный комплект и резервы: Электричество: 35 кВт на блок (с возможностью увеличения). Теплоснабжение: центральное водяное. Водоснабжение: холодная и горячая вода к санузлам. Канализация: бытовые стоки накопитель 50 м. Ливневка современная система с очисткой. Интернет: оптоволокно. Безопасность и охрана спокойствие для бизнеса: Круглосуточная охрана: КПП, шлагбаумы, 3D-забор по периметру. Видеонаблюдение на всей территории. Пожарная безопасность: степень огнестойкости IV, ПС с оповещением, резервное аварийное освещение. Современные конструкции и отделка: Каркас и кровля металл с защитой от коррозии. Утепленные стены и перегородки: сэндвич-панели 150 мм (наружные) и 100 мм (внутренние) Кровля: профилированный настил + ПВХ-мембрана Полы: производственные зоны бетон с топпингом (антипыль). Административные зоны черновая стяжка. Остекление: энергоэффективные ПВХ-окна с двухкамерными стеклопакетами. Ворота: секционные сэндвич-ворота 3.0х3.5м или 4.1х3.5 с электроприводом. Энергоэффективность: Светодиодное освещение (рабочее и аварийное) внутри и снаружи (фонари, прожектора). Экономия на электричестве. Приточно-вытяжная вентиляция в промзонах. Развитая территория: Асфальтированные проезды, парковки, тротуары. Наружное освещение. Газоны. Почему именно ЕКАД Южный? Экономия времени и денег: все коммуникации подведены, разрешения согласованы начинайте работу быстро. Безопасность и контроль: спокойствие за имущество и сотрудников 24/7. Престиж и имидж: современные здания в охраняемом парке, управляющая компания, размещение среди статусных резидентов. Гибкость: объединяйте секции под ваши задачи. Резервы мощности: электричество, высота потолков есть запас для роста. Идеально для: Производства, складов (логистические операторы, дистрибуция), сервисных центров, оптовых баз, инженерных компаний, требующих промплощадку с офисами.
lock

Войдите или зарегистрируйтесь
для просмотра информации

Просматривайте условия сделки и всю информацию об объекте
Сохраняйте фильтры в поиске и не вводите заново
Доступ к избранному с любого устройства
Неограниченное добавление в избранное
Позвоните автору
Вам ответят на все вопросы
Остались вопросы по объявлению?
Позвоните владельцу объявления и уточните необходимую информацию.
  • Инфраструктура
  • Похожие рядом
  • Тип зданияОфисно-складской комплекс
  • Общая площадь500 м²
Приточная вентиляция
Центральное отопление
Сигнализация
Помощь надёжных риелторов
Риелтор партнёр Циан поможет купить или продать любую недвижимость
Управляющая компанияID 86106543
  • Документы проверены
  • 4 года 4 месяца на Циане
  • 20 объявлений
  • 45 000 000 ₽
    631 943 $
    545 161
    Цена за метр
    90 000 ₽
    Налог
    УСН
    Управляющая компанияID 86106543
    Документы проверены