Мы используем куки-файлы. Соглашение об использовании
Обновлено: сегодня, 13:42
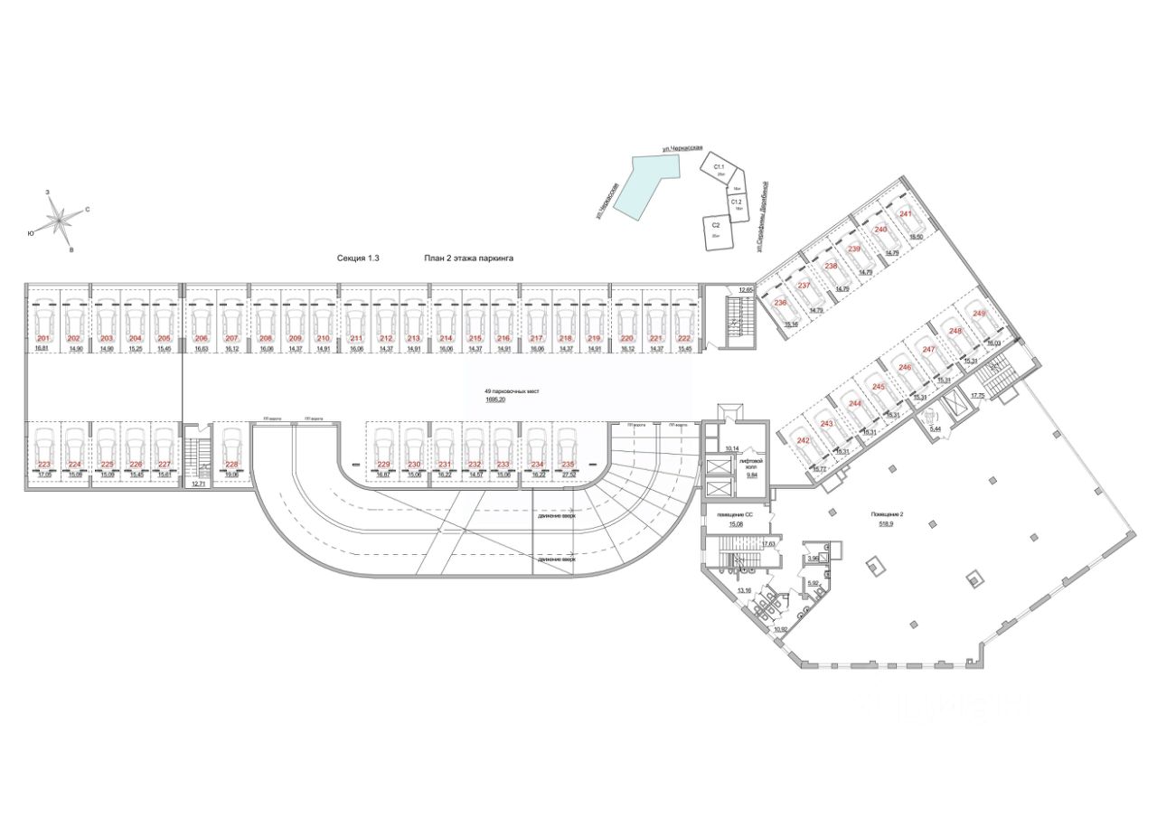
Площадь518,9 м²
Этаж2 из 6
Отчёт о привлекательности объектаУзнайте, насколько помещение и район подходят для вашего бизнеса
Что входит в отчёт
  • Охват населения
  • Пешеходный трафик
  • Автомобильный трафик
  • Средний бюджет семьи по району
  • Арендные ставки рядом
  • Точки притяжения
  • Конкуренты в радиусе 1 км
  • Рекомендации по выбору места для бизнеса
Жилой комплекс "Философия идеалистов на Черкасской" это современный жилой квартал с собственной развитой инфраструктурой, состоящий из трёх домов переменной этажности от 16 до 25 этажей, наземного паркинга и торгово-делового центра. Жилой комплекс располагается на пересечение улиц Серафимы Дерябиной-Гурзуфской. Срок сдачи 4 квартал 2025 Коммерческие и офисные площади размещаются в секции 1.1 и на 3-х этажах делового центра (секция 1.3). Площадь коммерческих помещений : от 11 - 488 кв.м. Высота потолков от 3,3 до 4,8 м Предчистовая отделка Гибкие условия оплаты, включая рассрочку Подходит для размещения собственного бизнеса и инвестиций Оценка локации: 1500 человек Перспективное количество жителей ЖК "Философия идеалистов" в 2025 году 186 000 Количество жителей Верх-Исетского района на 1.01.2024 1,34 Га Площадь застройки ЖК "Философия идеалистов" Удобная транспортная доступность: 10 минут до центра города Удобный выезд к удаленным районам города Академический, Южный автовокзал и Сортировку. Инфраструктура ЖК "Философия идеалистов" Собственная газовая котельная Современная инженерия Видеонаблюдение и охрана 24/7 Разводка электричества Мощность от 10 до 60 квт
lock

Войдите или зарегистрируйтесь
для просмотра информации

Просматривайте условия сделки и всю информацию об объекте
Сохраняйте фильтры в поиске и не вводите заново
Доступ к избранному с любого устройства
Неограниченное добавление в избранное
Позвоните автору
Вам ответят на все вопросы
Остались вопросы по объявлению?
Позвоните владельцу объявления и уточните необходимую информацию.
  • Инфраструктура
  • Похожие рядом

Философия Идеалистов на Черкасской

  • Площадь участка0 сот.
  • Общая площадь518,9 м²
Помощь надёжных риелторов
Риелтор партнёр Циан поможет купить или продать любую недвижимость
87 873 000 ₽
1 164 825 $
995 558
Цена за метр
169 345 ₽
Налог
НДС включен: 15 845 950 ₽
Агентство недвижимости
Суперагент
На Циан
2 года
Объектов в работе
16