Мы используем куки-файлы. Соглашение об использовании
Общая площадь141,5 м²
Жилая площадь70 м²
Площадь кухни36 м²
Этаж16 из 17
Год постройки2007
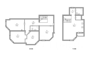
Сдается в аренду 5-комнатная двухуровневая квартира в центре города! Идеальный вариант для семьи, ценящей комфорт и удобство! Описание квартиры: * На первом этаже расположена просторная прихожая, гардеробная, санузел, постирочная (хозяйственная комната), кухня-гостиная сердце квартиры, где собирается вся семья. Просторное пространство наполнено солнечным светом. Большие окна выходят на балкон, откуда открывается живописный вид. Здесь можно наслаждаться утренним кофе или вечерними беседами под звездами. * На втором этаже расположен уютный холл с местами хранения. Поднимаясь на второй этаж, вы попадаете в мир уединения и спокойствия, где расположены четыре светлые спальни, каждая из которых обладает своим характером, создавая идеальное место для отдыха и восстановления сил после насыщенного дня. Дополнительные преимущества: * Закрытый двор с детской и спортивной площадками. * Удобное машиноместо в подземном паркинге. * Два лифта (грузовой и пассажирский), что обеспечивает комфортный доступ. * Всего 2 квартиры на этаже. * Сквозные подъезды с выходом как на улицу, так и во двор. * Развитая инфраструктура района: детские сады, школы, больницы, магазины. Квартира идеально подходит для жизни в центре города с максимальным комфортом и удобством. Не упустите возможность! Звоните для записи на просмотр! ID объекта в нашей базе: 858
Позвоните автору
Вам ответят на все вопросы

О квартире

Общая площадь

141,5 м²

Жилая площадь

70 м²

Площадь кухни

36 м²

Высота потолков

3 м

Планировка

Изолированная

Санузел

1 совмещенный, 1 раздельный

Балкон/лоджия

1 балкон

О доме

Год постройки

2007

Количество лифтов

1 пассажирский, 1 грузовой

Тип дома

Кирпичный

Тип перекрытий

Железобетонные

Подъезды

5

Отопление

Центральное

Аварийность

Нет

В квартире есть

Холодильник
Посудомоечная машина
Стиральная машина
Кондиционер
Телевизор
Интернет
Ванна
Душевая кабина
Мебель на кухне
Мебель в комнатах
Спросите умного помощника
Получите экспертное мнение о жилье

Расположение

Платёж такой же, а квартира — вашаНовые квартиры с отделкой под ваш бюджет
200 000 ₽/мес.
Оплата ЖКХ
15 000 ₽ (без счётчиков)
Залог
200 000 ₽
Комиссия
50%
Предоплата
1 месяц
Срок аренды
от года
Условия проживания
можно с детьми
Агентство недвижимости
Документы проверены