Мы используем куки-файлы. Соглашение об использовании
Торговая площадь, от 24 до 1 652,5 м²
Площади24 – 1 652,5 м²
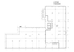
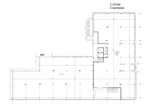
Этаж2 из 2
ПомещениеСвободно
Отчёт о привлекательности объектаУзнайте, насколько помещение и район подходят для вашего бизнеса
Что входит в отчёт
  • Охват населения
  • Пешеходный трафик
  • Автомобильный трафик
  • Средний бюджет семьи по району
  • Арендные ставки рядом
  • Точки притяжения
  • Конкуренты в радиусе 1 км
  • Рекомендации по выбору места для бизнеса
Доступно 10 площадей
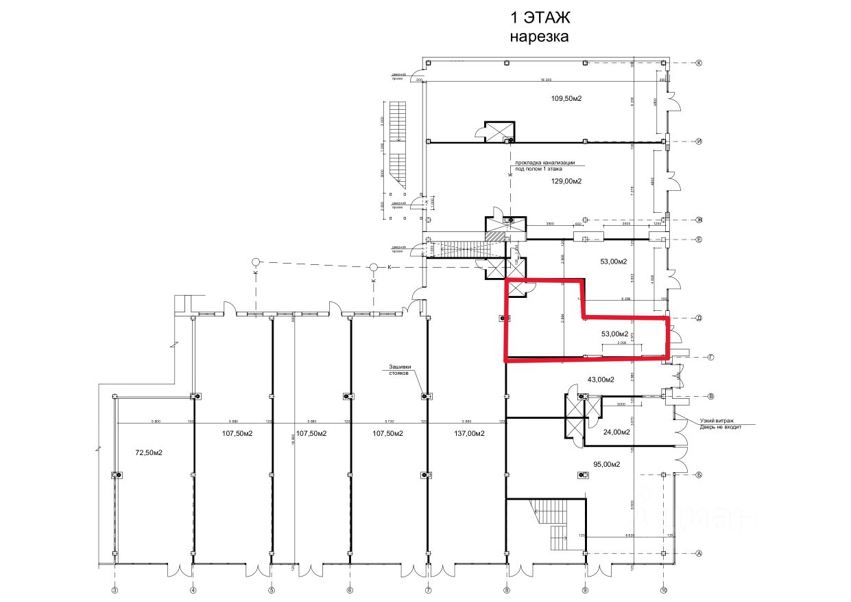
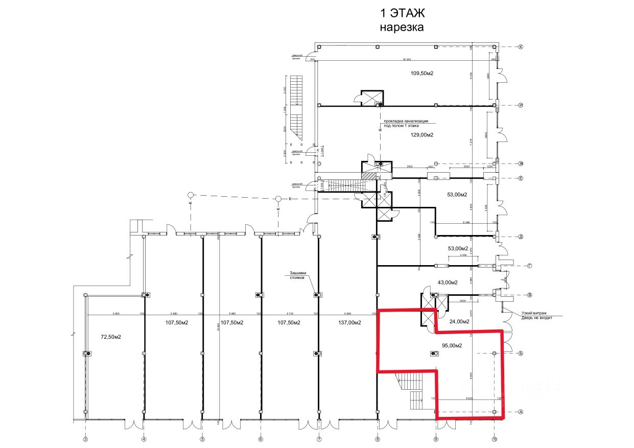
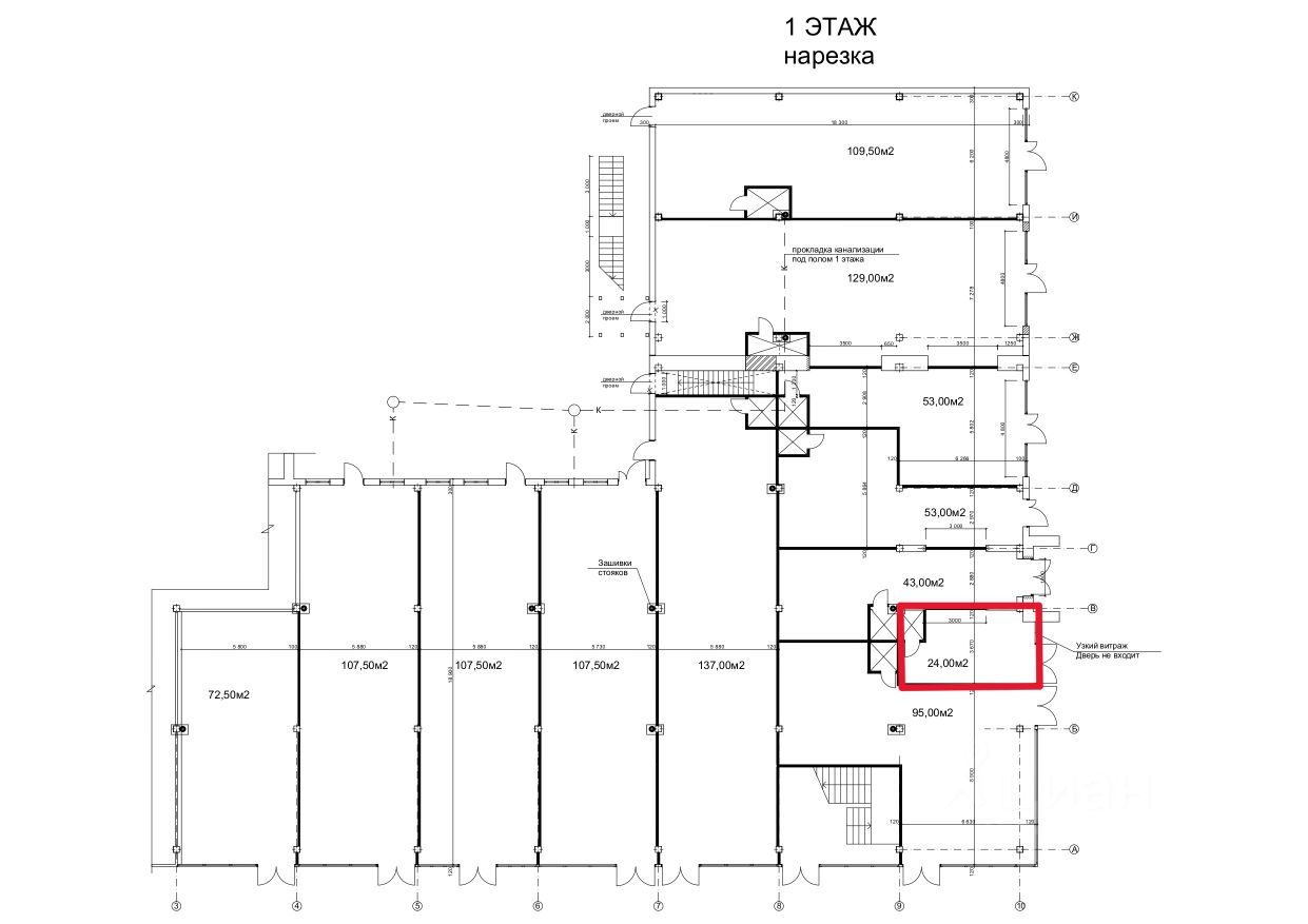
24 м²
1 этаж
120 000 ₽/мес.
60 000 ₽/м² в год
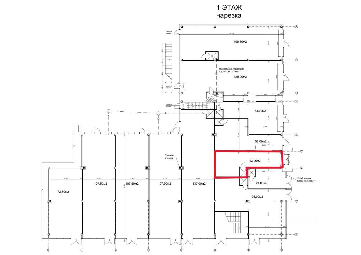
43 м²
1 этаж
107 500 ₽/мес.
30 000 ₽/м² в год
53 м²
1 этаж
106 000 ₽/мес.
24 000 ₽/м² в год
95 м²
1 этаж
285 000 ₽/мес.
36 000 ₽/м² в год
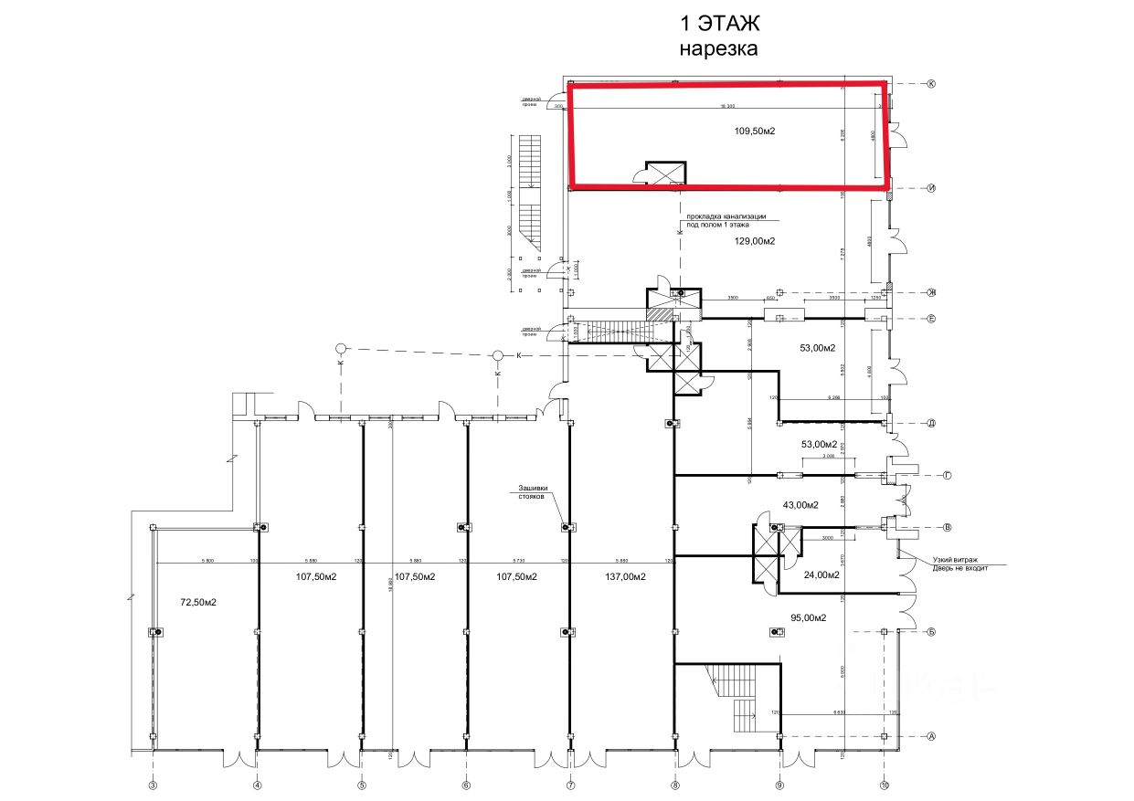
109,5 м²
1 этаж
219 000 ₽/мес.
24 000 ₽/м² в год
Цена: от 106 000, в том числе НДС. Объект: торговая площадь два этажа, общей площадью 1625,5 кв.м. Помещения готовятся к проведению строительных работ в соответствии с планировкой. В аренду предлагаются торговые помещения различной площади от 24 м² и выше, с возможностью выбора наиболее подходящего варианта под ваш бизнес. Помещения расположены в большом торговом комплексе, часть пространства уже разделена на отдельные помещения. Тип сделки: прямая аренда от собственника, заключение долгосрочного договора аренды. Локация: г. Екатеринбург, ул. Пехотинцев, 5 (район "Новая Сортировка"). Основные преимущества: - Открытая планировка помещений дает возможность выстраивать процессы под любой вид деятельности. Для магазинов, шоурумов, офисов, пунктов выдачи и других форматов. - Некоторые помещения оснащены отдельным входом, что обеспечит вашим клиентам комфортный доступ в любое время суток. - Чистая внутренняя отделка позволит вам сразу начать работу без дополнительного ремонта. - Естественное освещение. - Помещения оснащены необходимыми коммуникациями (электричество, отопление, водоснабжение). - Расположены в центре густонаселенного района: стабильный поток клиентов гарантирован! - Просторная бесплатная парковка на 13 машиномест создаст дополнительные удобства для ваших покупателей и сотрудников. Рядом находятся крупные торговые точки ("Монетка", "Галамарт", "Яблоко") и автобусная остановка "Пехотинцев": доступность транспорта сделает ваше заведение удобным для посещения жителями близлежащих районов. По всем вопросам и для записи на просмотр звоните по будням с 9.00 до 18.00. Будем рады помочь!
lock

Войдите или зарегистрируйтесь
для просмотра информации

Просматривайте условия сделки и всю информацию об объекте
Сохраняйте фильтры в поиске и не вводите заново
Доступ к избранному с любого устройства
Неограниченное добавление в избранное
Позвоните автору
Вам ответят на все вопросы
Остались вопросы по объявлению?
Позвоните владельцу объявления и уточните необходимую информацию.
  • Инфраструктура
  • Похожие рядом
  • Площадь участка0 га
  • Общая площадь1 652,5 м²
  • Статус участкаВ собственности
Помощь надёжных риелторов
Риелтор партнёр Циан поможет купить или продать любую недвижимость
106 000 – 2 412 250 ₽/мес.

Прямая аренда (от года), минимальный срок аренды 11 месяцев, предоплата за 1 месяц

от 480 до 33 050 $/мес.
от 408 до 28 093 €/мес.
Цена за метр
от 12 000 ₽ в год
Налог
НДС включен: 434 995 ₽
Комиссия
нет
Коммунальные платежи
не включены
Эксплуатационные расходы
не включены
Агентство недвижимости
Суперагент
На Циан
4 года
Объектов в работе
42