Мы используем куки-файлы. Соглашение об использовании
Площадь1 343,6 м²
Этажность3
Отчёт о привлекательности объектаУзнайте, насколько помещение и район подходят для вашего бизнеса
Что входит в отчёт
  • Охват населения
  • Пешеходный трафик
  • Автомобильный трафик
  • Средний бюджет семьи по району
  • Арендные ставки рядом
  • Точки притяжения
  • Конкуренты в радиусе 1 км
  • Рекомендации по выбору места для бизнеса
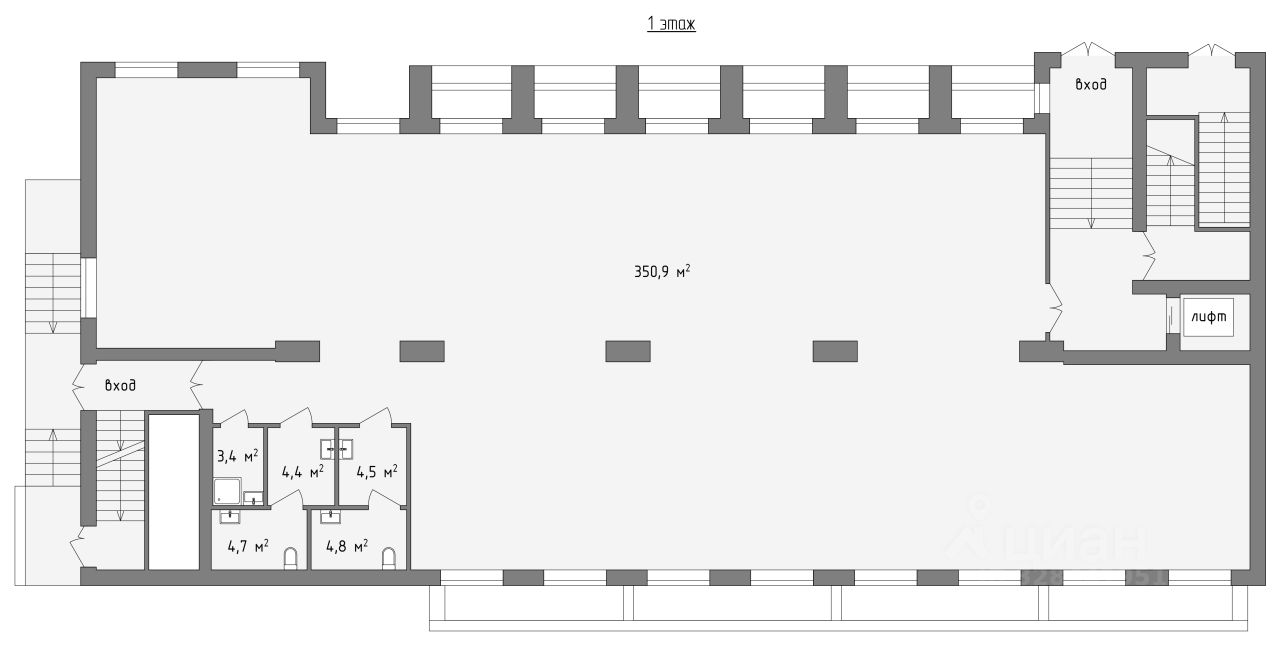
СДАЁТСЯ В АРЕНДУ ОТДЕЛЬНО СТОЯЩЕЕ ЗДАНИЕ В ЦЕНТРЕ ЕКАТЕРИНБУРГА Сдаётся современное отдельно стоящее здание общей площадью 1343,6 кв.м Адрес: г. Екатеринбург, ул. Розы Люксембург, д. 67Б ЛОКАЦИЯ Центр города с высоким пешеходным и автомобильным трафиком В непосредственной близости от БЦ "Панорама" и Центра Международной Торговли Удобный заезд со стороны ул. Белинского ХАРАКТЕРИСТИКИ ЗДАНИЯ Отдельно стоящее здание 3 этажа + подвал Общая мощность: 103 кВт В здании установлен лифт Наличие запасных выходов Выполняется чистовая отделка Небольшая парковка вдоль здания ПЛАНИРОВКА 1 этаж Площадь: 416,5 кв.м Зал: 350,9 кв.м Высота потолков: 3,35 м 2 этаж Площадь: 470 кв.м Зал: 350,9 кв.м Высота потолков: 3,48 м 3 этаж Площадь: 457,1 кв.м Зал: 416,2 кв.м Высота потолков: 3,28 м Подвал Площадь: 421,9 кв.м Отдельный и запасной вход ИДЕАЛЬНО ПОДОЙДЁТ ДЛЯ офиса крупной компании банка или финансовой организации страховой компании IT-компании или технологического центра медицинского центра или клиники образовательного центра, учебного заведения представительства компании / штаб-квартиры шоурума или флагманского магазина коворкинга или бизнес-пространства гостиницы формата апарт-отеля или хостела фитнес-центра или wellness-пространства УСЛОВИЯ АРЕНДЫ 2000 руб./кв.м Коммунальные платежи - оплачиваются отдельно (пропорционально площади) Обеспечительный платёж - 1 месяц Предусмотрена ежегодная индексация Рассмотрим сдачу в аренду поэтажно Организуем показ в удобное для вас время и ответим на все вопросы ID объекта в нашей базе: 201
lock

Войдите или зарегистрируйтесь
для просмотра информации

Просматривайте условия сделки и всю информацию об объекте
Сохраняйте фильтры в поиске и не вводите заново
Доступ к избранному с любого устройства
Неограниченное добавление в избранное
Позвоните автору
Вам ответят на все вопросы
Остались вопросы по объявлению?
Позвоните владельцу объявления и уточните необходимую информацию.
  • Инфраструктура
  • Похожие рядом
Помощь надёжных риелторов
Риелтор партнёр Циан поможет купить или продать любую недвижимость
2 690 000 ₽/мес.

Предоплата за 1 месяц

36 785 $/мес.
31 579 /мес.
Цена за метр
24 026 ₽ в год
Налог
УСН
Комиссия
нет
Коммунальные платежи
не включены
Эксплуатационные расходы
не включены
Агентство недвижимости
Суперагент
На Циан
3 года
Объектов в работе
29