Мы используем куки-файлы. Соглашение об использовании
Площадь45 м²
Этаж1 из 5
Отчёт о привлекательности объектаУзнайте, насколько помещение и район подходят для вашего бизнеса
Что входит в отчёт
  • Охват населения
  • Пешеходный трафик
  • Автомобильный трафик
  • Средний бюджет семьи по району
  • Арендные ставки рядом
  • Точки притяжения
  • Конкуренты в радиусе 1 км
  • Рекомендации по выбору места для бизнеса
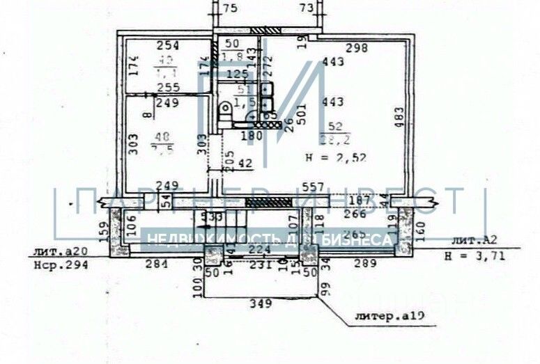
Сдается в аренду торговое помещение в жилом доме на ул. Шаумяна, площадью 45 кв. м. Без комиссии для арендаторов. Основные характеристики и преимущества объекта: -помещение расположено в зоне плотной жилищной застройки в Верх- Исетском районе г. Екатеринбурга, с развитой инфраструктурой, активным пешеходным и автомобильным трафиками. -помещение расположено на первом этаже 5-ти этажного жилого дома; -общая площадь 45 кв. м; -отдельный вход; -высота потолков 2, 5 м. ; -мощность 10 кВт; -вентиляция автономная; -окна с фасада; -свободная парковка вдоль дома. Сдаваемое помещение подойдет под: аптеку, магазин, пункт выдачи , салон красоты, общепит, клиентский офис, офис продаж и т. д. Стоимость аренды: 63 000 руб/месяц. Арендные каникулы обсуждаются. Коммунальные платежи в стоимость аренды не включены. ------------------------------------------------- ----- АН Партнер Инвест Без комиссии для арендатора
lock

Войдите или зарегистрируйтесь
для просмотра информации

Просматривайте условия сделки и всю информацию об объекте
Сохраняйте фильтры в поиске и не вводите заново
Доступ к избранному с любого устройства
Неограниченное добавление в избранное
Позвоните автору
Вам ответят на все вопросы
Остались вопросы по объявлению?
Позвоните владельцу объявления и уточните необходимую информацию.
  • Инфраструктура
  • Похожие рядом
  • Тип зданияЖилой дом
  • Общая площадь45 м²
Помощь надёжных риелторов
Риелтор партнёр Циан поможет купить или продать любую недвижимость
63 000 ₽/мес.

Прямая аренда (от года), доступны арендные каникулы

879 $/мес.
756 /мес.
Цена за метр
16 800 ₽ в год
Налог
УСН
Комиссия
нет
Коммунальные платежи
не включены
Эксплуатационные расходы
не включены
Агентство недвижимости
Документы проверены