Мы используем куки-файлы. Соглашение об использовании
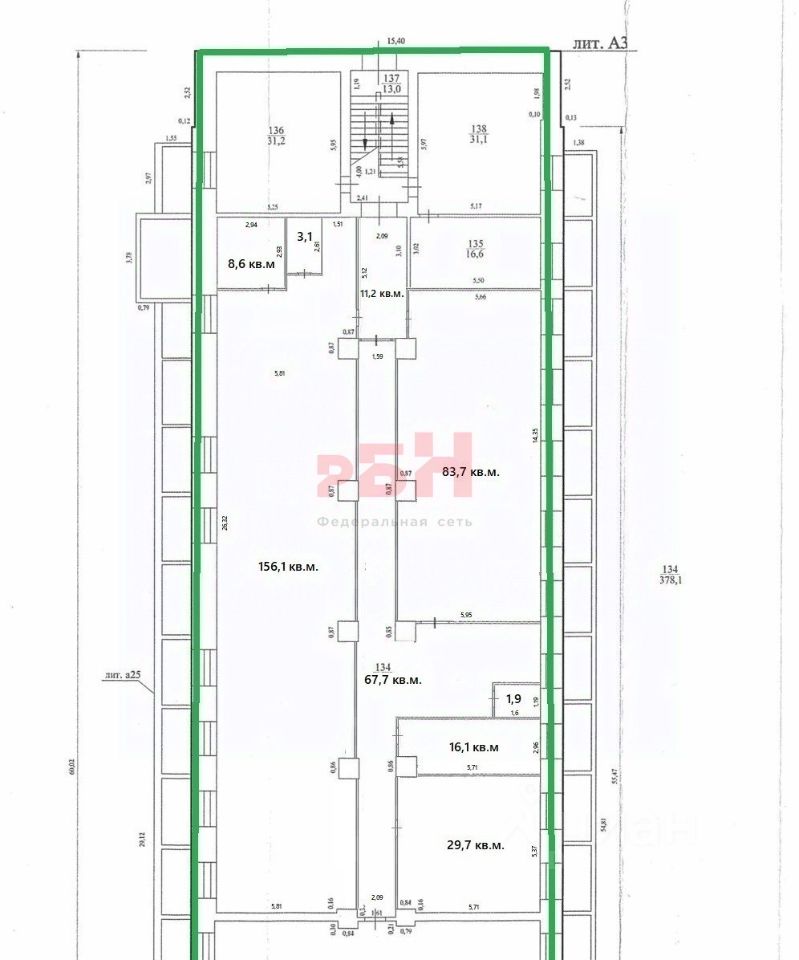
Площадь156 м²
Этаж-1 из 6
Отчёт о привлекательности объектаУзнайте, насколько помещение и район подходят для вашего бизнеса
Что входит в отчёт
  • Охват населения
  • Пешеходный трафик
  • Автомобильный трафик
  • Средний бюджет семьи по району
  • Арендные ставки рядом
  • Точки притяжения
  • Конкуренты в радиусе 1 км
  • Рекомендации по выбору места для бизнеса
Предлагается в аренду производственно-складское помещение общей площадью 156 кв. м Без комиссии для арендаторов. Основные характеристики и преимущества помещения: -удобное расположение здания в центре Уралмаша, в 1 минуте ходьбы от остановки наземного общественного транспорта (автобус, трамвай, троллейбус), в 10 минутах - метро; -В Бизнес-центре находятся две точки общественного питания с демократичными ценами, кофейня, магазин продуктов, офис Альфа-банка и банкоматы; -помещение расположено в цокольном этаже БЦ "ПРОГРЕСС "; -есть окна; -мокрая точка, сан/узнл -высота потолков 2, 8 м; -проведено 380 вольт -два входа (со стороны двора и со стороны БЦ) -в здании Бизнес-центра "Прогресс" налажена современная система доступа и охраны (персональная магнитная карта). Стоимость аренды: 78 000 руб. месяц (500р за кв. м)+коммунальные услуги плюс НДС 5% Более подробную информацию уточняйте у наших специалистов. ------------------------------------------------- ----- "Регион Бизнес Недвижимость". Коммерческая недвижимость. Без комиссии для арендаторов. Арт. 19279524
lock

Войдите или зарегистрируйтесь
для просмотра информации

Просматривайте условия сделки и всю информацию об объекте
Сохраняйте фильтры в поиске и не вводите заново
Доступ к избранному с любого устройства
Неограниченное добавление в избранное
Позвоните автору
Вам ответят на все вопросы
Остались вопросы по объявлению?
Позвоните владельцу объявления и уточните необходимую информацию.
  • Инфраструктура
  • Похожие рядом
Помощь надёжных риелторов
Риелтор партнёр Циан поможет купить или продать любую недвижимость
78 000 ₽/мес.

Прямая аренда (от года), предоплата за 1 месяц

1 064 $/мес.
908 /мес.
Цена за метр
6 000 ₽ в год
Налог
НДС включен: 14 065 ₽
Комиссия
нет
Коммунальные платежи
не включены
Эксплуатационные расходы
не включены
Агентство недвижимости
Суперагент
На Циан
8 лет
Объектов в работе
более 1000