Мы используем куки-файлы. Соглашение об использовании

Сдается торговая площадь, 3 301 м²

Площадь3 301 м²
Этаж2 из 2
Отчёт о привлекательности объектаУзнайте, насколько помещение и район подходят для вашего бизнеса
Что входит в отчёт
  • Охват населения
  • Пешеходный трафик
  • Автомобильный трафик
  • Средний бюджет семьи по району
  • Арендные ставки рядом
  • Точки притяжения
  • Конкуренты в радиусе 1 км
  • Рекомендации по выбору места для бизнеса
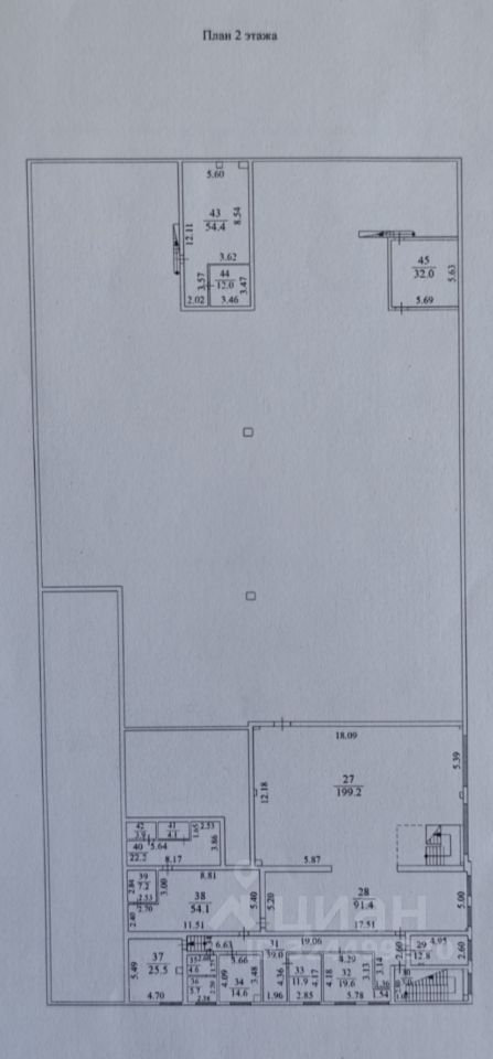
Общая площадь здания - 3301 м², земельный участок - 7200 м². Действующие торговые площади: 1 этаж : 1-96,1 м² (h-3м) 7-141,4 м² (h-3м) 15-218,6 м² (h-3м) 17-334,4 м² (h-8м, до фермы 6м) 18-13,5 м² офис (h-2,6м) 20-638,4 м² (h-8м, до фермы 6м) Итого 1438,9 м² 21- Кран балка промышленная, во всю длину помещения 36м, в рабочем состоянии. h-8м. 23-Кран балка в длину помещения 12м , в рабочем состоянии, h-3м. 2 этаж : 27-199,2 м²(h-4,0м) 28-91,4 м² (h-4,0м) 38-54,1 м² склад (h-4,0м) 29,31,32,33,34 бытовые помещения,офисы (h-2,6м). Реконструкция: По техническим возможностям можно увеличить торговую площадь первого этажа 718,6 м²: 19 -186,9 м² (h-8м, до фермы 6м) 21 - 229 м² (h-8м, до фермы 6м) 22 - 144,3 м² (h-8м, до фермы 6м) 24 - 158,4 м² (h-8м, до фермы 6м) Помещение 15 и 17 можно тоже обеденить, но только со сном перегородки и на втором этаже в помещении 27. Входную группу возможно перенести в зону помещения 19, там расположен проём (ворота) 4м*4м. Действующий магазин строительных материалов, на данный момент в стадии распродажи. Работали с 2008г, огромная клиентская база. Большой поток покупателей с р.п Пышма, Талицы и их районов. Так как месторасположение объекта на въезде в город со стороны Тюмени. Возможно использование помещения под производство, развлекательный центр, перевалочный цент, торговое помещение и тп. Рассмотрю вариант сдачи частями.
lock

Войдите или зарегистрируйтесь
для просмотра информации

Просматривайте условия сделки и всю информацию об объекте
Сохраняйте фильтры в поиске и не вводите заново
Доступ к избранному с любого устройства
Неограниченное добавление в избранное
Позвоните автору
Вам ответят на все вопросы
Остались вопросы по объявлению?
Позвоните владельцу объявления и уточните необходимую информацию.
  • Инфраструктура
  • Похожие рядом
  • Тип зданияТоргово-складской комплекс
  • Площадь участка0,7 га
  • Общая площадь3 301 м²
  • Статус участкаВ собственности
Автономное отопление
Сигнализация
Помощь надёжных риелторов
Риелтор партнёр Циан поможет купить или продать любую недвижимость
СобственникID 76719874
    495 150 ₽/мес.

    Прямая аренда (от года), предоплата за 2 месяца

    6 751 $/мес.
    5 764 /мес.
    Цена за метр
    1 800 ₽ в год
    Налог
    УСН
    Комиссия
    нет
    Коммунальные платежи
    не включены
    Эксплуатационные расходы
    не включены
    СобственникID 76719874