Мы используем куки-файлы. Соглашение об использовании
Площадь59,8 м²
Этаж1 из 29
Отчёт о привлекательности объектаУзнайте, насколько помещение и район подходят для вашего бизнеса
Что входит в отчёт
  • Охват населения
  • Пешеходный трафик
  • Автомобильный трафик
  • Средний бюджет семьи по району
  • Арендные ставки рядом
  • Точки притяжения
  • Конкуренты в радиусе 1 км
  • Рекомендации по выбору места для бизнеса
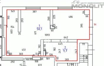
Номер объекта: 546462. Предлагается в аренду торгово-офисное помещение в ЖК Утес по аресу: г. Екатеринбург, ул. Гаршина,3. Характеристики помещения: Общая площадь - 59,8 кв.м. Первый этаж. Первый дом при въезде в район. Угловое помещение. Панорамные окна. Высота потолка - 3,67 м. Электрическая мощность - 12 квт. Безбарьерная среда. Удобная планировка. Помещение без отделки. Соседнее помещение занимает Ozon. Два дома сданы в эксплуатацию. Строятся еще два дома. Инфраструктура: "Утёс" строится в районе Уктус, на левом берегу реки Исеть. Рядом знаменитые Уктусские горы и большие зелёные массивы: Парк Лесоводов России и Карасье-Озёрский лесопарк. До центра можно доехать за 25 минут на авто. Финансовые условия: Стоимость аренды - 80 000 рублей в месяц. Коммунальные платежи оплачиваются дополнительно. Без комиссии с арендатора!
lock

Войдите или зарегистрируйтесь
для просмотра информации

Просматривайте условия сделки и всю информацию об объекте
Сохраняйте фильтры в поиске и не вводите заново
Доступ к избранному с любого устройства
Неограниченное добавление в избранное
Позвоните автору
Вам ответят на все вопросы
Остались вопросы по объявлению?
Позвоните владельцу объявления и уточните необходимую информацию.
  • Инфраструктура
  • Похожие рядом
  • Общая площадь59,8 м²
Помощь надёжных риелторов
Риелтор партнёр Циан поможет купить или продать любую недвижимость
80 000 ₽/мес.

Обеспечительный платёж 80000 ₽

1 077 $/мес.
903 /мес.
Цена за метр
16 054 ₽ в год
Налог
УСН
Комиссия
нет
Коммунальные платежи
не включены
Эксплуатационные расходы
не включены
Агентство недвижимости
Суперагент
На Циан
11 лет
Объектов в работе
293