Мы используем куки-файлы. Соглашение об использовании
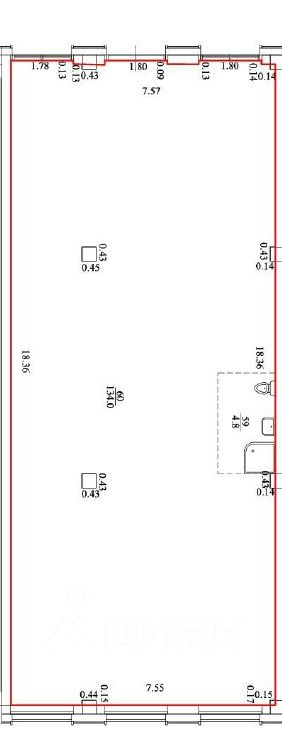
Площадь138 м²
Этаж1 из 2
Отчёт о привлекательности объектаУзнайте, насколько помещение и район подходят для вашего бизнеса
Что входит в отчёт
  • Охват населения
  • Пешеходный трафик
  • Автомобильный трафик
  • Средний бюджет семьи по району
  • Арендные ставки рядом
  • Точки притяжения
  • Конкуренты в радиусе 1 км
  • Рекомендации по выбору места для бизнеса
Сдам в аренду торговое помещение под салон крacоты, кaфе-общeпит.. Первый этаж. Отдельный вход. Витражное остекление. Высота потолка 3,25м. Электрическая мощность 20кВт. Коммунальные платежи оплачиваются дополнительно. Без комиссий.
lock

Войдите или зарегистрируйтесь
для просмотра информации

Просматривайте условия сделки и всю информацию об объекте
Сохраняйте фильтры в поиске и не вводите заново
Доступ к избранному с любого устройства
Неограниченное добавление в избранное
Позвоните автору
Вам ответят на все вопросы
Остались вопросы по объявлению?
Позвоните владельцу объявления и уточните необходимую информацию.
  • Инфраструктура
  • Похожие рядом
  • Площадь участка0 га
  • Общая площадь138 м²
  • Статус участкаВ собственности
Помощь надёжных риелторов
Риелтор партнёр Циан поможет купить или продать любую недвижимость
Агентство недвижимости
Суперагент
276 000 ₽/мес.

Прямая аренда (от года), предоплата за 1 месяц

3 876 $/мес.
3 344 /мес.
Цена за метр
24 000 ₽ в год
Налог
УСН
Комиссия
нет
Коммунальные платежи
не включены
Эксплуатационные расходы
не включены
Агентство недвижимости
Суперагент
На Циан
8 лет
Объектов в работе
198