Мы используем куки-файлы. Соглашение об использовании
Площади68,5 – 243,3 м²
Этаж1 из 1
Выс. потолков4.4 м.
ПомещениеСвободно
Отчёт о привлекательности объектаУзнайте, насколько помещение и район подходят для вашего бизнеса
Что входит в отчёт
  • Охват населения
  • Пешеходный трафик
  • Автомобильный трафик
  • Средний бюджет семьи по району
  • Арендные ставки рядом
  • Точки притяжения
  • Конкуренты в радиусе 1 км
  • Рекомендации по выбору места для бизнеса
Доступно 3 площади
68,5 м²
1 этаж
30 000 ₽/мес.
5 255 ₽/м² в год
106 м²
1 этаж
60 000 ₽/мес.
6 792 ₽/м² в год
243,3 м²
1 этаж
125 000 ₽/мес.
6 165 ₽/м² в год
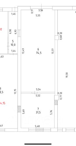
Тёплое Помещение под склад Производство Автосервис Отдельный въезд с улицы Ширина помещения 5.5 Длина помещения. 19.4 Ворота в3,5, ш 3,9Высота 4.6 метра
lock

Войдите или зарегистрируйтесь
для просмотра информации

Просматривайте условия сделки и всю информацию об объекте
Сохраняйте фильтры в поиске и не вводите заново
Доступ к избранному с любого устройства
Неограниченное добавление в избранное
Позвоните автору
Вам ответят на все вопросы
Остались вопросы по объявлению?
Позвоните владельцу объявления и уточните необходимую информацию.
  • Инфраструктура
  • Похожие рядом
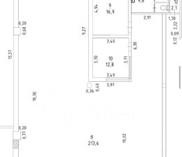
  • Общая площадь243,3 м²
Автономное отопление
Помощь надёжных риелторов
Риелтор партнёр Циан поможет купить или продать любую недвижимость
30 000 – 125 000 ₽/мес.

Прямая аренда (от года), минимальный срок аренды 11 месяцев, доступны арендные каникулы, обеспечительный платёж 60000 ₽, предоплата за 1 месяц

от 480 до 1 703 $/мес.
от 411 до 1 460 €/мес.
Цена за метр
от 5 255 ₽ в год
Налог
УСН
Комиссия
нет
Коммунальные платежи
не включены
Эксплуатационные расходы
включены
Агентство недвижимости
ID 24974672