Мы используем куки-файлы. Соглашение об использовании
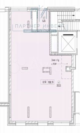
Площадь109,1 м²
Этаж1 из 17
Отчёт о привлекательности объектаУзнайте, насколько помещение и район подходят для вашего бизнеса
Что входит в отчёт
  • Охват населения
  • Пешеходный трафик
  • Автомобильный трафик
  • Средний бюджет семьи по району
  • Арендные ставки рядом
  • Точки притяжения
  • Конкуренты в радиусе 1 км
  • Рекомендации по выбору места для бизнеса
СДАЕТСЯ в АРЕНДУ ТОРГОВО-ОФИСНОЕ ПОМЕЩЕНИЕ общей площадью 109, 1 кв. м. Без комиссии для арендатора. РАСПОЛОЖЕНИЕ: - расположено в центральной части города, рядом новый ЖК "Южные кварталы", вблизи ТЦ "Фан Фан", рядом пересечение центральных улиц Фурманова и Московская. - здесь будут построены новые дома, наземные и подземные паковки, средняя образовательная школа и три детских сада. -рядом располагается "Красное Белое", что гарантирует еще более активный траффик. ОСНОВНЫЕ ХАРАКТЕРИСТИКИ: - расположено на 1-ом этаже 17-ти этажного дома; - общая площадь 109, 1 м. кв. ; - есть возможность кабинетной планировки; - есть место под вывеску на фасаде; - год постройки 2024г; -предчистовая отделка; -возможность планировки сан. узла; - предусмотрена подготовка под приточно-вытяжную установку, в виде установки решеток на фасаде, а так же вывод воздуховода вентиляции в с/у. ; - пожарная и охранная сигнализация; - парковка наземная; НАЗНАЧЕНИЕ: Подойдет под офис, детские учреждения, сетевые парикмахерские, салон красоты, медицинские центры, стоматологии, образовательные учреждения. СТОИМОСТЬ: Стоимость аренды: 152 740 руб. /месяц (1400р/кв м). Коммунальные платежи не включены в стоимость аренды и оплачиваются отдельно. ------------------------------------------------- ----- Более подробную информацию уточняйте у наших менеджеров ------------------------------------------------- ----- АН "Партнер Инвест" Коммерческая недвижимость Без комиссии для арендатора
lock

Войдите или зарегистрируйтесь
для просмотра информации

Просматривайте условия сделки и всю информацию об объекте
Сохраняйте фильтры в поиске и не вводите заново
Доступ к избранному с любого устройства
Неограниченное добавление в избранное
Позвоните автору
Вам ответят на все вопросы
Остались вопросы по объявлению?
Позвоните владельцу объявления и уточните необходимую информацию.
  • Инфраструктура
  • Похожие рядом
  • Тип зданияЖилой дом
  • Общая площадь109,1 м²
Помощь надёжных риелторов
Риелтор партнёр Циан поможет купить или продать любую недвижимость
Документы проверены
152 740 ₽/мес.

Прямая аренда (от года)

2 089 $/мес.
1 793 /мес.
Цена за метр
16 800 ₽ в год
Налог
УСН
Комиссия
нет
Коммунальные платежи
не включены
Эксплуатационные расходы
не включены
Агентство недвижимости
Документы проверены
На Циан
1 год
Объектов в работе
182