


213 000 ₽/м²
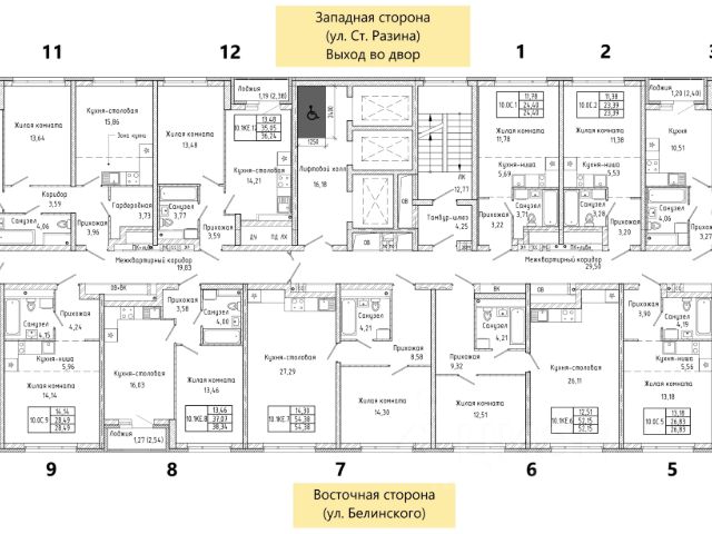
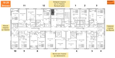
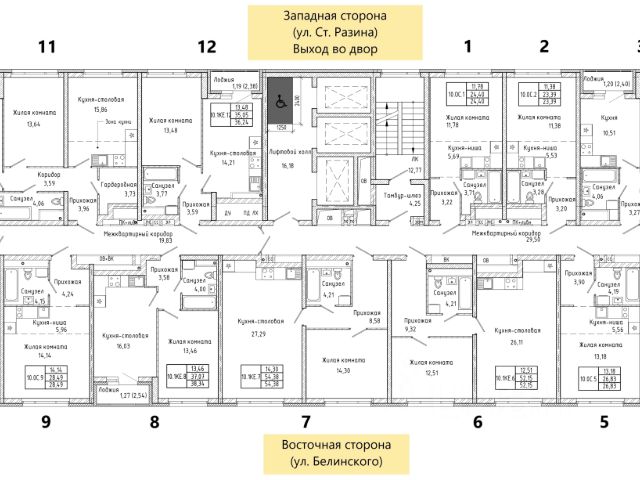
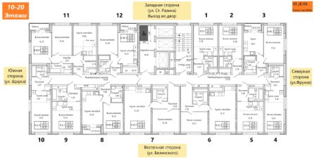
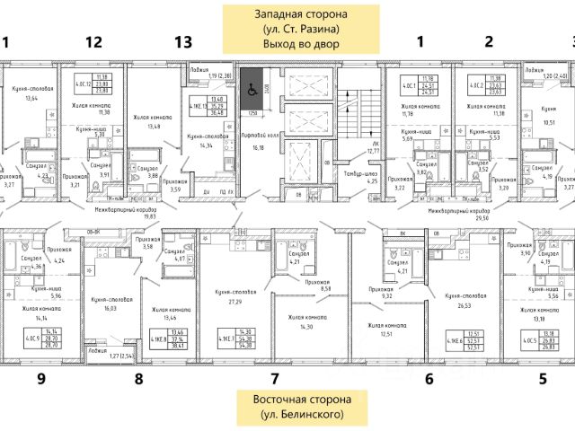
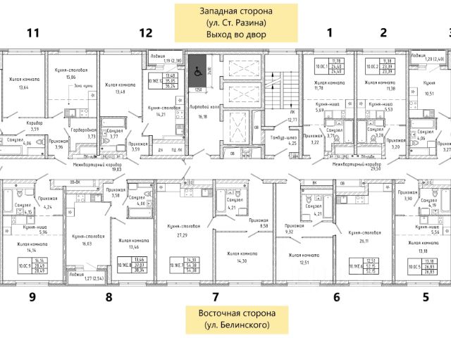
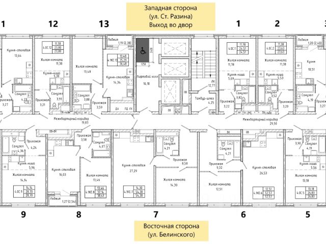
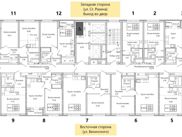
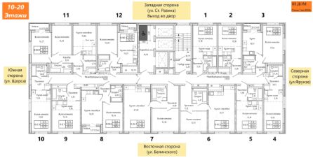
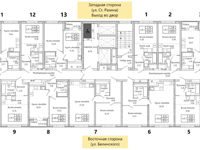
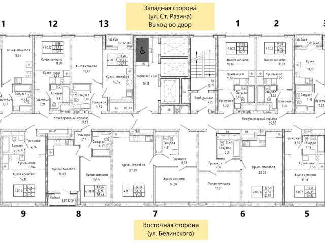
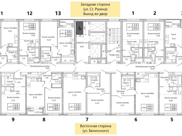
Жилой комплекс "СтудияПарк" Дом 3 комфорт-класса ООО "Специализированный застройщик "СтудияПарк" реализует квартиры в современном жилом комплексе, расположенном в центральной части Екатеринбурга — в границах улиц Белинского, Фрунзе, Щорса и Степана Разина. Срок ввода в эксплуатацию: I квартал 2028 года Преимущества локации: — развитая транспортная инфраструктура — пешая доступность станции метро "Чкаловская" — 5 минут до улиц Белинского и Щорса — удобный выезд на Объездную дорогу — сформированная городская среда О проекте: Жилой комплекс реализуется поэтапно. На текущий момент: — введены в эксплуатацию и заселены первые две очереди — функционирует собственная котельная — построены наземные паркинги: • 4-этажный на 99 машино-мест • 9-этажный на 460 машино-мест Проектом предусмотрено: — детский сад на 150 мест — подземный паркинг (-2 уровня) — коммерческие помещения на первых этажах — бизнес-центр на территории комплекса Инфраструктура: В непосредственной близости: — гимназия 120, школы 17 и 93 — детские сады — медицинские учреждения — магазины и сервисы В пешей доступности: — ЦПКиО им. В.В. Маяковского — ТРЦ "Мегаполис" Условия приобретения: — ипотечные программы (включая семейную ипотеку) — первоначальный взнос от 20% — специальные условия при 100% оплате Доступны программы с пониженной ставкой (на первый год): — от 13,2% по базовой ипотеке — от 3,5% по семейной ипотеке Также доступна рассрочка от застройщика. Условия предоставления уточняйте в отделе продаж. Отделка квартиры: Все квартиры передаются с предчистовой отделкой, что позволяет сразу перейти к реализации индивидуального интерьера. Дополнительно доступна чистовая отделка "под ключ" по фиксированной стоимости: — студия — 80 000 ₽ — 1-комнатная квартира — 100 000 ₽ — 2-комнатная квартира — 120 000 ₽ На платформе представлена часть планировочных решений. Для получения актуальной информации о стоимости, наличии квартир и действующих предложениях обращайтесь в отдел продаж.






















































































































































