


271 239 ₽/м²
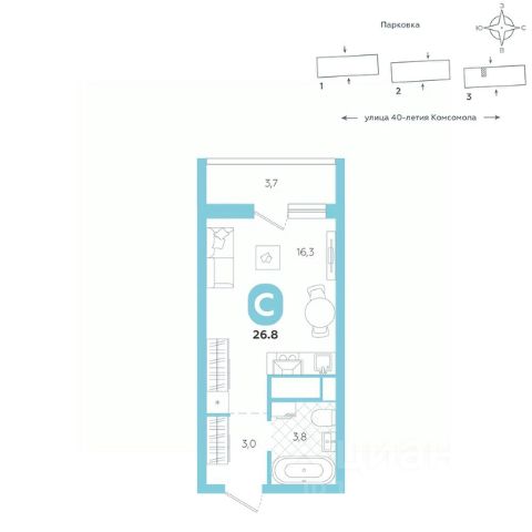
Компаунд "Проспект Мира" флагманский проект компании "Первостроитель", финалист премии Urban Awards, входит в ТОП 5 жилых комплексов России по версии Единого ресурса застройщика. Это закрытый комплекс с развитой инфраструктурой, фонтаном, зонами отдыха, детскими площадками, спортивными зонами и двухуровневым паркингом. Дом по адресу ул. Мира 47/6 состоит из двух секций переменной этажности (5 и 30 этажей, 27 из них жилые), корпус которых развернут внутрь дворового пространства компаунда. В доме просторные холлы с зонами ожидания и колясочные. На территории компаунда расположен мультифункциональный центр, в котором расположены собственные бизнесы застройщика: фитнес-клуб с 24-х метровым бассейном и СПА зоной, ресторанный комплекс, бильярдный клуб и отель. Особое внимание в проекте уделено внутреннему дворовому пространству: во дворе выполнен ландшафтный дизайн с оригинальными клумбами, деревьями, кустарниками и вечерней подсветкой. Безопасность домов обеспечивают камеры наблюдения, расположенные по периметру зданий, в местах общего пользования, на этажах и лифтах. Квартиры отличаются продуманными планировками (от 34,7 до 74,4 м²) и высокими потолками (от 2,7 до 3 м). Дома имеют класс энергоэффективности А и целый ряд энергоэффективных решений: повышенную теплоизоляцию наружных стен, специальные оконные конструкции, сохраняющие тепло зимой и не нагревающие комнаты летом, уникальную для многоквартирных домов индивидуальную систему приточно-вытяжной вентиляции с рекуперацией воздуха, что даёт постоянное обновление воздуха










































































































