145 041 ₽/м²
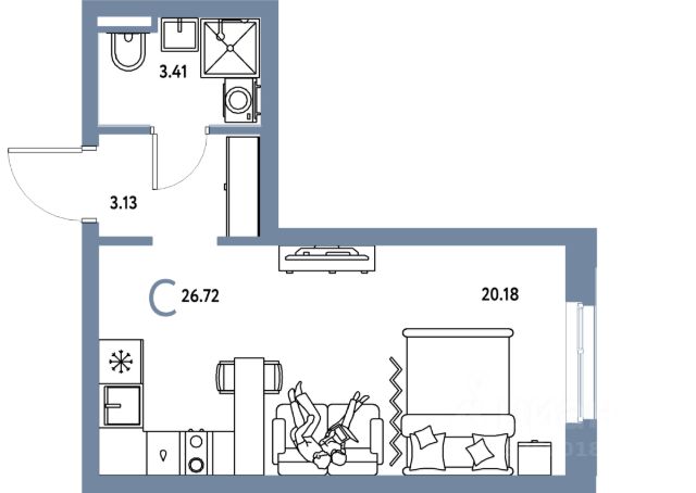
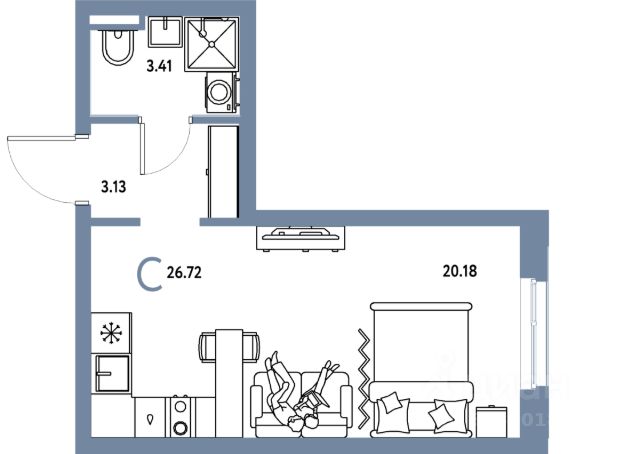
Продаётся студия в строящемся доме (Дом 1), срок сдачи: II-кв. 2027, общей площадью 26.72 кв.м., на 21 этаже. Новый жилой комплекс "Уральский сад" от застройщика "ГК Страна Девелопмент" расположен по адресу: г. Екатеринбург, посёлок Совхозный, Комбинатская улица.



























